查看完整案例


收藏

下载
蒙彼利埃音乐学院位于蒙彼利埃市中心的博通内特区。该项目旨在呈现一个整合公共广场、形成开敞空间的城市组合方案。作为城市新兴的文化中心,建筑被设想为一个向周边住宅区开放的艺术场所,一个可以在露台上唱歌跳舞的音乐聚落。
The Music Conservatory is located in downtown Montpellier, in the Boutonnet district. The building aims to define an urban composition scheme that integrates spacious public spaces including a square. Conceived as a musical village, an installation opens to its territory, where people can dance and sing on the rooftops. The Music Conservatory of Montpellier opens up to the city as a new cultural center.
▼主入口视角,view from the main entrance©MC Lucat
▼建筑立面,the facade©MC Lucat
项目场地原为格拉塞特产科医院,其入口主楼因其建筑价值得到了保留。作为这座悠久历史建筑的组成部分,附属于产科医院的育婴堂保留在场地东北部。为了激发博通内特区周边的活力,1.7 公里的区域内设有多个绿地,以及一条为新音乐学院服务的电车线路,直通格拉塞特教授大道。主要道路上运用石材铺地,在大道的两侧形成悠然的公共空间。
The cultural center is located on a site previously occupied by the Maternité Grasset, whose entrance pavilion has been preserved in accordance with its architectural style. An integral part of this historic 20th-century building, the crèche attached to the maternity unit retains its position to the northeast of the site. Revitalizing the heart of the Boutonnet residential district, the project fits into a suburban space. The 1.7 km district offers multiple green spaces as well as a tram line that directly serves the new Music Conservatory, on Professor Grasset Avenue. A mineral stone floor covering is thus pulled up to the main road to create a pleasant common space on either side of the avenue.
▼得到保留的入口主楼,thepreservedentrance pavilion©MC Lucat
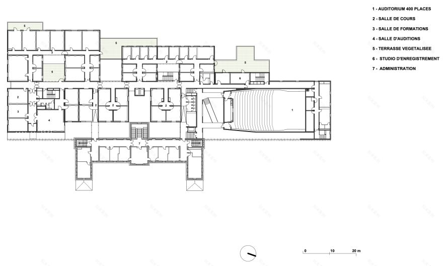
新音乐学院可容纳 2,200 名学生,包含一个 400 座的礼堂、一个剧院工作室、一个古典音乐集体练习室、两个管弦乐舞台、两个试听室、两个室内乐室、两个集体练习室、两个打击乐练习室、七个舞蹈工作室。为了将这个 10,000 平方米的大型建筑无缝地融入场地,更好地适应住宅区的结构,建筑被分割成不同的体量。
With a capacity of 2,200 students, the new Conservatory provides a 400-seat auditorium, seven dance studios, a theater studio, two orchestral stages, two audition rooms, two chamber music rooms, two collective practice rooms, a collective practice room for early music, and two practice rooms for percussion. To integrate itself into the district’s configuration seamlessly, the construction is fragmented into different volumes to better fit this large 10,000m² facility in a very residential urban fabric.
▼入口门厅,the entrance hall©MC Lucat
▼接待大厅,reception hall©MC Lucat
设计试图以创新的方式处理教育机构的建筑关系,通过在景观中间设置分散的体量,学院和城市两种环境紧密连接,同时调和了两者在城市规划价值方面的关系。历史建筑两侧的地块,分别是建筑物的主次入口,主入口以雄伟的雪松为标志。伴随日光的变化,大小不一的体量得以相互遮蔽。二十五米高的百年梧桐环绕着新音乐学院,场地内的植被创造四季皆宜的微气候,使之成为一个生态气候型建筑。音乐学院与丰富的植被融为一体,像是一个绿色村庄,散布着庭院、露台和悬浮花园,由室外走道串联,并向街道敞开。
The project seeks to renew the architectural relationship with educational institutions, and it also addresses the relationship of the Music Conservatory to the city in terms of urban planning values by connecting these two environments through fragmented volumes set in the middle of a green landscape. On either side of the historic building, two plots are created and correspond to the main and secondary entrances to the building. The main entrance is marked by the majestic cedar. Buildings shadow each other thanks to the daylight variations. Hundred-year-old plane trees, 25m high, surround the new Music Conservatory. All vegetation creates favorable micro-climate in all seasons, it is a bio-climatic architecture. Blending into the abundant vegetation, the Conservatory is conceived as a musical village featuring built volumes interspersed with patios, terraces and suspended gardens, interconnected by corridors widely open to the street.
▼室外走道串联空间,corridors widely open to the street ©MC Lucat
不论是各楼层丰富的室外空间、自然采光,还是室内外区域之间的连接、引人注目的大厅、为不同人群独立设置的通道(游客可以自然地从入口大厅到礼堂,学生可以自由地从小广场到排练室,两者互不影响)……这些设计细节都清晰地展现了该项目在教育和文化方面的抱负:构建一个向城市开放的艺术生活社区。
With outdoor spaces distributed on all floors, naturally lit circulations, connection between inside and outdoor areas, striking and inviting entrance hall, and an independent access to the auditorium through the large hall or to the contemporary music room through the small square, the program clearly affirms its educational and cultural ambitions: it constitutes a living space for the artistic community and opens itself onto the city.
▼历史建筑门廊,hall of historic building ©MC Lucat
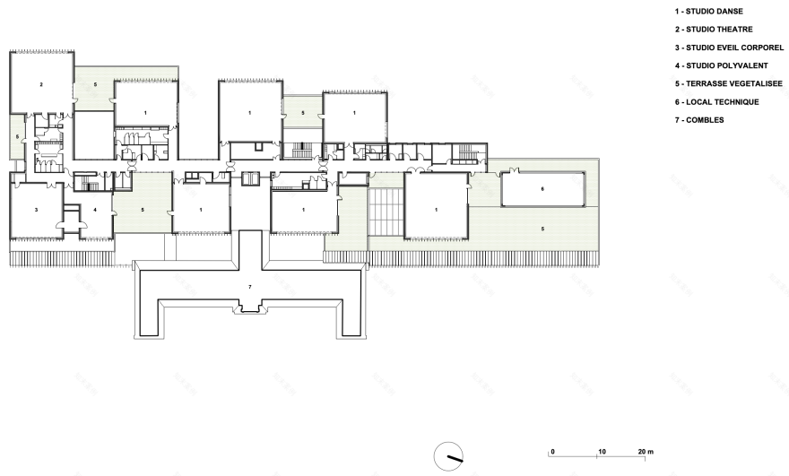
新建筑的南部集中了大型排练教室、管弦乐套间和试听排练厅。一楼设置有接待大厅和礼堂,其他用于乐器练习和音乐培训的小房间分布在一楼、夹层和二楼。顶层整体是一个大型植被露台,其楼面高度与历史建筑的女儿墙一致,上面分布着舞蹈室、身体觉醒室和剧院室。
All the large practical classrooms, orchestral sets and the audition rehearsal-broadcasting sector are grouped together from the ground floor to the second floor, in the southern part of the new building. We find the reception hall and auditorium on the ground floor while other music rooms (instrumental practice and musical training) are located on the first floor, the mezzanine and the second floor. Dance, bodily awakening and theater rooms are located on the last level, on a large vegetated terrace, corresponding to the parapet of the Grasset pavilion.
▼礼堂舞台,auditorium ©MC Lucat
▼礼堂观众席,audience seats©MC Lucat
场地内原是一座 20 世纪初现代风格的学术建筑。为了与其建筑风格和材质进行对比和互动,新建筑选择了使用金属和玻璃作为主要材质。立面上点缀着大型垂直遮阳板,其颜色与周围梧桐树相呼应。不仅如此,每个音乐空间都有自己的视觉特征:木制的舞台、金属的打击乐室、纯白的练习室。现代与古典,两种对立的美学,在同一个系统里相辅相成,创造出一个宜人的生活工作环境。
To interact with the architectural style and materiality of the Grasset pavilion, an academic building with its mode natures from the early 20th century, an abstract architecture using metal and glass was chosen, punctuated by large vertical sunshades whose colors echo that of the surrounding plane trees. Each musical space has its own visual identity: auditorium and orchestra stages in wood, metal percussion rooms, small white practice rooms. It is a system of meaningful oppositions in which two opposing aesthetics reinforce each other, creating a pleasant living and working environment.
▼金属的打击乐室,metal percussion room©MC Lucat
▼纯白的练习室,white practice room©MC Lucat
▼舞蹈教室,dance room©MC Lucat
考虑到地中海气候阳光充足的特性与音乐教育机构的需求,要想做出兼具美学和环境特性的立面,在声光方面的设计不容忽视。为了减少噪音,紧邻广场的乐器练习室在外立面使用降低透明度的板条。内立面采用白色混凝土,以便通过庭院、露台和空中花园接收南向的光线。
The project’s façade, one with aesthetic and environmental properties, makes it possible to find links between the Mediterranean climate, in particular with strong sunshine, and the pragmatic needs of a musical learning institution, requiring significant internal inputs in terms of light and acoustics. On the protruding volumes of the façade overlooking the square, the slats clad the musical practice rooms. They are deliberately less transparent for acoustic purposes. The transverse façades are in white concrete in order to receive the light from the South, through the patios, the terraces and the hanging gardens.
▼降低透明度的板条,less transparent slats clad©MC Lucat
设计创造了一个有利于学习成长的环境,同时建筑与周边和谐共生。场地内保留了旧育婴堂和原广场的轮廓,空中花园与周围梧桐树的枝叶相接,彩色遮阳板立面折射斑驳的光影……这些不仅满足了音乐、舞蹈和戏剧练习的环境需要,同时最大程度上营造出音乐学院的艺术氛围。不同空间的微妙交织,创造了一个诗意的世界。
It also makes an environment that favors growth and learning. The building blends harmoniously with the surrounding structures, thanks to the continuity of its volumes following the contours of the nursery and the square. The hanging gardens soar towards the foliage of trees. The subtle interweaving of the different spaces, highlighted by the filtered contributions of the colored sunshades on the façade, creates a poetic universe that is ideal to the artistic teachings of learning and cultural practices in music, dance and theater.
▼夜景,night view©MC Lucat
▼总平面,masterplan©法国 AS 建筑工作室
▼首层平面,the first floor plan©法国 AS 建筑工作室
▼二层平面,the second floor plan©法国 AS 建筑工作室
▼三层平面,the third floor plan©法国 AS 建筑工作室
▼顶层平面,top floor plan©法国 AS 建筑工作室
▼剖面,sections©法国 AS 建筑工作室
项目名称:蒙彼利埃音乐学院
设计方:法国 AS 建筑工作室
项目设计 & 完成年份:2021 年
主创及设计团队:法国 AS 建筑工作室
项目地址:蒙彼利埃,法国
建筑面积:10,000 平方米
摄影版权:©MC Lucat
合作方:MDR Architectes, Base, Sud Infra Environnement, Andre Verdier, Ingénierie Louis Choulet, Franck Boutté Consultants, Acoustique Vive Associés, Atelier Peytavin, Eco-Cités, TKDES, CEC, CL Design, ACKA, LMI, 8’18’’, Vulcaneo, ACTH
客户:蒙彼利埃地中海大都会,蒙彼利埃大都会发展公司
品牌及产品:Wavin: Heating floor FläktGroup:Chilled beam FläktGroup / CAIRplus:Air handling unit GERB: Floating floors Placo:High partition wall
COMPA 220:Floor resin FORBO Marmoleum decibel:Flexible flooring Signature F:Auditorium seats Zumtobel / Bega / Iguzzini:Lighting
Project name:The Music Conservatory of Montpellier
Design:architecturestudio
Design year & Completion Year:2021
Leader designer & Team:architecturestudio
Project location:Montpellier, France
Gross Built Area:10,000m2
Photo credits: ©MC Lucat
Partners: MDR Architectes, Base, Sud Infra Environnement, Andre Verdier, Ingénierie Louis Choulet, Franck Boutté Consultants, Acoustique Vive Associés, Atelier Peytavin, Eco-Cités, TKDES, CEC, CL Design, ACKA, LMI, 8’18’’, Vulcaneo, ACTH
Clients: Montpellier Méditerranée Métropole, SA3M
Brand & Product:
Wavin: Heating floor FläktGroup:Chilled beam FläktGroup / CAIRplus:Air handling unit GERB: Floating floors Placo:High partition wall
COMPA 220:Floor resin FORBO Marmoleum decibel:Flexible flooring Signature F:Auditorium seats Zumtobel / Bega / Iguzzini:Lighting
客服
消息
收藏
下载
最近























