查看完整案例


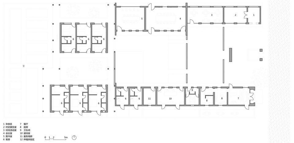
收藏

下载
相对于建筑设计方面的创新,这是一个更注重于社区示范效应的项目。设立本项目的初衷是为当地社区和村民在发展转型上起到带动和教育作用。从建筑专业角度,本项目要为当地村民提供房屋建设的技术示范,采用当地最为普遍的材料,以本地村民为主参与施工建设。项目基地选择了村内废弃多年的小学。要求在预算极为有限的情况下完成建筑的改造、新建、以及室内装饰和场地处理;其功能设置包括社区活动中心和技能培训中心;还包含一些对外接待服务的功能,在起到服务业示范作用的同时要为村集体带来一些经济收入。
Rather than the creation of architecture design, this is a project emphasising on setting an example for community. The original purpose is to play an exemplary and instructive role in the process of development of the local community and villagers. In terms of architectural profession, it aims at providing technical demonstration of house construction for the local people, taking use of local materials, and having them as main workforce involved in construction. The site is located in a demolished primary school. It is required to complete the reconstruction part、new buildings、interior decoration and site landscape under the conditions of tight budget; The function includes community center and skill training center; in addition, it also contains tourists’ hospitality services, boosting the local economy along with setting an example of service industry.
▼改造后的建筑全貌,after transformation
基地概况 Site Profile
项目位于陕西省合阳县城后村。城后村坐落于梁山、武帝山南麓,村庄地势较高,向南拥有广阔的视野,可俯瞰广袤的大地和田野。基地原为东城后村与西城后村之间的小学,已荒废多年。基地的四周为苹果园环抱,东侧的主要村庄道路连接西城后与东城后,也是通往武帝山景区的必经之路。原小学为南北两排房屋,中间为活动场地,东侧临路设置学校大门。现状建筑分别有40年到50年的历史,大部分结构较为完好,西北角的房屋局部有坍塌现象。
The project is located in Chenghou village, Heyang County, which is in the northeastern part in Shaanxi Province. The village, which sits at the foot of Liang Mountain、the south of Wudi Mountain, is at higher elevation with great views overlooking vast areas of earth and fields when facing south. The specific site is used to be a primary school between east village and west village, which has been abandoned for many years. The site is surrounded by apple orchards, the road on the east connecting the western village into the eastern village, which is also on the way to Wudi Mountain scenic spot. The center of the primary school is used to be a playground, which was surrounded by two rows of classrooms on the north and on the south respectively, leading east to the school entrance. The existing buildings have been there for around forty to fifty years, the structures remain mostly intact except the north-west corner roof.
▼原始建筑,original building
院落与人群 Courtyard and Crowd
在整体布局上,新建部分延续了原有南北两排房屋的格局,中间的场地自东向西被划分为三进院落,由外部的公共空间向内部的私密空间逐层递进。
In the layout, the new addition continues the existing plan pattern, while the court in the center is divided into three parts from east to west, progressive-like changings from the public space outside to intimate inner space.
▼总平面图,master plan
不同的院落具有不同的空间属性,针对的是不同的使用者。入口区域向道路完全敞开,可供来往的村民在此停留休息;也可供路过的游客停车、就餐、参观村史馆——了解当地的故事、风土人情。穿过原有的照壁进入第一进院落,这里是为村里老人和儿童提供的区域;院子的长向与行进方向变成了垂直关系,东西两侧由镂空砖墙作为半透明的院落围护,由砖墙框定出来的小屋便是儿童和老年活动室。
Different courtyards are designed to serve diverse users. The entrance zone is leading directly to the road, not only for attracting passing-by villagers to stay and have a rest, but also allowing passing-by tourists to park, have a meal, and pay a visit to the village history museum, which will make them more familiar with local customs and traditions. The first courtyard, which is designed especially for the elderly and children, will be in front of you when you pass through the original screen wall. The length of the yard is perpendicular to the direction of travel, the two hollow walls on the east and west sides are forming translucent enclosure walls, the function room for the elderly and children is within the renovated brick walls in this area.
▼第一进院落,the first courtyard
第二进院落是相对最为开阔的地方,由会议室、图书阅览室、和接待、管理用房组成,这里是外来游客和本地村民共同使用的区域。最内的院落为新建部分,为游客住宿区,是较为私密安静的场所。最西端是未来发展用地,短期内被利用作为农业种植体验园。通过功能布局和流线上的设置,希望整个示范园能够为本地村民与外来游客共同使用。让城市游客和本地村民在交流共处中能够增进相互间的了解,能够各自有所汲取和收获。
The second courtyard is more spacious, which consists of a meeting room, a library, and a room of reception and administration, where it is for visitors and villagers sharing. The innermost courtyard is totally a new one for tourist to accommodate, it is quiet with the best privacy. The westernmost part of the whole site is now used for experiencing the agricultural plantation, remained as for future development. Upon setting up function layout and flow organization, the design attempts to serve both the tourists and villagers in the demonstration garden. It aims to provide a venue for these two different groups of people to communicate and coexist, from which they can deepen their mutual understanding and learn something.
▼第二进院落是外来游客和本地村民共同使用的区域,the second courtyard as a sharing space for visitors and villagers.
▼较为私密的新建院落,the more private new courtyard
▼最西段是未来发展用地,the west end remained as for future development.
新与旧 The New and the Old
对原有建筑的改造,有原样修复也有新内容的增加。一些有历史或者有独特价值的元素被小心的保留了下来,使原有的历史痕迹得以延续。在结构损坏严重需要更换的部位,采用了与传统相同的材料、不同的构造方式,真实、清晰的留下当代人对历史的“触碰”,并力图达到新旧并置与相融的状态。
The rebuilding has two parts, the reconstruction and the addition. The elements that have historical or specific values are preserved to protect the continuation of the historical traces. As referring to the parts that are structurally damaged, the approach is totally different. The use of unconventional materials and creative constructions intends to leave a clear touch of history from present generation, with an effort to make the renovated and the old to reach a state of collocation and integration.
▼新旧材质对比,comparison of the new and old materials.
▼建筑中有历史的部分被保留下来,historic parts are preserved.
新建建筑是为外来游客提供住宿的客房,空间布局上是原有建筑向西侧的复制。建筑四周的檐廊是当地传统建筑出挑屋檐的变体,檐廊被串联成一体围合出院落、形成灰空间,给原有单一狭长的院落带来层次、添加些许趣味;走廊顶部可供游客游走休息、观赏田野、攀爬屋顶。新建筑开窗和院落围墙的设计都争取了最大的景观视野,目及之处皆为果树、果园,让游客能够充分感受到身处自然,与自然相融。
The new buildings offer accommodation for tourists, the space organization copies that of the original east part. The galleries around the new building is a variant of traditional deep roof overhang, the galleries in series form the courtyard and grey space, really adding depth and more fun to this single narrow courtyard. The top of the hallway allows tourists to walk around and have a rest, witnesses an astonishing view, while climbing the roof. Also the window and fence are designed to ensure the maximization of views of fruit trees and gardens, which make the tourists could fully appreciate that they are surrounded by nature and integrated into natural surroundings.
▼建筑四周的檐廊是当地传统建筑出挑屋檐的变体,the galleries around the new building is a variant of traditional deep roof overhang.
过去与未来 The Past and the Future
过去这里是知识传授的场所,小小的学校培养了几代人,使文明与智慧在这远山脚下的村落得以传承。今天村庄面临发展的困境和转型的契机,通过对废弃空间的激活、功能的转化,期待它能够为村庄的未来发展点亮一丝微光。
The spot was used for teaching as a small school, which have fostered several generations, passing on civilization and wisdom in this remote village. The difficulty in development seems to provide the opportunity of reform and transition, it is expected that the design, with the aim of transforming the functions from the deserted space, would bring a glimmer of light for the village’s future.
▼院落夜景,night view of the courtyards
▼总体轴测图,axon
▼平面图,floor plan
▼剖面图,section
项目位置:陕西省合阳县城后村,中国
业主:香港嘉道理慈善基金会,陕西妇源汇性别发展中心
建筑设计:合木建筑工作室
主持建筑师:张东光、刘文娟
设计团队:颜洁铭、崔一松、林伟圳、宁正阳、杭晓萌、孙洁、张嘉丽
建筑面积:618m2(改造336m2,新建282m2)
项目造价:78万元(CNY)
项目时间:2016年
Location: Chenghou Village, Heyang, Shaanxi, China
Client:Kadoorie Charitable Foundation, Shaanxi Gender Development Solution
Architect: Atelier Heimat
Principal Architects: Dongguang Zhang, Wenjuan Liu
Design Team: Jieming Yan, Yisong Cui, Weizhen Lin, Zhengyang Ning, Xiaomeng Hang, Jie Sun, Jiali Zhang
Building Area: 618m2
Project Cost: 780,000(CNY)
Period:2016
客服
消息
收藏
下载
最近


















