查看完整案例


收藏

下载

翻译
The Christchurch Justice and Emergency Services Precinct (CJESP) is the largest combined facility of its kind in Australasia, and the first major public development built by the New Zealand Government following the devastating 2010 and 2011 earthquakes.
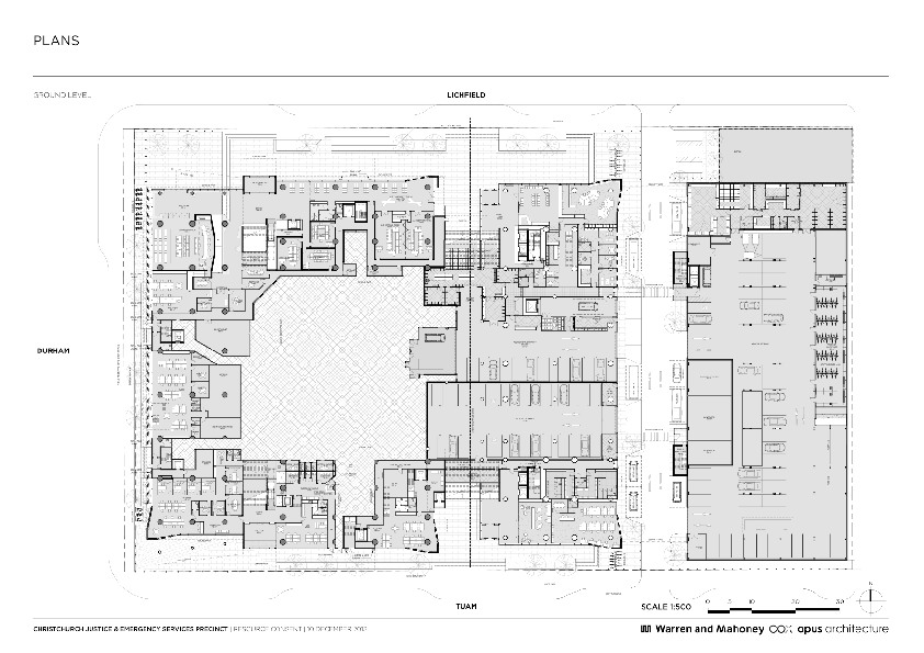
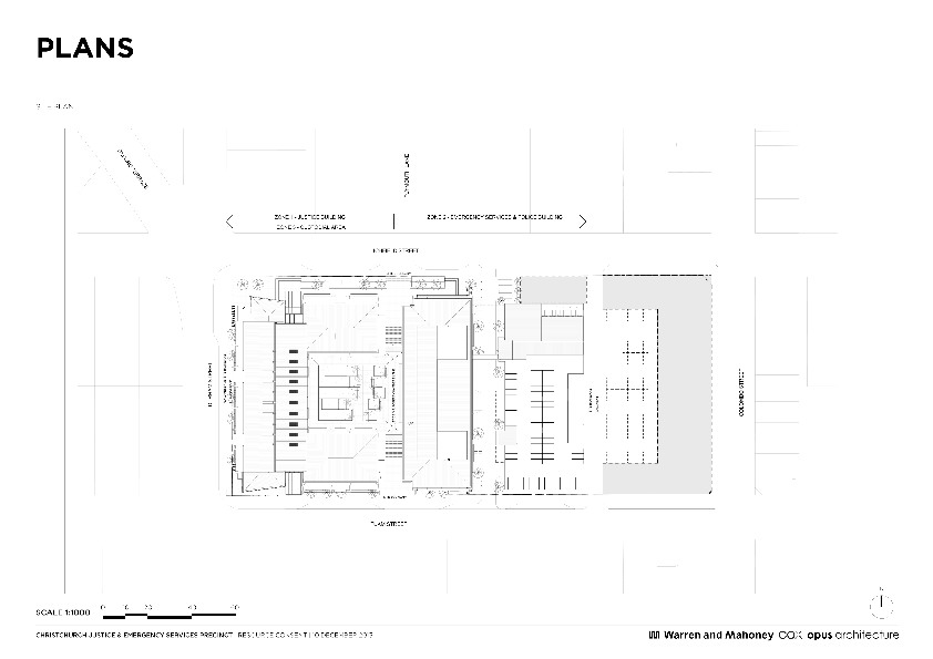
The Precinct, commissioned as a key project to accelerate the reinvigoration and revitalisation program within the city’s devastated CBD, consolidated all justice and emergency services within a single purpose-built precinct made up of three elements; the Justice Building, the Emergency Services Building and a car park for operational vehicles.
The 40,000m2 precinct was designed through a collaborative process between Warren and Mahony, WSP Opus Architecture and COX to house 19 multi-jurisdictional courtrooms, an emergency operations centre, facilities for police, corrections, fire service, St John’s ambulance, the Christchurch City Council and Environment Canterbury.
Taking up an entire city block and combining services that prior to the earthquakes were spread across 22 locations, the development is a commitment to the quake-prone city, designed to protect its citizens and represent a symbol of safety for the people and a reliable fortification against future disasters.
Five years in the making, the precinct officially opened in September 2017, bringing life back into the city centre and restoring confidence in Christchurch as a safe and vibrant city.
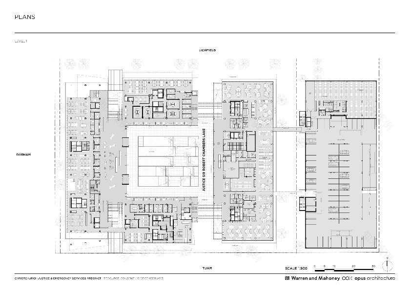
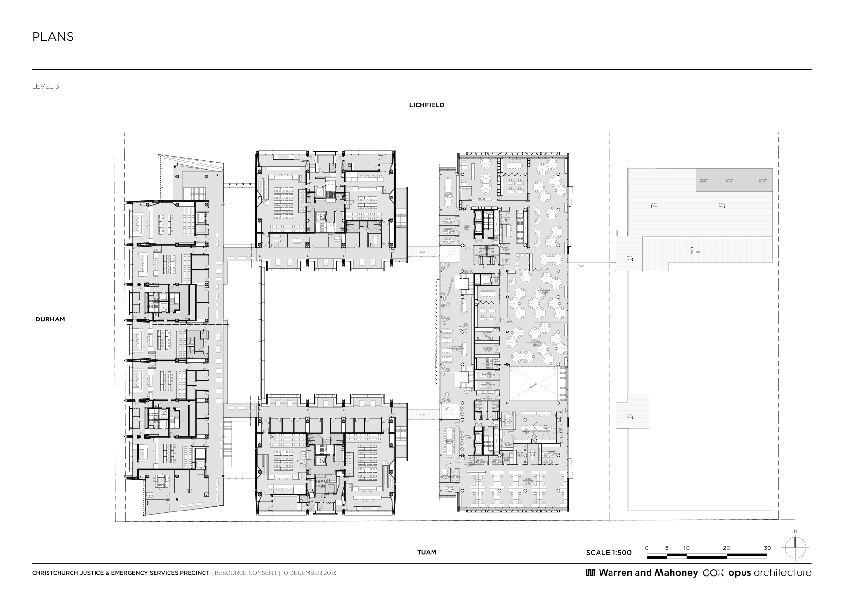
The site’s size enabled the incorporation of a generous courtyard, furthering the precinct’s sense of openness. A glazed public atrium overlooking the courtyard allows all circulation and waiting areas to enjoy views of green space or the city, exploiting close visual links to the beautiful Avon River and Port Hill.
From the street, concrete denotes the Justice Building’s civic grandeur, with extensive glazing, artwork and bronze accents adding a sense of softness. The design of the building seeks to steer clear of the traditionally dense and visually impenetrable public buildings that often comprise of looming mahogany walls and bland corridors.
The CJESP sought to engage with the community, openly inviting the public into the precinct via accessible public entries and free-flowing movement paths. These design strategies create spaces that decrease some of the high-stress situations occurring within the precinct’s walls.
The Christchurch Justice and Emergency Services Precinct is an important marker in the rebuilding of Christchurch City and is symbolic of the government’s dedication to its city and people.
客服
消息
收藏
下载
最近

















































