查看完整案例


收藏

下载
本项目位于绍兴市会稽山旅游度假区宛委山下,建筑面积为 26141.84 平方米。兰亭安麓约五十幢具有 200-400 年历史,每一栋建筑都使用了明清两代徽派住宅,经过 200 多位匠工精心修复而成。地块内建筑异地迁建的单层木结构建筑,多用于度假客房,建筑高度约为 5 米。两层木结构为酒店餐饮配套用房,建筑高度第一层层高 4.1m,第二层层高 3.7m。建筑在满足现代使用需求和现行规范基础上,尽量保持建筑的原有风貌尽量不加建多余建筑。
▼项目鸟瞰外观,aerial view of the project ©华汇集团 伍维设计工作室/ 章鱼见筑
The project is located at the foot of the Wanwei Mountain in the Huaiji Mountain Tourist Resort of Shaoxing, with a construction area of 26141.84 m².
About 50 buildings in Anlu, Lanting, have a history of 200-400 years. Each of them was built on the basis of the Hui-style dwellings of the Ming or Qing Dynasty, and was carefully restored by more than 200 craftsmen.
The relocated single-storey wooden structure houses in the site are mostly used as resort rooms with the building height is about 5 meters. While the two-storey wooden structure houses are hotel catering supporting rooms with the building height is 4.1m on the first floor and 3.7m on the second floor.
Buildings are designed to keep the original style on the basis of meeting the modern use requirements and the current specifications, as far as possible without adding extra buildings.
▼远景鸟瞰,aerial view from a distance©秦森集团
整个建筑群结合山地建造,尽量保持原有地形地貌和山体的冲沟,不做过多装饰,打造了一个世外桃源般的高端隐世酒店。一个自然的村落呈现在我们的眼前,给人们的休闲度假提供了一个很好的场所。兰亭安麓用简约和精致向中国传统文化致以最崇高的敬意。
The entire building complex is built according to the mountain trend, trying to maintain the original terrain and gullies of the mountain, without making too many decorations, creating a never-never land-like high-end hidden hotel. A natural village is presented in front of our eyes, providing a good place for people’s leisure vacation. Lanting Anlu pays its highest respect to Chinese traditional culture with simplicity and refinement.
▼鸟瞰,项目依山势而建,aerial view of the project built according tot he mountain trend©华汇集团 伍维设计工作室/ 章鱼见筑
▼见龙潭鸟瞰,aerial view of the Jianlong lake©华汇集团 伍维设计工作室/ 章鱼见筑
在兰亭安麓,中国文化与现代时尚并存,与自然融合。从古至今的穿越,体验传统、现代、时尚融合的生活方式。可以从宛委山俯瞰这片世外桃源,建筑依山势而建,高低错落,树木掩映。灰瓦白墙的江南别院,隐现于清雅幽静的山脚下,传承着百年老宅的经典韵味。约五十幢具有 200-400 年历史,经精心保护典藏修复而成的古建筑群组成,成就独一无二的古建度假酒店体验。
In Lanting Anlu, Chinese culture coexists with modern fashion and blends with nature. From ancient times to the present, you can experience a lifestyle that combines tradition and modernity and fashion. You can overlook this paradise from the Wanwei Mountain. The buildings are scattered randomly over the mountain and hidden among trees. The southern courtyard house with grey tiles and white walls is located at the foot of the elegant and quiet mountain, inheriting the classic charm of the century-old mansion. About 50 ancient buildings with a history of 200-400 years, which have been carefully preserved and restored, together achieve a unique experience of the ancient architecture resort hotel.
▼传统建筑与自然,traditional buildings and the nature©章鱼见筑
粉墙、黛瓦、马头墙这些众所周知的徽派建筑特色,更是表现了徽派建筑的精巧艺术成就,使整个酒店更显精致简约。朴而不素,华而不奢,雅而不俗是酒店的写照,完整传达徽派特有的清雅美学。兰亭安麓的每一栋建筑都使用了明清两代徽派住宅、家具、三(砖、木、石)雕等方面的收藏。在江南传统古民居的木雕中,做工精细考究,最为吸引眼球的是“牛腿”,它同时也是房子装饰的最大亮点。
The well-known Hui-style architectural features such as white wall, black tiles, and horse-head wall show the exquisite artistic achievements of the Hui-style architecture, making the whole hotel more refined and simpler. Simple but not plain, gorgeous but not luxurious, elegant and not tacky is the portrayal of the hotel. It fully conveys the unique and elegant aesthetics of the Hui Style. Every building in Lanting Anlu uses collections of Hui-style dwellings, furniture, and three carvings (brick, wood, stone) in the Ming and Qing Dynasties. Among the wood carvings of traditional ancient houses in southern China, the one with exquisite workmanship and the most eye-catching is bracket. It is also the biggest highlight of house decoration.
▼传统建筑细部,details of traditional buildings©秦森集团
穿过一片樱花林后首先来到的是原属安徽将军府的正厅。将军府用材粗壮、高大巍峨、雕饰丰富,它拥有双天井、罗锅椽、圆柱雕础与青砖铺地。后院看出去是碧绿的见龙潭。酒店有 35 栋、88 把钥匙的套房别墅,以及具有安麓品牌属性的精选附属设施。基础房型“宛委阁”60 平方米,“阳明阁”独门独院,“兰亭阁”临水而居,还有 8 套泳池别墅“安麓阁”。所有客房都有地暖、BOSE 音响、岛屿式浴缸干湿分离。酒店与自然融合,为宾客提供一处可提供宁神静气、返璞归真的休闲胜境。采用大量原生态木材、手工艺品为你引荐一段充满生态的下榻体验。在保留了原貌独特风格的基础上进行了创意性改造,使得其性能与设施有了极大提高又保留江南风情。景观独具匠心地将地形改造出了“三叠泉”的效果,澄澈的溪水从山涧流下。这正像《兰亭集序》中描述的“曲水流觞”,大家坐在溪流两旁,让酒杯从上游顺流而下,停在谁的面前,便由谁取杯饮酒赋诗,悠然惬意。
▼项目主要景观节点,landscape nodes in the project©华汇集团|伍维设计工作室
After passing through a cherry blossom forest, the first thing to come to is the main hall that originally belonged to Anhui General Mansion. The wooden material of the General Mansion is stout, tall and majestic with rich carvings. The house has double courtyards, luoguo rafters, cylindrical carved plinths and gloomy tile-paved floors. From the backyard, there is a verdurous pond. The hotel has 35 villa suites with 88 keys, as well as specialty ancillary facilities with Anlu brand attributes. The basic room type ‘Wanwei Pavilion’ is 60 m², the ‘Yangming Pavilion’ is a separate house, the ‘Lanting Pavilion’ stands near the water, and there are another 8 pool villas ‘Anlu Pavilion’. All rooms have underfloor heating, BOSE audio, and island-style bathtub to separate wet and dry. The hotel is integrated with nature to provide guests with a place where they can enjoy tranquility and return to the original nature. A lot of original wood and handicrafts are used to introduce a living experience full of ecology. On the basis of preserving the unique style of the original appearance, the hotel was creatively reconstructed, which greatly improved its performance and facilities while retaining the southern China style. The landscape is ingeniously designed according to the terrain to create a “triple spring” effect with clear streams flowing down the mountain. This is just like the “Floating Wine Cup along The Winding Water” described in ‘The Orchid Pavilion’. Everyone sits on both sides of the stream and let the wine cup flow down the stream. The wine cup stops in front of who, who will take the cup, drink wine and write a poem. The atmosphere is relaxing and cozy.
▼古桥景观,old bridge scenery©秦森集团
▼酒店公区建筑外观,external view of the public buildings©
上:华汇集团 伍维设计工作室/ 章鱼见筑,下:秦森集团
▼传统民居复原的若耶音乐厅,music hall restored from traditional residential buildings©秦森集团
▼单层传统民居客房,guest room in traditional single floor residential buildings©华汇集团 伍维设计工作室/ 章鱼见筑
▼单层民居客房入口庭院,entrance garden of the guest room in single floor residential buildings
©华汇集团 伍维设计工作室/ 章鱼见筑
▼双层传统民居客房,guest room in traditional double floor residential buildings©秦森集团
兰亭安麓有一个全日餐厅,餐厅共有 94 个室内餐位和一个包厢,提供本地风味菜肴及各式西餐。有一个 400m2 无柱宴会厅,均为官厅原样重建,无论是商务会议或是婚宴庆典,都可以一应满足,也可为宾客量身策划妙趣横生的国学文化体验。您可以探秘绍兴的自然环境,与大自然亲密互动。您也可以探索古时人文历史,感受这座城的悠悠岁月。
Lanting Anlu has an all-day dining restaurant with a total of 94 indoor seats and a private box. It serves local-style dishes and various Western dishes. There is a 400 m² pillarless banquet hall, which is the original reconstruction of the official hall. Whether it is a business meeting or wedding celebration, it can be satisfied. It can also serve the guests with a fun and vivid experience of Chinese culture based on their personal preferences. You can explore the natural environment of Shaoxing and interact closely with nature. You can also explore the humanistic history of ancient times and feel the long history of the city.
▼茶室天井,sky well in the tea room©秦森集团
▼单层传统民居客房室内,interior space of the guest room in traditional single floor residential buildings©上:秦森集团,下:华汇集团 伍维设计工作室/ 章鱼见筑
酒店所在的宛委山不仅自然景观优美,人文也十分丰富。龙瑞宫、葛仙翁炼丹井、苗龙升仙石、王守仁求学的阳明书院等众多遗迹点缀了阳明洞天,使其具有浓厚的道教文化色彩。
The Wanwei Mountain where the hotel is located is not only beautiful in natural scenery, but also rich in humanities. Numerous relics such as Longrui Palace, Gexianweng Alchemy Well, Miaolong Shengxian Stone and Yangming Academy, where Wang Shouren studied, adorn the scenic spot of ‘Yang- ruing Cave’, giving it a strong color of Taoist culture.
▼夜景,night view
©上:秦森集团,下:华汇集团 伍维设计工作室/ 章鱼见筑
消防设计方面,经过建筑专家的多轮讨论和木结构的专题消防论证,对于木结构构建耐火极限达不到现行规范要求的建筑,设计采用辅助加强消火栓、喷淋保护,辅以局部饰面型防火涂料。
节能设计方面,木门窗均采用实木花格窗及中空玻璃的设计,保证使用上的舒适性,又保持了建筑的风貌。在外墙保温上,使用保温砂浆结合纸筋石灰墙的工艺,和传统工艺结合,使得粉墙黛瓦的建筑风貌经过一段时间的自然处理,很快得以呈现。
In terms of fire protection design, after several rounds of discussions by experts and the special fire protection demonstration of wooden structure, for buildings where the fire resistance limit of timber components does not meet the current specification requirements, auxiliary measures are taken, such as strengthening fire hydrants, adopting spray protection, and using localized finishing fire retardant paint.
In terms of energy-saving design, doors and windows are designed with solid wooden lattice and insulating glass to ensure the comfort of use and maintain the style of the building. In the external wall insulation, the technology of thermal insulation mortar in combination with paper-reinforced lime wall, combined with the traditional technique, makes the architectural features of ’white wall and black tiles’ can be quickly presented after a period of natural treatment.
▼传统民居复原过程,process of restoring the traditional residential buildings©秦森集团
▼地形剖面图,overall sections©华汇集团|伍维设计工作室
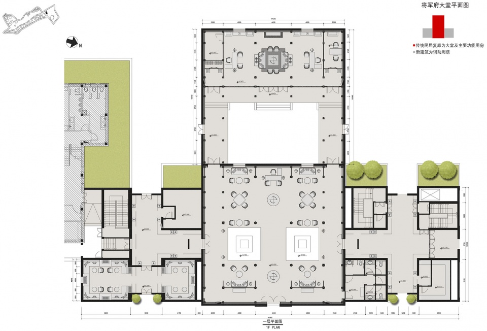
▼将军府大堂平面图,plan of the lobby in the General Mansion©华汇集团|伍维设计工作室
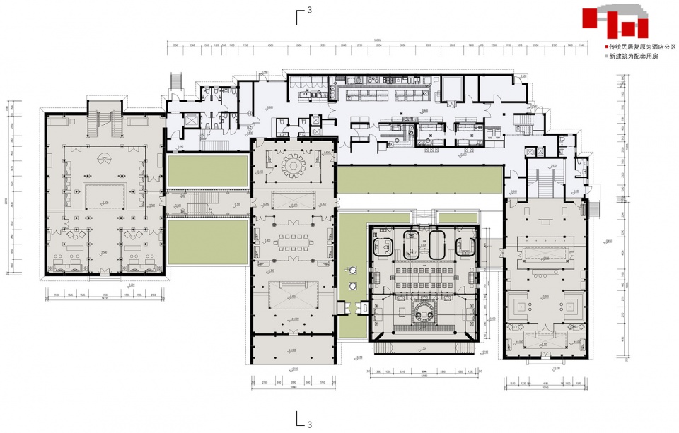
▼酒店公区平面图,plan of the public space in the hotel©华汇集团|伍维设计工作室
▼酒店公区剖面图和立面图,section and elevation of the public space©华汇集团|伍维设计工作室
▼单层传统民居客房平面图和立面图,plan and elevation of the guest room in traditional single floor residential buildings©华汇集团|伍维设计工作室
项目名称:兰亭安麓酒店
设计方:华汇集团|伍维设计工作室
项目设计:2011 年 5 月~2012 年 3 月
完成年份:2014 年
主创及设计团队:唐秋芳、卜呆丁、祝丹红、李治跃、朱益民、夏军
项目地址:浙江省绍兴市越城区阳明路 27 号
建筑面积:26141.84㎡
摄影版权:秦森集团,华汇集团 伍维设计工作室/章鱼见筑
客户:秦森集团
客服
消息
收藏
下载
最近





























