查看完整案例


收藏

下载
尼山大学堂项目位于孔子出生地——山东曲阜尼山南麓,是一个集文化体验、修学启智、生态旅游、教育培训于一体的综合性文化项目。
The project of Nishan Sacredland Great Learning Hall (the “Hall”) is located at the southern foot of the Nishan Mountain in Qufu, Shandong Province, the birthplace of Confucius. It is an integrated cultural project incorporating cultural experience, learning and enlightenment, eco-tourism, and education and training.
▼项目概览,General view ©章勇
建筑布局 | Architectural Layout
不同于建于平地上的建筑,建筑力求依山就势,与山丘连为一体,尽量避开地形汇水沟和原有林带,依靠山体之势层层退后形成错落的形态。建筑共9层,从外观看来形成了三层基座,五层主体建筑之势。建筑面宽175米,进深205米,大学堂结合高程做了立体的多进院落并且结合山体走势,形成Z形展开的主体建筑布局。
▼核心区鸟瞰,Aerial view of core zone ©章勇
Different from buildings built on flat grounds, the building strives to be close to the topography of the mountain and integrates with the hills, trying best to avoid the terrain catchment ditches and the original forest belts. Relying on the topography of the mountain, it retreats layer by layer to give rise to a form strewn at random. The building has a total of nine floors. The exterior reveals the formation of a three-floor base and a five-floor main building. The building is 175 meters wide and 205 meters deep. The Hall, taking into account the elevation, has made a three-dimensional multi-row courtyard. Moreover, combined with the topography of the mountain, it has formed a Z-shaped main building layout.
▼项目鸟瞰,Bird’s eye view ©章勇
空间游线 | Touring Line in the Space
设计中采用了曲阜孔庙等传统建筑的空间构成形式由三个层面构成:外围的自然庭院,中间由回廊连接的各个公共用房以及中央“仁、智、礼、仪、信”等各个核心厅堂。通过一条游线将这些空间串连起来,在游历的过程中渐入佳境。
The design, having adopted the spatial composition of traditional buildings such as the Temple of Confucius in Qufu, consists of three levels: The natural courtyard on the periphery, the public buildings connected by winding corridors in the middle, and the core halls such as “benevolence, wisdom, propriety, ritual and credit” in the center. These spaces are connected in tandem by a tour line, leading to more enjoyable places in travelling.
▼大学之道台阶大厅,The Steps Hall of the Way of Great Learning ©章勇
▼七十二贤廊,The Corridor of Seventy-Two Virtuous Persons ©章勇
▼仁厅,The Benevolence Hall ©章勇
▼礼厅,The Propriety Hall ©章勇
形态设计 | Form Design
建筑形体设计以不对称的体块构成动态的均势,下部裙房层层退台,衬托起上部主体建筑的高大气势。建筑屋顶采用宽阔平缓的坡屋顶,给人以宽广深远的感觉。建筑风格“不为拘泥、不为偏激、寻求适度”,气势宏大而不张扬;外在拙朴而内在精美,古意盎然而不失现代简约,符合礼教又尊重自然。突出儒学的思想内涵。
The design of the building form gives rise to a dynamic balance of power with asymmetrical blocks. The lower annexes withdraw from the platform layer by layer, setting off the tall momentum of the upper main building. The building adopts a wide and gentle sloping roof, giving a broad and far-reaching feeling. The architectural style is “not rigid, not extreme, and seeking moderation.” It has great momentum, yet not displaying ostentatiously. It features a humble and simplistic exterior and an exquisite interior. It is full of antiquity without losing modern simplicity. It conforms to moral codes while respecting nature. It also highlights the connotations of Confucianism.
▼层层退台,Layers of back sets ©章勇
立面的材料台基选择山东嘉祥产的青石,在表面处理上体现了现代工艺的特征。主体建筑以木色铝板和暗红色砂岩体现传统木建筑的色调,上部屋顶以灰色金属和平瓦展示传统屋面的意向。
The material base of the facade is bluestone produced in Jiaxiang, Shandong Province. Its surface treatment reflects the characteristics of modern technology. The main building is made of wood-colored aluminum plates and dark red sandstone to reflect the tones of traditional wooden buildings, while the upper roof is made of gray metal and flat tiles to show the inclination of traditional roofing.
▼孔子大学堂,Grand Confucius Academic Pavilion Exterior ©章勇
▼立面局部,Parts of the Facade ©章勇
▼立面细节,Detailed view of the Facade ©章勇
建筑景观 | Architectural Landscape
大学堂长于山水之中,以孔子的山水观作为主要建筑景观设计的出发点,建筑是尼山的重要造景元素与尼山圣湖形成一幅山水长卷。同时又将景观引入其中高高低低的平台种植了古松,堆叠了山中,配合了大儒的题字,形成了各个儒文化主题庭院。
The Hall is built in mountains and rivers. Confucius’ views of mountains and rivers have been taken as the starting point of the design for the main architectural landscape design. The building is a vital landscaping element of the Nishan Mountain. It forms a long landscape painting scroll with the Nishan Sacred Lake. Meanwhile, the landscape has been introduced into the high and low platforms planted with ancient pines. Stacked in the mountains, they match with the inscriptions of great Confucian scholars, forming various courtyards featuring Confucian cultural themes.
▼山水景观,Mountains and rivers ©章勇
艺术设计 | Art Design
尼山大学堂是一座展现儒文化的艺术殿堂无论室外的建筑构件、艺术装饰和艺术墙在风格方面都力求与孔子的艺术思想相一致。尽力做到精美而不繁复并且与孔子的故事紧密关联。孔子是思想的集大成者,大学堂也采用丰富的艺术表达方式,具有独特的中国艺术魅力同时与建筑的空间相匹配。
The Hall is an art hall showing Confucian culture, striving to be consistent with Confucius’ artistic thoughts in its outdoor architectural components, artistic decoration and artistic walls. It has spared no effort in being exquisite and yet not complicated; it is also closely related to stories of Confucius. As Confucius was an epitome of thoughts, the Hall also adopts rich artistic expressions showing unique Chinese artistic charm, so as to match the architectural space.
▼细节,Details ©章勇
▼建筑总平面图,General Plan of the Building ©圆直建筑
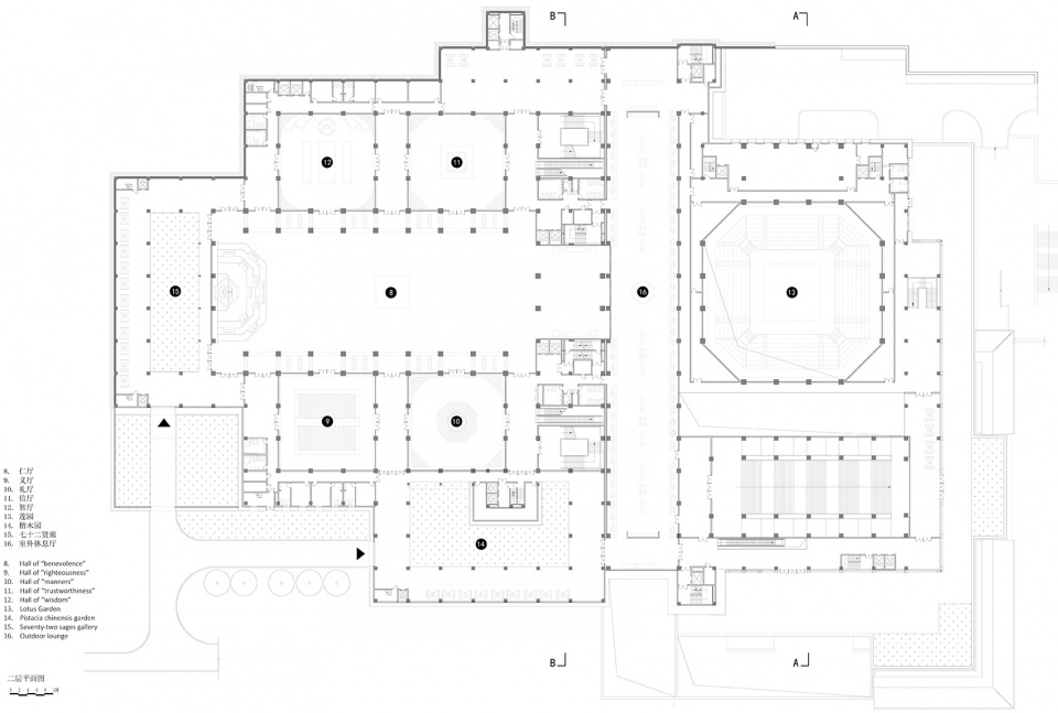
▼建筑二层平面图,Plan of the Second Floor of the Building ©圆直建筑
▼剖面图,Profile ©圆直建筑
项目名称:尼山孔子大学堂
设计方:上海圆直建筑设计事务所有限公司
项目设计 & 完成年份:2013.12-2018.9
主创及设计团队:钱健、杨涛、曲国峰、姚广宜、孙敏达、攸然、汪涛、魏梁修
项目地址:山东省曲阜市尼山圣境核心区
建筑面积:65000M²
摄影版权:章勇
合作方:
华东建筑设计研究总院 (施工图设计)
禾易设计(室内设计)
客户:曲阜尼山文化旅游投资发展有限公司
客服
消息
收藏
下载
最近


















