查看完整案例


收藏

下载

附件

翻译
The renovation of the Kings House on the Golf Course Bled focuses on the authentic architectural qualities of the 1930ies aristocratic mansion. The mansion, altered in 1970ies has become a conglomerate of the additions that took away authentic qualities of the building, making it less monumental, oddly proportioned and unfunctional. The renovation strips down the house to its structural essentials as it exposes the fundamentals oversight over the years – the construction grid of the roof, the concrete vaulting, rich stucco and frescoes. The project indeed opens the house to its picturesque surroundings.
Tourism in Bled started in 1855, when Swiss hydropath Arnold Rikli acknowledged the value and advantage of the local climate. More and more tourists followed Rikli’s patients, spending their holidays in a healthy and beautiful environment. Between both wars Bled became a top metropolitan resort in Yugoslavia and the center of the political and diplomatic life during the summer months. The royal family Karađorđević made Bled their summer residence.
Construction of the golf course started at the initiative of the royal family. It was opened in 1937 and is still the oldest and largest course in Slovenia and one of the most attractive in Europe.
In 1938, a large and luxurious rustic mansion – golf club house – was built according to the plans of architect Franc Kuglič. The tripartite division on the stone base, the dynamic ground floor and a mighty roof gave this building a status of the main building at Golf course Bled. In the decades that followed, the King’s house was often renovated and expanded.
The building is thoroughly renovated, again becoming the most prestigious golf club house in the region. It is designed as the heart of the completely renovated King’s golf course in Bled.
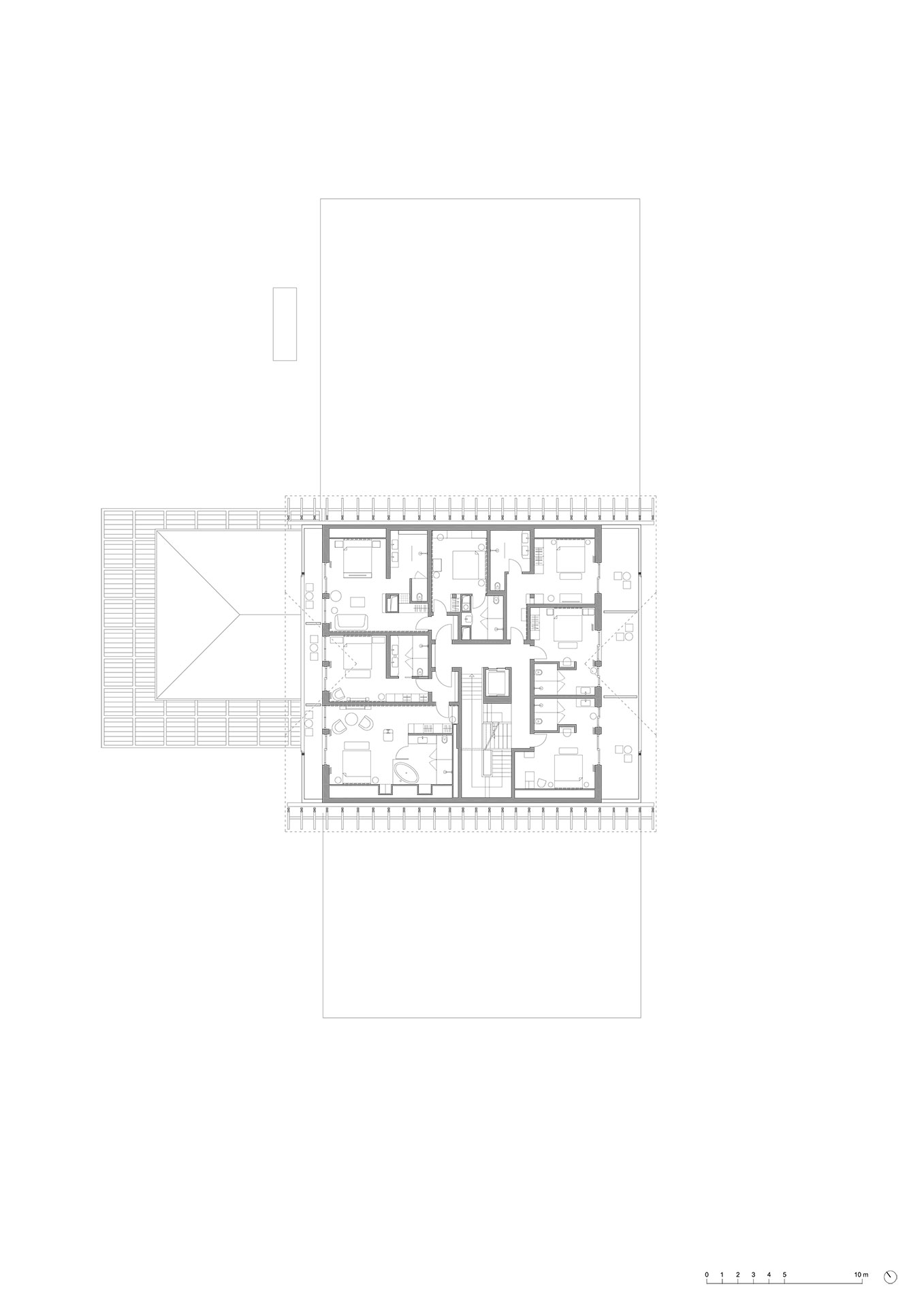
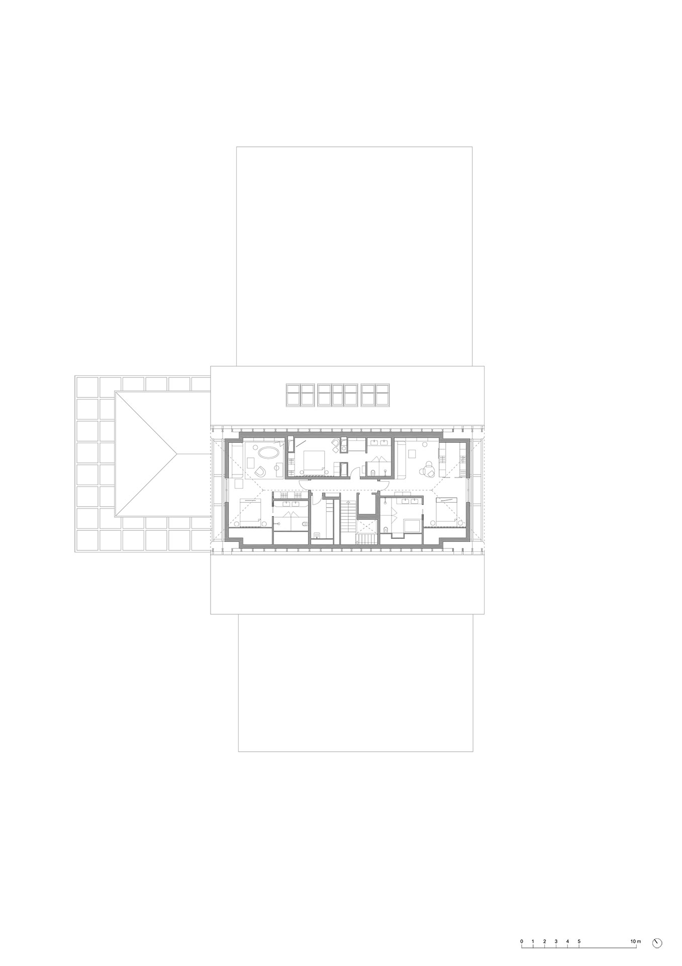
The renovation fully respects the architecture of the existing building. The original structure becomes a framework within which various rich ambient will be placed. The ground floor holds the reception and the amenities for the players. First floor becomes the new social space with a bar, an open kitchen, a lounge room with a fireplace, club space and a trophy room. A restaurant is positioned in the western pavilion. The whole floor is designed in several ambient, offering comfort and pleasure in different social settings. Each of the ambient will have its own visual identity while complementing the whole. The ten hotel rooms, some of which interconnectable, will be positioned in the mighty roof of the hotel.
The club house is furnished in a mix of classic, contemporary and traditional styles – chosen vintage elements are carefully combined with custom made pieces and contemporary furniture.
Functionality of the building is complemented by the landscape design: the building and its surroundings are integrated into the complex by spacious terraces, balconies and functional outdoor areas, overlooking the golf course and the Alps. The horticultural scheme follows the landscape design of the golf course.
The building is designed as a mix of different atmospheres that allows the visitors’ functional comfort and enjoyment in rich, bright and relaxing atmosphere.
客服
消息
收藏
下载
最近






















