查看完整案例


收藏

下载
近百年来,清华大学图书馆屡经展扩,人文日新,而以北馆暨李文正馆为其最近一期。其设计营建,旨在既融于水清木华绰约风致,又以自身形貌功能增益今日大学。虽求悠然澹泊、克制审慎,犹望对话当下,得见时代精神。
As the latest addition to the University Library of Tsinghua University, which has been a constantly growing cluster during the past one hundred years, the North Wing, or the Mochtar Riady Library as it is named after its donor, shows great effort in responding to and situating itself within the historical context of the campus while at the same time complementing and improving the latter by expressing a subtle zeitgeist and temperate contemporariness in both its form and function.
▼鸟瞰,aerial view © 存在建筑
背景Background
清华大学图书馆是校园的重要标志性建筑,始建于1919年,由美国建筑师亨利•墨菲(Henry Murphy)设计。其后历经两次扩建:1930年代由杨廷宝设计的二期扩建和1980年代由关肇邺设计的三期扩建。北馆暨李文正馆,是对图书馆建筑的第四期扩建,地处清华大学校园核心区。设计力求在延续校园历史文脉的同时,满足当代教学与学科发展需要。
The Tsinghua University Library is a landmark building on the Tsinghua University campus. It was initially designed by American architect Henry Murphy, and the construction was completed in 1919, followed by two extensions: the second phase of construction designed by Yang Tingbao in 1930s, and the third phase of construction designed by Guan Zhaoye in 1980s.
This project is the fourth phase of extension of the library complex, located in the core area of the campus. The library embodies the continuance of the historical context of the university, and at the same time addresses the need for development in regards to teaching and academic disciplines.
▼北立面西侧四期和三期建筑的衔接,the connection of the fourth and third phases on the west side of the north facade © 存在建筑
▼东立面和三期建筑的衔接,the connection between the east facade and the third phase building © 存在建筑
形式Form北馆与图书馆既有建筑联结为一有机整体。为减轻对周围环境的压迫感,新建建筑主体上部呈收分退让的姿态,而顶层内收的外围墙体向下延申,成为图书馆一至三层内外层空间之间的分隔界面,两层空间通过墙体上的开洞相互流通,由此形成建筑内外双层的空间嵌套结构:在建筑最外围三层高的通透表皮之内,包裹着平衡了分隔与渗透作用的、更具实体感的四层高墙体。建筑内部这种设计逻辑和空间关系,真实地反映在建筑立面上——在华灯初上的夜景中,被两层墙体的叠加效果表现得淋漓尽致。在此基础上,图书馆富于构成感的红砖构架、大面积的玻璃幕墙以及抽象的细部处理等,都在与既有馆舍相协调的前提下,清晰明确地表达出更加当代的特色。
The new building and the existing cluster are interconnected as an organic whole. The main volume is in a gesture of setting back its top to mitigate its pressure on the surroundings. The set-back exterior walls of the fourth-floor extends themselves downward, serving as a partition between the inner space and the peripheral areas, whereas the circulation in-between is enabled via openings in the wall, and thus generates a horizontally two-layered structure which is fully reflected on the envelop of the building. Behind the three-story-high transparent façade stands a four-story-high concrete wall, which gives a more solid feeling and keeps a spatial balance between separation and interconnection. With the lights on, this layered spatial arrangement is spotlighted against the dark of the night. Moreover, architectural details, such as the patterned brick sunshades on the outside, the extensive glass curtain wall, and decorations in an abstracted fashion, are all parts of the effort to make the new addition a coordinated as well as contemporarily expressed part of the existing library.
▼北侧主入口,富于构成感的红砖构架、大面积的玻璃幕墙,main entrance on the north side with patterned brick sunshades and extensive glass curtain wall © 存在建筑
下沉庭院入口门廊,entrance porch of the sunken courtyard © 存在建筑
下沉庭院及西立面,地下一层入口,sunken courtyard and west facade,entrance of underground floor© 存在建筑
功能Function
在分隔界面墙体所包裹的内层空间中,布置了学术型图书馆常见的藏阅一体阅览空间;而在该墙体与气候边界外墙之间的外层空间中,设计了交通空间、休闲阅览等公共性更强的功能,与外部景观形成更强的互动性。设计充分体现了当代高校图书馆发展的趋势,在功能上弥补了图书馆大空间阅览室的不足,并增加展厅、咖啡厅、开放书店、小组讨论空间、研修间、古籍修复区等新功能,同时在不同标高层设置若干贯通数层的公共空间,串联起整个室内外空间流线。
Enclosed by the partition wall defining the inner space and the peripheral, is a collection-reading area, which is typical of academic libraries. The peripheral areas scattering between the wall and the outmost exterior cladding are for more public programs such as circulation, informal reading and so on, making it a more interactive transition to the outdoor landscape.The new addition represents the trend in the development of university libraries today. A series of complementing programs are introduced with public spaces such as atriums joining the public circulations both inside and outside, including exhibition hall, café, bookstore, group discussion space, study lounge, ancient book restoration area, etc. In the meanwhile, the existing library’s lack of big open reading space is also significantly mitigated.
▼三四期之间形成内庭院,theinner courtyard between the third and fourth phases©存在建筑
▼中庭空间,与外部景观形成更强的互动性,atrium space,making it a more interactive transition to the outdoor landscape© 李炎
▼外侧包裹交通空间,the edge of interior wrapped with traffic space© 李炎
槛外山光如旧,窗中云影常新,本项目在薪传清华图书馆以往各期建筑“和谐得体”传统的同时适度创新,以利校园体形环境和建筑功能的不断演进与多元发展,试为清华图书馆的奏鸣曲,谨添一华彩终章。
Immersed in the same poetic beauty of the campus, the project is a trial to not only keep very consistent with the quality of “harmony and propriety”, a tradition inherited from the precedent three phases of the library as a whole, but also add to it by contributing a very well controlled novelty and diversity to its physical environment as well as building programs, trying to wrap up the sonata of Tsinghua Library with a recapitulating cadenza.
▼模型,models©清华大学建筑设计研究院
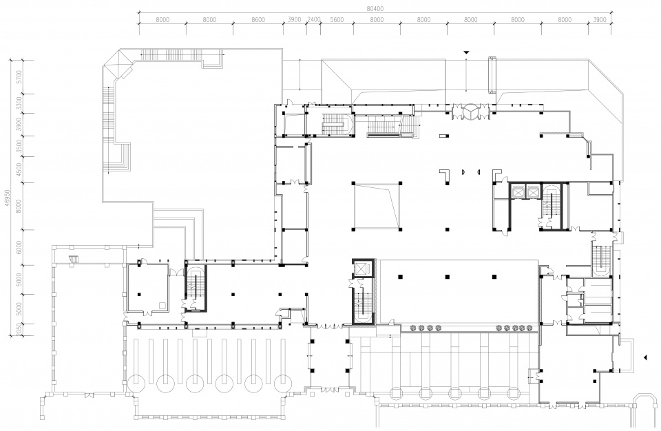
▼一层平面图,F1 plan© 清华大学建筑设计研究院
▼三层平面图,F3 plan© 清华大学建筑设计研究院
▼四层平面图,F4 plan© 清华大学建筑设计研究院
▼立面图,elevations© 清华大学建筑设计研究院
▼剖面图,sections© 清华大学建筑设计研究院
项目名称: 清华大学图书馆北楼
建筑单位: 清华大学建筑设计研究院有限公司
项目完成年份: 2016
设计时间: 2010-2012
建筑面积: 14,959 m2
项目地址: 清华大学校园内
主创建筑师: 关肇邺
设计团队: 关肇邺、刘玉龙、韩孟臻、程晓喜、姚红梅、王彦、姜娓娓、经杰、蔡为新、徐青、刘福利、于丽华、任健凯、崔晓刚、张松
结构设计: 经杰、蔡为新
施工方: 北京城建六建设集团有限公司
摄影师: 存在摄影、李炎
Project Name: Tsinghua University Library North Wing
Architect: THAD (Architectural Design and Research Institute of Tsinghua University)Completion Time: 2016
Design Time: 2010-2012Area: 14,959 m2
Location: Tsinghua University, Beijing
Principal in Charge: GUAN Zhaoye
Design Team: GUAN Zhaoye, LIU Yulong, HAN Mengzhen , CHENG Xiaoxi, WANG Yan, JIANG Weiwei, JING Jie, CAI Weixin, XU Qing, LIU Fuli, YU Lihua, REN Jiankai, CUI Xiaogang, ZHANG Song
Construction Design: JING Jie, CAI Weixin
Contractor: Beijing Urban Construction Sixth Group
Photograph: LI Yan , Arch-Exist Photographer
客服
消息
收藏
下载
最近


















