查看完整案例


收藏

下载
来自
GAFPA
Appreciation towards
GAFPA
for providing the following description:
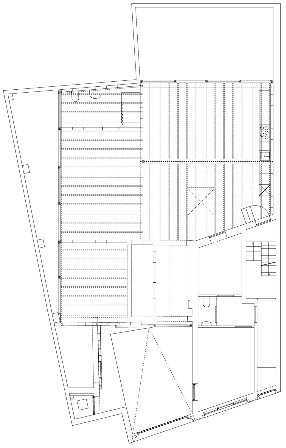
该项目位于比利时Ledeberg市,是一个旧排楼改造项目。一层仓库的天花板被全新的木质屋顶所取代。建筑师在主楼底层安插了一个矩形体块,在最大程度上激发了空间的潜力。规则的建筑平面与不规则的场地边界围合出天井。
The old ground floor warehouse of a terraced house in Ledeberg is replaced by a new wooden roof. The largest possible rectangle is inserted, cut off by the main building. In the space between the plane and the irregular plot boundary, patios are created.
▼建筑与场地边缘间的天井,
patios between the building and the plot boundary ©GAFPA
▼项目室内概览 – 客厅,
overall of the project interior – living room ©GAFPA
新增的混凝土结构柱支撑着两根T字型的木质主梁,共同托起屋顶。木质格栅顺应主梁的方向依次排布。轻质泡沫混凝土墙既作为室内空间的隔墙,又起到了为原仓库与主楼共用墙的保温作用。
Two wooden primary beams in a T-figure support the roof, carried at their intersection by a new concrete column. The wooden grating follows the direction dictated by the main beams. Light cellular concrete walls create rooms and insulate the party wall.
▼混凝土结构柱支撑着两根T字型的木质主梁,
two wooden primary beams in a T-figure support by a new concrete column ©GAFPA
▼卧室的轻质泡沫混凝土隔墙,
light cellular concrete wall of the bedroom ©GAFPA
▼卧室里改造前的结构清晰可见,
pre-renovation structure is clearly visible in the bedroom ©GAFPA
▼木质格栅细部,
detail of the wooden grating ©GAFPA
▼项目施工照片,construction photo of the project ©GAFPA
▼工作模型,working model ©GAFPA
©GAFPA
GAFPA
客服
消息
收藏
下载
最近













