查看完整案例


收藏

下载

翻译
Progettazione architettonica e direzione lavori per il restauro e risanamento conservativo dell’ala sud – est del complesso monumentale La Torre – Villa Torlonia, San Mauro Pascoli, (FC). Bando Por Fesr 2014 – 2020, Asse 5 -Progetti di riqualificazione di beni ambientali e culturali.
Cat. Opere E22 – edifici di interesse storico artistico sottoposti a tutela ai sensi del D.Lgs 42/2004
RTP: arch. M. Farneti, ing. P. Faccio, arch. A. Sperandio, arch. A. Lontani, E. Semprini
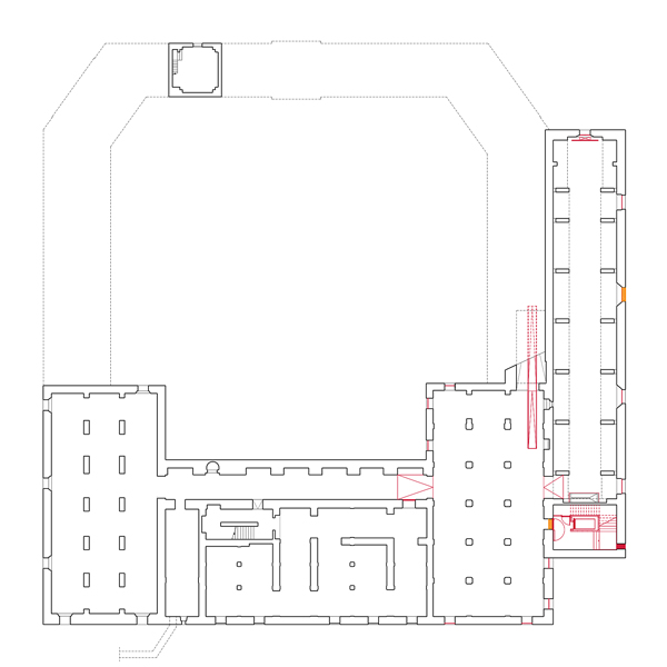
La Villa Torlonia di san Mauro Pascoli (FC), per il suo valore architettonico e di memoria storica del paesaggio rurale, rappresenta uno dei beni culturali più importanti del territorio del Rubicone. Definita dal codice dei beni culturali come “complesso monumentale”, la sua pluralità di fabbricati edificati anche in epoche diverse ha acquisito, come insieme, un’autonoma rilevanza artistica, storica ed etno-antropologica. Se un tempo Villa Torlonia era una perfetta fabbrica rurale, con depositi, stanze per la produzione, ambienti di lavoro e residenza, la storia di oggi ne ha sancito l’inevitabile declino funzionale trasformando il compendio in una suggestiva macchina per eventi culturali. La riorganizzazione funzionale degli ambienti, l’adeguamento agli standard di sicurezza della normativa vigente, la conservazione delle caratteristiche costruttive, materiali e spaziali sono le principali esigenze a cui il progetto di restauro cerca di dare risposta attraverso soluzioni reversibili, ispirate al criterio del minimo intervento e della distinguibilità delle nuove aggiunte rispetto alla preesistenza.
Il primo obiettivo da soddisfare è la rifunzionalizzazione degli spazi legati al progetto culturale Parco Poesia Pascoli. Per rispondere a tali esigenze si ricerca una soluzione distributiva chiara, razionale, capace di esaltare le qualità spaziali dell’edificio storico. Vengono introdotti due accessi distinti, l’uno dalla corte interna, accesso odierno per le cantine e la Sala delle Tinaie, l’altro dall’ingresso originario alla Sala delle Tinaie, fino ad oggi inutilizzato, prospiciente la Chiesa dei ss. Pietro e Paolo. L’accesso dalla corte potenzia le funzioni di accoglienza e orientamento della villa attraverso nuove zone a disposizione del pubblico con biglietteria, bookshop, spazi di accoglienza e servizi igienici. La sala di ingresso alle cantine, caratterizzata da un solaio con volte a crociera su pilastri in muratura, sarà utilizzata per allestimenti minimali e priva di particolari impianti tecnologici mentre la lunga sala adiacente, posta sotto la Sala delle Tinaie, sarà sede del nuovo “Museo Pascoliano Multimediale”. In corrispondenza del nuovo ingresso alla Sala delle Tinaie, riallestita per mostre temporanee, una torre metallica a base rettangolare, comprendente corpo scala e ascensore, collega tutti i piani dell’edificio. La struttura realizzata interamente in acciaio si distacca dalle pareti originarie ricadendo in uno spazio libero da elementi strutturali. Al piano primo vengono riaperti al pubblico spazi da anni inaccessibili, come l’ex sala delle Tabacchine dove verrà ospitato il foyer di accesso al teatro. Da esso due porte, l’una esistente e l’altra aperta a forza, portano alla sala del Teatro di circa 200 posti. Nei locali adiacenti, la sala attori e l’allestimento del Laboratorio delle Associazioni riorganizzato con spogliatoi e servizi.
Dopo aver dato un nuovo uso agli antichi spazi, il recupero passa dalla conservazione degli ambienti. Solo se si concepisce il restauro come un’evoluzione nella vita dell’edificio, solo se si pensa al monumento come divenire, come il risultato di continue trasformazioni, si può cogliere il senso della scelta conservativa intrapresa per l’ala sud-est del compendio. Internamente ed esternamente si è scelto di mantenere lo stato attuale dellʼinvolucro procedendo alla sola sostituzione degli infissi in legno delle sale espositive con infissi in ferro, che richiamano il carattere “industriale” della porzione di Villa restaurata. Tutte le sale sono state lasciate prive di intonaco allo scopo di mettere in luce la diversa tessitura delle murature in mattoni a testimonianza delle sovrapposizioni, delle tracce storiche delle differenti fasi costruttive. Alle incrostazioni, ai brandelli di intonaco, alle travi arrugginite si sovrappongono canali microforati in acciaio zincato, proiettori neri, corpi elettrici lasciati a vista, componenti tecnologiche indispensabili per insediare la nuova funzione pubblica.
Ad ogni spazio inoltre viene garantita accessibilità, superando le numerose barriere e dislivelli sorti a seguito dei molteplici ampliamenti del compendio, attraverso tre diversi sistemi di collegamento: scale, rampe, ascensore che mettono in relazione stanze e livelli della Villa che da troppo tempo necessitavano di dialogare. I corpi di collegamento verticale sono tutti sono manufatti in acciaio acidato, accurati nel disegno e nella fattura artigianale, hanno forme geometriche pure e si distinguono nettamente dal contesto per non risultare dopo breve tempo obsoleti dal punto di vista estetico. Le nuove forme pure, contemporanee, e i materiali impiegati come il vetro, il cemento, l’acciaio acidato, le pareti di cartongesso lisce e prive di imperfezioni sono pensate per entrare in relazione con le superfici incrostate e corrose dal tempo degli antichi paramenti murari cercando di non alterare la percezione della qualità spaziale dell’edificio storico.
客服
消息
收藏
下载
最近

































