查看完整案例


收藏

下载

翻译
Rostov-on-Don is the southern capital of the Russian Federation, a large industrial and cultural center. Platov Airport is the largest transport hub of this rich region with a total area more than 50,000 sq.m.
VOX Architects had a task to design a modern comfortable space for the International Business Lounge of the new Rostov-on-Don airport.
The concept of the project conveys the natural beauty and richness of the southern region: the upper and lower reaches of the Don river, the valley of a deep river, overgrown shoals, the general feeling of warmth, space and abundance that everyone feels here.
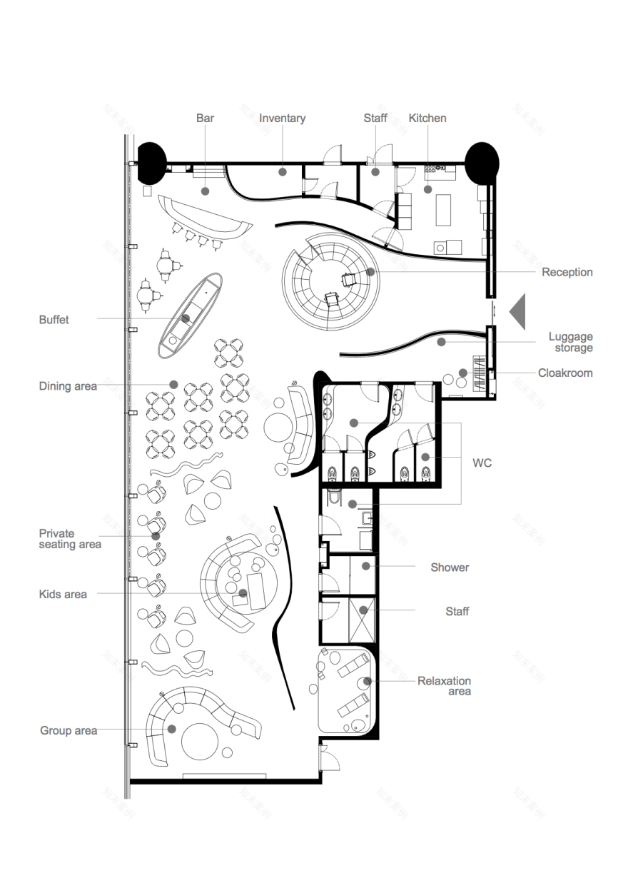
From the entrance one can see the reception – constructed as an art-object, it is in the form of a glowing ball, symbolizing the glow of the setting sun. It is surrounded by special transparent suspensions that generate light reflexes. This impression is strengthened by light-passing baffles made of stretched metal filaments that resemble thin sun rays – all made by architects’ sketches (если по эскизам архитекторов).
The space of the business hall is an elongated room with panoramic windows offering a wonderful view of the vast Rostov region. That view became the main focal point in the organization of space. The architects of the studio have maximally retained the opportunity to enjoy the scenery for each passenger and designed the space in such a way that the separation of zones does not overlap the panorama. All service and sanitary facilities are located along the inner perimeter of the room; the seats are separated from each other by ephemeral partitions made of filaments on a metal base, alongside closed isolated zones.
The business lounge can accommodate up to 65 passengers at a time. Each passenger has the opportunity to choose a place, depending on his preferences: armchairs along the windows — for individual seats; sofas — for families and companies; there is a separate children's play area; places for sleep; a bar and restaurant areas.
The choice of furniture was especially careful. The factories were chosen with the highest indicators of durability and comfort. Each piece of furniture was personally tested by the authors of the project.
In all areas of the airport, high demands are placed on the incombustibility of materials. As such, the architects carefully treated the choice of finishes based on a combination of their acoustic and fireproof characteristics: matt ceramic granite, matt paint for inclined ceiling surfaces, special incombustible cork cover for curvilinear walls, sound-absorbing incombustible wallpaper with a printed gradient, and so forth. Together, these materials created the acoustic comfort so necessary for passengers to rest.
For the convenient charging of mobile devices and electronics, power outlets were designed on special stations, with built-in USB and Wi-Fi charging points.
The main lighting features are constructed at the expense of reflected light from bespoke ‘cloud’ ceiling panels. The engineering of the panels involved a special profile system that fixes the angle of incidence of the light flux and creates a pleasant reflected scattered glow. In addition to the main lighting feature, there are various high-quality decorative lights, which distinguishes zones, create a special atmosphere and mood.
The textures of the main hall create an associative series with the agrarian riches of Russia's largest agricultural region. Cork finishing materials, specially treated with OSB, and a general warm color scheme give a sense of proximity to the natural environment. To emphasize this sensation, a conscious contrast was applied: all closed rooms (bathrooms, showers, etc.) are made exclusively in cold metal finish, with porcelain stoneware, metal textures and coverings. Smooth and reflective forms symbolize the waters of the Don.
客服
消息
收藏
下载
最近






















