查看完整案例


收藏

下载

翻译
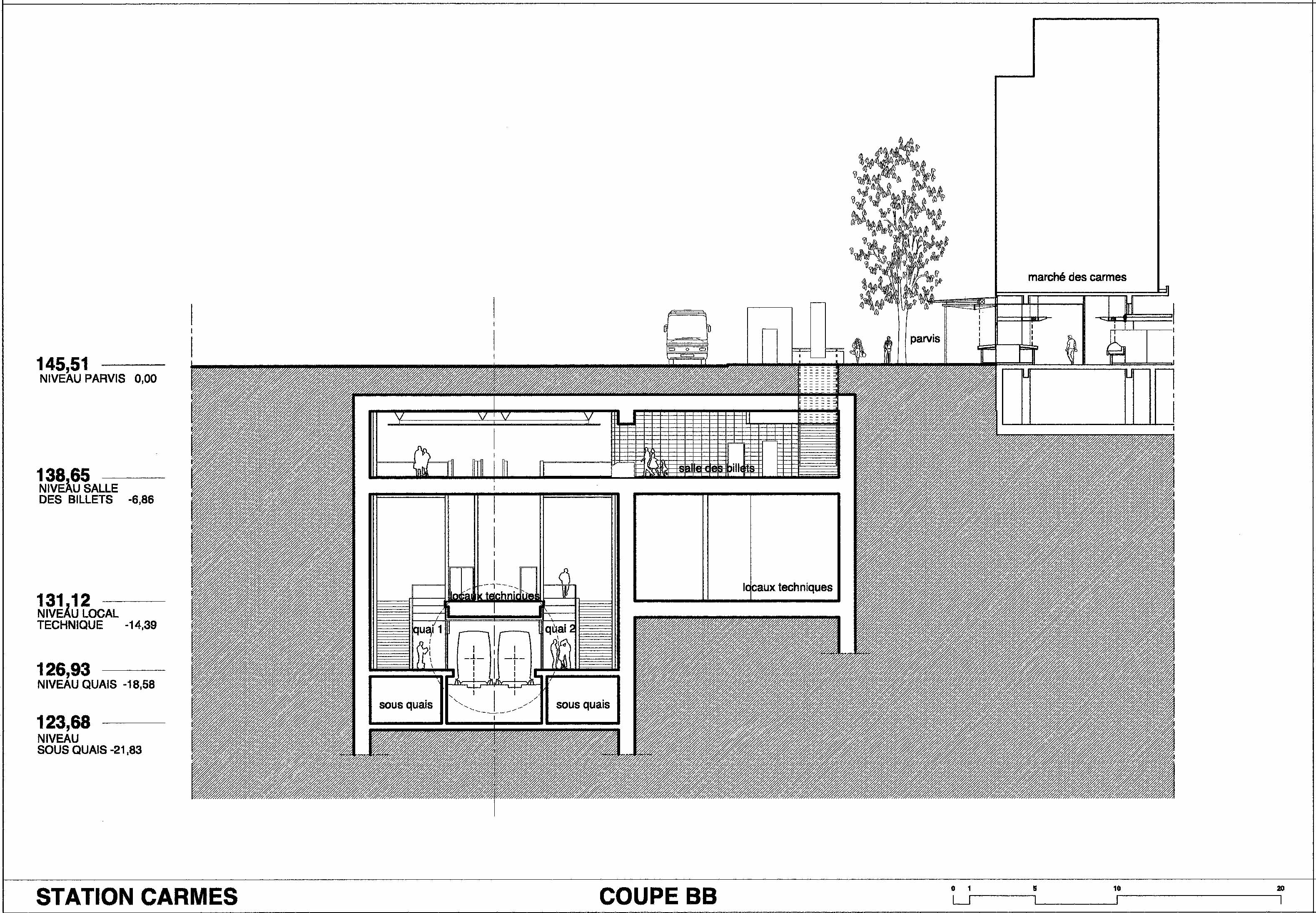
La charte architecturale de la ligne B définit avec précision les objectifs à atteindre pour "spatialiser" les stations et établir ces relations visuelles qui permettent aux usagers de se diriger, de se positionner dans l'espace. Pour la station Les Carmes, la création des trémies nous a permis de construire un volume dont l'ampleur est à l'échelle du trafic de cette station.
Le volume de la salle des billets a été modifié de façon à servir de "chambre de décompression" entre les différents types d'accès à la station ( escaliers, escalators, ascenseurs) et la descente dans le coeur du projet. Son volume décalé par rapport à la "boîte", expression spatiale de la dynamique du déplacement, permet d'identifier chaque angle à une action spécifique (sortir de la station, accèder à un quai, prendre l'ascenseur ou effectuer un service ). Il s'offre comme un espace de transition.
La grande voûte transparente devient le support pour l'intervention de l'artiste
dont l'oeuvre orginale a été sérigraphiée sur chaque plaque de la voûte (500 m2 ). Une partie de l'oeuvre originale est visible au niveau de chaque quai.
Les escalators et escaliers permettent ainsi une sorte de "travelling" pour une découverte de l'oeuvre dans le déplacement.
La voûte est constituée de panneaux de Lexan fixés sur une ossature. Les dalles sont indépendantes les unes des autres. Le vide intercalaire permet de traiter l'acoustique conformément aux recommandations du Cahier des Charges. Le plénum est visitable (entretien lumières, passage gaines, etc...).
客服
消息
收藏
下载
最近





























