查看完整案例


收藏

下载
来自蒙特利尔的建筑事务所ARCHITEM Wolff Shapiro Kuskowski architects为年轻的学生们设计了一个创新型的居住空间。本项目隶属于主教学院中学(Bishop’s College School),是一所私立寄宿学校的宿舍楼,为来自37个国家的270名12至17岁的学生提供了一个极具家庭氛围的宿舍环境。该寄宿学校位于魁北克省的Sherbrooke地区附近,是一个有着上百年历史的校区,占地250英亩,坐落在风景优美的圣弗朗西斯河畔。其内的建筑也充分地展示出了该校园悠久的教育历史和建筑传统。
ARCHITEM Wolff Shapiro Kuskowski architects, a Montréal-based firm, is proud to unveil one of its most recent projects, an innovative residence for young students. Built for Bishop’s College School, this private boarding school provides a family-style environment for 270 students, age 12 to 17, coming from 37 different countries. Located near Sherbrooke, Québec, the century-old campus is set on a site of exceptional beauty, on the banks of the St. Francis River. The original buildings on this 250-acre campus are rooted in a long educational and architectural tradition.
Bird-eye’s view of the building © Maxime Brouillet
本项目是校园内的第八座宿舍楼,同时容纳着居住和教育空间,充分表现出主教学院中学的教学理念——为学生提供多样化的校园环境。这座新大楼名为米切尔之家(Mitchell Family House),朝向现有的校园环境,同时与周边的森林和附近的河流建立了紧密的联系。
The construction of an eighth residence for students, the first to include both residential and academic components, was an unprecedented response to BCS’s interest in bringing together multiple aspects of the student experience. The new building, named Mitchell Family House, faces the existing campus while establishing a close connection to the surrounding forest and nearby river.
▼大楼外观,朝向现有的校园环境,exterior view of the building thatfaces the existing campus©Maxime Brouillet
功能 | Program
该大楼采用V字造型,由一个中心公共空间和两侧的矩形体量构成。上两层空间种容纳着18间宿舍,每间宿舍可居住两名学生。中心生活区包括一个休息室兼餐厅/厨房空间和一个位于夹层的安静的学习角,与所有房间相连通。两侧矩形体量的尽头各设置着一间两层高的公寓套房,以便为宿管人员和他们的家人提供住处。鉴于宿管人员必须要确保这些少小离家前来求学的学生们的身心健康,因此为他们安排住宿是十分必要的。这两套双层公寓均可通过走廊与学生宿舍直接联系。此外,设计团队还为宿管人员的家人们单独设置了一个大楼的出入口,以便将他们的流线与学生们分隔开来。
实际上,对于这种教学空间与居住空间相融、学生与教职人员混住的建筑来说,合理规划交通流线是十分必要的,因为必须要在保证学生的隐私和安全的前提下,满足偶尔出现的访客对功能空间的需求。最终,入口空间被分成了两个相互独立的区域,一个通向私人的居住空间,另一个则通向公共区域。
▼大楼外观,采用V字造型,由一个中心公共空间和两侧的矩形体量构成,exterior view of the building, the V-shaped residence is organized in two wings hinging on a common central core ©Maxime Brouillet
The V-shaped residence is organized in two wings hinging on a common central core. There are 18 rooms, each shared by two students, on the upper two floors. All rooms are connected to central living spaces, which include a lounge and dining/kitchen area as well as a quieter study corner on a mezzanine. Each wing ends in a two-storey apartment occupied by “house parents” and their respective families. Their main role is to ensure the well-being of a group of teens away from their family environment. Each of the two apartments communicates directly with the corridors leading to the residents’ rooms. Families access these apartments from a separate entrance away from the students’ entrance.
The carefully planned circulation was key to the implementation of the hybrid concept. The main challenge was to ensure the privacy and security of the young residents while greeting occasional visitors warmly. The entrance area provides two separate access points, one leading to the private residential wings and one to the public common areas.
▼中心生活区中的休息室兼餐厅/厨房空间,the lounge and dining/kitchen area in the central living spaces © Maxime Brouillet
▼餐厅/厨房空间局部,partial interior view of the dining/kitchen area©Maxime Brouillet
▼休息室兼餐厅/厨房空间,享有绝佳的自然景观视野,thelounge and dining/kitchen area with a good scenery view©Adrien Williams
▼宿舍部分的走廊及其共享阅读空间,the corridor of the residence and its communal reading space©Adrien Williams
▼宿舍部分的社交空间,设有高侧窗采光,the social area of the residence with high side windows for the natural light©Adrien Williams
▼楼梯空间,the staircase©Adrien Williams
大楼的底层主要用于各种学术活动,容纳着各种多功能空间,其中还包括了一个供驻校学者使用的工作室兼办公室。首层可通向室外的广场。该广场不仅为学校师生提供了一个可以沉浸在自然环境中的场所,还为他们创造了一个可以举办小型活动的空间。夜幕降临的时候,公共区域的中心体量就仿佛一个巨型的灯笼,照亮了外部环境。
On the lowest level, dedicated to academic activities, one finds various multi-purpose spaces including a studio/office for a scholar-in-residence. The entire floor opens up to an outdoor agora connecting students and staff with the natural beauty that surrounds the building. Small-group events can also take place in this unique environment. Resembling a giant lantern, the common area’s central volume illuminates the exterior space at night.
▼大楼底层空间夜景,可通向室外广场,夜幕降临时公共区域就像是一个巨型的灯笼照亮了外部环境,exterior view of thelowest level that opens up to an outdoor agora,resembling a giant lantern, the common area’s central volume illuminates the exterior space at night©Adrien Williams
材料 | Materials
本项目致力于在展现自身特性的同时,与校园中现有建筑的风格、规模和材料色调保持一致。最终,设计团队选择砖作为立面的材料,一方面确保了建筑环境的连续性,另一方面也呼应了校园周边Lennoxville小镇悠久的制砖历史。室内空间采用木制饰面,为两个入口区域、楼梯间和社交空间等平添了些许暖意。
The mandate required that the building reflect its time yet be evocative of the existing campus’ architectural vocabulary, its scale, and its material palette. The architects opted for brick on all façades in a spirit of continuity, but also to celebrate the long brick-making tradition of the nearby town of Lennoxville. Wood was used on the interior to add warmth to both the public and private entrances, the stair volumes, and the social nodes.
▼大楼夜景,选择砖作为立面的材料,night view of the buildingwithbrick on all façades©Adrien Williams
用雕塑质感的预制混凝土来代替校园现有建筑中所使用的石材,以便营造出一种现代的建筑氛围。主入口区域设置着一系列由混凝土打造而成的鳍状墙面板,限定出不同的入口空间:非本楼住户的来访者会被引至朝向校园的公共出入口,而通向居住空间的入口在设计上则更为私密。
▼主入口及其预制混凝土墙板和玻璃幕墙细节,main entrance – details of the prefabricated concrete elements and the curtain wall©ARCHITEM Wolff Shapiro Kuskowski architects
The stone used on the campus heritage buildings was substituted by sculptural pre-cast concrete to give the new residence a contemporary signature. At the main entrance area, individually designed concrete fins signal the presence of the access points. Non-residents are directed towards the more public entrance, which fans out in the direction of the campus. The private entrance to the residential wings is treated in a more intimate way.
▼主入口夜景,设置着一系列由混凝土打造而成的鳍状墙面板,night view of the main entrance area with concrete fins © Maxime Brouillet
建筑的后侧设置着一系列雕塑般的混凝土元素,以便强调周边的森林和河流。混凝土片墙不仅突出了连接着首层与底层学生休息区的楼梯空间,更如同屏障一般过滤着从早晨到下午的强烈阳光,创造出迷人的光影效果。总而言之,本项目从传统中发掘灵感,却向人们展现出一幅现代的建筑画卷。
At the back of the building, sculptural concrete elements are introduced to create a strong gesture in the direction of the forest and the river. The concrete blades accentuate the presence of the stairs leading down from the student lounge area while acting as a device to filter the strong morning and afternoon light. The source of inspiration is traditional but the image is resolutely contemporary.
▼大楼后立面外观局部,设置着一系列雕塑般的混凝土元素,partial back elevation of the building withsculptural concrete elements©Adrien Williams
▼混凝土片墙细节,details of the concrete blades © Maxime Brouillet
建筑的可持续性 | Sustainability Issues
设计团队致力于最大限度地降低本项目的碳排放量,因此在本项目中使用了高效的机械系统、三层玻璃窗和保温隔热性能良好的预制墙板等。居住空间均设有中央地暖系统。同时为了满足大楼在供暖和制冷方面的需求,项目团队还在基地上开挖了四口井。此外,大楼还引入了热回收系统。冬季来临的时候,这个热回收系统可以首先对即将进入室内的新鲜空气进行预加热处理;随后这部分空气再被地热水引至空气热泵处,最终升至特定的温度。
▼学生公共空间立面及其预制混凝土墙板和玻璃幕墙细节,facade of student common area – details of the prefabricated concrete elements and the curtain wall ©ARCHITEM Wolff Shapiro Kuskowski architects
The architects’ intention was to reduce the building’s carbon footprint to a minimum. Highly efficient mechanical systems and triple glazed windows were among the means used as well as prefabricated wall panels insulated from the outside. The residence was connected to the campus’ central geothermal system. Four new wells were drilled on site to respond to the building’s heating and cooling requirements. In addition, a heat recovery system was introduced to pre-heat incoming fresh air during the winter. This air is subsequently brought to required temperatures in part by geothermal water to air heat pumps.
外立面细节,facade details©Maxime Brouillet
景观设计 | Landscaping
考虑到现场的状况,尤其是建筑的陡峭斜屋顶,设计团队特别注意了基地的水体管理。当雨水落到地面上的时候,它们会被地沟引向两个储水池,以免过量的雨水对周边的天然林地造成破坏。地表的径流也直接流向储水池,从而保护了河岸空间免受侵蚀。
大楼建成后,人们立即对基地进行了自然恢复。景观设计师在场地中重新种植了一系列本地树木、蕨类植物和灌木等,以便与周边的自然环境融为一体。同时根据当地的天空保护法,在基地上设置系缆柱,以提供低亮度的室外照明。此外,为了尽可能地保护周围的自然环境,本项目还将机动车辆的通行限制在了最小范围内。
Particular attention was paid to water management on the site, especially given the building’s steep roof. As it reaches the ground, rainwater is channeled towards two retention basins to prevent water from reaching the natural woodland areas. Surface runoffs are also directed towards the basins in order to protect the riverbank from erosion.
The site’s “renaturalisation” process was initiated as soon as the building was completed. The landscape architects reintroduced native trees, ferns, and shrubs on the grounds in order to blend in the natural surroundings. Bollards were installed throughout providing low lighting in accordance with local sky protection bylaws. Vehicular traffic is kept to a minimum on the site for better enjoyment of the surrounding nature.
▼大楼外观局部,恢复了基地的自然景观,partial exterior view of the building with thesite’s “renaturalisation”©Maxime Brouillet
▼项目区位图,the context©ARCHITEM Wolff Shapiro Kuskowski architects
▼校园总平面图,campus plan©ARCHITEM Wolff Shapiro Kuskowski architects
▼首层平面图,ground floor plan©ARCHITEM Wolff Shapiro Kuskowski architects
▼上层平面图,second floor plan©ARCHITEM Wolff Shapiro Kuskowski architects
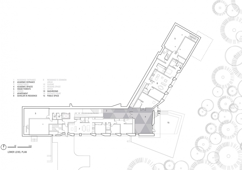
▼下层平面图,lower floor plan©ARCHITEM Wolff Shapiro Kuskowski architects
▼主入口立面图,main entrance elevation©ARCHITEM Wolff Shapiro Kuskowski architects
沿河立面图,riverside elevation©ARCHITEM Wolff Shapiro Kuskowski architects
▼南立面图,south elevation©ARCHITEM Wolff Shapiro Kuskowski architects
▼横向剖面图,transverse section©ARCHITEM Wolff Shapiro Kuskowski architects
▼纵向剖面图,longitudinal section©ARCHITEM Wolff Shapiro Kuskowski architects
Official name: Mitchell Family House
Location: Sherbrooke, Québec
Client: Bishop’s College School
Architects/designers: ARCHITEM Wolff Shapiro Kuskowski architects
Design Team:Andrea Wolff, Partner, MOAQ; Elizabeth Shapiro, Partner, MOAQ; Magda Kuskowski, Partner, MOAQ; Mira Katnick, Partner, MOAQ; Johnny Salman, Associate, MOAQ; Katrina Novak, Associate, MOAQ; Kristian Morse, Intern; Harriet Strachan, Intern; Jose Orue-Bonneville, Technician; Alexey Kovyazin, Technician
General Contractor: Gératek Construction
Landscape Architects: Stuart Webster Design
Structural Engineers: Exp.
Mechanical and Electrical Engineers: FNX INNOV
Fire Protection: GicloCept inc.
Photographers: Maxime Brouillet; Adrien Williams
Area: 2415 m2(26 000 ft2)Cost: Undisclosed
Completion Date: Fall 2019
客服
消息
收藏
下载
最近






























