查看完整案例


收藏

下载
项目背景
Background
项目场地位于北京隆福寺街钱粮胡同,依傍于景山、北海、中国美术馆、人艺剧场等城市地标。隆福寺始建于明代,是一片汇集了商业气息和艺术活动的繁华区域,直至1993年经历了一场火灾事故。在那之后,北京一些创新商业文化地块得到开发,如三里屯、798等等,这导致隆福寺地区的经济逐渐衰退,慢慢淡出了北京人的记忆。作为隆福寺地区振兴计划中的重要组成部分,木木艺术社区改造项目旨在继承隆福寺地区蕴含的历史传统,并发掘更多机遇与潜力。
▼项目外观,external view of the building ©夏至
The project site is located in Qianliang Hutong, Longfusi Street, an old downtown area within the Second Ring in Beijing, China. It is adjacent to famous urban landmarks in Beijing such as Jingshan Park, Beihai Park, National Art Museum of China, Beijing People’s Art Theatre. Originally built in the Ming Dynasty, Longfu Temple was a prosperous area where commercial atmosphere meets art activities until it experienced a fire accident in 1993. Thereafter, a number of land plots outside the Third Ring Road in Beijing were developed for innovative commerce and culture, such as Sanlitun, 798 Art Zone, etc., which led to the gradual economic recession of Longfu Temple area, a traditional downtown region inside the Second Ring Road. Longfu Temple area, as a result, gradually faded from Beijinger’s memories. As a significant part of the revitalization plan of the Longfu Temple area, M WOODS Art Community Renovation Project aims to inherit the historical and cultural traditions of the area while exploring more opportunities and potentials.
▼项目区位,位于胡同之中,the project is located in Hutong area ©B.L.U.E. Architecture Studio
本次项目的选址建筑原为隆福寺职工食堂,结构简单,内部空间开敞,很适合进行美术馆项目改造。我们以‘将现代元素融入胡同历史城区’为出发点,尝试了兼具本土性和试验性的改造设计。
The site was originally the staff canteen of Longfusi region. The structure of the original building is simple and the internal space is quite open, which is suitable for the renovation of an art museum project. Starting with the idea of blending modern elements into the historical district of Hutong, we tried a renovation design combining both localization and experimentation.
▼项目改造前后对比,contrast before and after renovation ©左:夏至,右:B.L.U.E. Architecture Studio
空间结构
Spatial Structure
建筑整体空间分为四个部分:展览空间、提供休憩和临时活动功能的屋顶露台、一层的咖啡商店和地下一层的Live House。其中展览空间分为地上和地下两个区域,通过面积、高度和地面材质的区分将其分割为几个不同展厅,跨高从2.2m到7m,既有利于展出不同类型和规格的展品,又能为观众带来别样的观展体验。
Our design divides the overall space of the building into four parts: exhibition space, a rooftop terrace that provides rest space and temporary events, a 1st floor coffee shop, and a basement livehouse. The exhibition space is divided into two areas – above and under ground areas. We then divide them into several different galleries based on the differentiation of the area, height, and floor materials. The span height varies from 2.2 meters to 7 meters. These features are beneficial for exhibiting different types of artworks with different specifications. Meanwhile, they can bring people unique visiting experience.
▼入口,entrance ©夏至
▼户外咖啡区,outdoor coffee area ©夏至
▼室内咖啡区,coffee area at the entrance ©夏至
▼休憩空间,rest area ©夏至
▼室内外空间形成视线交流,visual connection between the interior and exterior spaces ©夏至
关于动线
The Circulation
▼连接地面和地下展厅的楼梯,氛围发生了明显改变,staircase connecting F1 and B1 exhibition areas, materials changed to create different atmosphere ©夏至
▼地下楼梯和走道,staircase and corridor in the basement ©夏至
▼地下展厅,保留了原本的粗糙墙面,underground exhibition hall with rough concrete walls remained ©夏至
With the increasingly rapid pace of modern society and the endless stream of calls and messages, the modern cities today are providing less space for us to see and enjoy an artwork in peace in our daily life. Considering that M WOODS Art Community is an art center in the core region of the city, we hope to help switch the mood of the audience through the designed circulation to achieve a better art experience. After getting tickets, the visitors will first get to the basement level through a passage. The area was the civil defense region of the original building featuring narrow corridor and low ceiling. We decide to retain the original rough concrete walls and keep the light and temperature relatively low. Besides, the seven connected rooms with similar size bring the audience a maze-like experience. Due to the thickness of the walls and the floor slab, no phone signal can be received there. After passing by, the visitors will suddenly see the stairs leading to the exhibition space on the 1st floor. The two continuous but distinct environmental experiences create an illusion for people. In addition, the lost of spatial positioning makes people to temporarily forget the impetuousness of the outside world and regain the calmness of mind to enjoy exhibition. The visitors will pass through the gallery on the first floor to the second and third floors. Accordingly, the space and the ceiling height gradually increases; the natural lighting and outside scenes are revealed. Simultaneously, the newly opened small windows and terrace on the stairway walls and at the west-side gallery of the museum are interspersed with the adjoining Hutong living atmosphere of the Beijing’s old city in the process of the visitor’s experience. M WOODS Art Community becomes more characteristic because of the rich, diverse and complete experience the overall space provides.
▼连接二三层空间的楼梯,staircase connecting the second and third floors ©夏至
▼二层通高展厅,two-level exhibition hall on the second floor ©夏至
▼独立展览房间,适应不同展览需求,separated exhibition rooms meet requirements of different exhibitions ©夏至
关于外立面
The Façade
木木艺术社区作为一个公益性质的艺术机构,对这次的改造项目有着较为严格的成本控制,我们没有选用常见的建筑立面材料,而是发掘了一种新的材料——镀锌钢板,打造出褶皱肌理的形式。镀锌钢板拥有较好的耐腐蚀性和独特的表面肌理,平时主要作为围挡、通风管道等使用,成本也因此得到控制。我们最先尝试的机械加工方式很难达到预想中随机褶皱效果,进而决定人工加工。在人工实验的过程中,通过不同厚度的镀锌钢板测试,我们发现太薄的经过弯折很容易出现破损,过厚的又很难以加工,由此决定了0.3mm镀锌钢板。对于镀锌板面质感的选择,考虑到板材加工方式的不同,我们也对比了多家工厂。在建筑施工阶段,为了使整体立面具有节奏性变化,我们首先确定了五种不同程度的折痕来过渡效果,同时设计师配合工人亲自加工板材,最终呈现了一种机械加工无法轻易实现的立面效果。
▼建筑立面,采用镀锌钢板,facade composed of galvanized steel sheet ©夏至
▼立面细部,镀锌钢板呈现出皱褶的肌理,closer view to the facade, galvanized steel sheet with a form of folded texture ©夏至
As an independent, not-for-profit art institution, M WOODS has a strict cost control for the renovation project. Instead of choosing common façade materials, we discover a new material – galvanized steel sheet, and we use it to create a form of folded texture. Galvanized steel has fairly good corrosion resistance and unique surface texture, which is mainly used as enclosures and ventilation ducts. The cost is therefore effectively controlled. The machining technology we first tried was difficult for the material to achieve expected random folded effect, so that we then decided to use the method of handcrafting. During the manual experiment, through testing galvanized steel sheets with different thicknesses, we realized that the too-thin sheets are easily to break after bending, and the too-thick ones are too hard to make by hand. In the end, we choose 0.3mm galvanized steel sheet. In terms of the selection of the texture of galvanized steel, we compared many factories in consideration of the difference among processing methods of the sheet. In the construction phase, in order to make the façade possess a rhythmic change, we first identified five different levels of crease to transition the effect. Meanwhile, the designers cooperated with the workers to process the plate, finally presenting a kind of façade effect that can hardly be achieved by mechanical processing.
▼夜晚灯光下,立面呈现出独特的颜色和光泽,unique color effect created by the facade in the night lights ©夏至
▼材料细部,material details ©夏至
▼立面施工过程,construction process of the facade material ©B.L.U.E. Architecture Studio
城市更新的起点
The Starting Point of Urban Renewal
目前项目周围陆续引入了餐厅、酒吧、咖啡店、共享办公等业态,吸引了更多从各地前来参观娱乐的人群,甚至是长期在此区域工作生活。木木艺术社区的改造不仅逐渐改变了本地人群原本的生活状态,使得北京二环内老城区更富年轻氛围,也再次唤醒了这片有着百年历史地区的文化活力。
At present, restaurants, bars, coffee shops, shared work space and other formats have been introduced around the project site, attracting more people from all over the world to visit, some even start to live and work at this area for a long time. The renewal of the M WOODS Art Community not only gradually transforms the existing state of life of the locals, making the old city inside the Second Ring in Beijing more youthful and vibrant, but also awaken the cultural vitality of the century-old region.
▼总平面图,site plan ©B.L.U.E. Architecture Studio
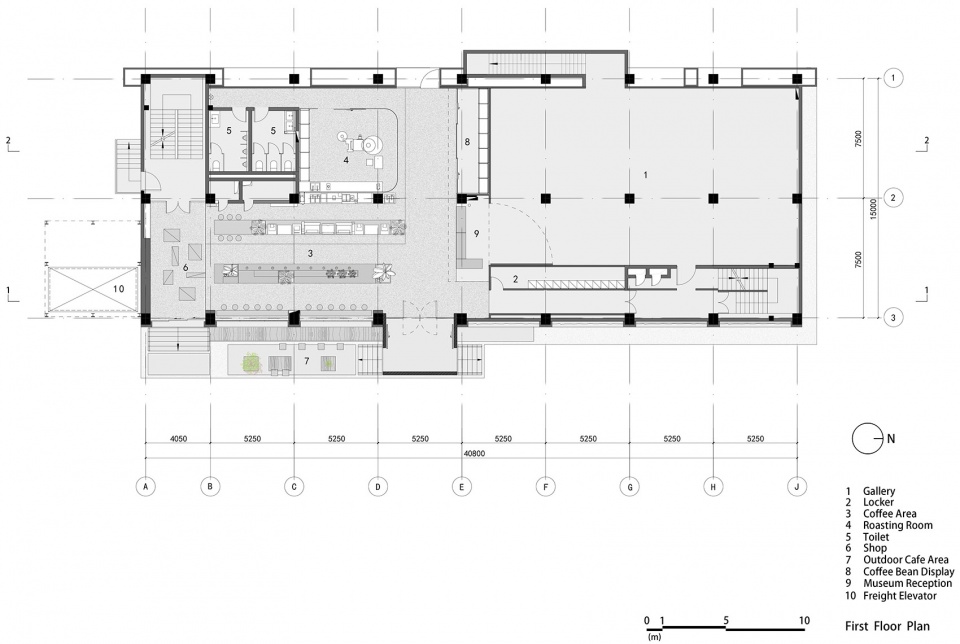
▼一层平面图,first floor plan ©B.L.U.E. Architecture Studio
▼二层平面图,second floor plan ©B.L.U.E. Architecture Studio
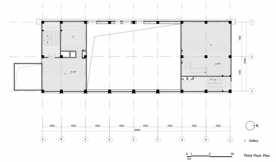
▼三层平面图,third floor plan ©B.L.U.E. Architecture Studio
▼地下一层平面图,basement floor plan ©B.L.U.E. Architecture Studio
▼立面图,elevation ©B.L.U.E. Architecture Studio
▼剖面图,sections ©B.L.U.E. Architecture Studio
项目名称:木木艺术社区改造项目
项目所在地 :北京隆福寺街95号 钱粮胡同38号15号楼
项目类型:建筑改造
建筑师:青山周平,藤井洋子,荣浩翔,陈乃纶,杨雨嘉/ B.L.U.E.建 筑设计事务所
照明设计:B.L.U.E.建筑设计事务所
业主:木木美术馆
规模:地上三层地下一层
用地面积:800平米
总建筑面积:地上2070平米 地下750平米
设计周期:10. 2018 – 01. 2019
施工周期:01. 2019 – 08. 2019
摄影师:夏至
外立面:水泥压力板/褶皱镀锌钢板
内部:美术馆区域|榆木直拼板松木多层板黄铜,水泥涂料水泥自流平松木地板
一层咖啡区域|水洗石橡木板灰砖
live house区域|水磨石水泥涂料
Project Name: M WOODS Art Community Renovation Project
Project Location: Qianliang Hutong 38, Longfusi St 95, Dongcheng District, Beijing, China
Project Type: Architectural Renovation
Client: M WOODS
Size: Three-storey Above Ground / One-storey Below Ground
Site Area: 800 m²
Gross Area: 2070m² (Above Ground) / 750m² (Below Ground)
Design Period: 10.2018 – 01.2019
Construction Period: 01.2019 – 08.2019
Photography Credit: Xia Zhi
客服
消息
收藏
下载
最近















































