查看完整案例


收藏

下载
“一竹养生扬州店”是该品牌在全国的第三家门店,该品牌终端店铺形象系列一直由“有冇设计工作室”来主导。
Bamboo Massage (Yangzhou) is the third store of this brand in China. The brand’s store images have always been designed by NonEssential Design Studio.
▼养生馆外观,the exterior view
作为地理坐标扬州,有冇设计团队 希望在这座城市为 一竹养生 找到一些点到为止的中国味。我们希望用一种尽量现代,且简洁直观的方式,将中国的一些传统元素进行体现。全店包含六间房间、休息室和前台展示区部分。
▼轴测图,the axonometric drawing
In Yangzhou,a city which reveals strong Chinese tone, the design studio wish to find some touch of Chinese charm for Bamboo Massage. For this project, we refresh the traditional way of illustrating Chinese style, and integrate it into a new modern way. The interior contains six rooms、an indoor lounge area and a reception area.
▼前台展示区,采用月门的造型,the reception area with the form of the moon gate
▼休息室,采用清爽的水泥漆面,the indoor lounge with the refreshing cement lacquer surface
项目整体选择了清爽的水泥漆面、木质造型,由藤编元素作为串联,利用结构的阵列,冷静排列出利落的中式气息。避免了繁琐而抢夺重点的设计给客人带来的不必要的压力。
The team selected the refreshing cement lacquer surface and the wooden modelling; the rattan elements were used as a series connection, and the array of structures was used to calmly arrange a neat Chinese atmosphere, without complex functions or tedious design.
▼理疗室,使用清爽的水泥漆面,the treatment room with the refreshing cement lacquer surface
▼理疗室局部,partial view of the treatment
▼理疗室入口,采用木质造型,the entrance of the treatment room with the wooden modelling
藤编元素统一使用油纸材质,使其更柔和、舒适,避免与客人接触时产生的生硬触感。
All the furniture with rattan elements are made of oilpaper, which is softer and more comfortable for people, avoiding the rough tactility and the possible scrape.
▼室内走廊,使用藤编元素作为串联,the interior corridor, using the rattan elements as a series connection
▼室内细节,藤编元素统一使用油纸材质,interior details, rattan elements are made of oilpaper
▼室内细节,interior details
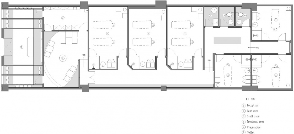
▼平面布置图,the layout plan
▼立面图,the elevations
项目名称:一竹养生 扬州
设计方:有冇设计工作室
项目设计 & 完成年份:2018.11
主创及设计团队:冯艺唯,岳玉杰
项目地址:中国江苏省扬州市润扬北路8号8-102室
建筑面积:230平方米
摄影版权:张念亮
客户:一竹养生
品牌:乐嘉,诺贝尔瓷砖,大自然地板
Project name: Bamboo Massage Vanke Plaza Fuzhou
Design: NonEssential Design Studio
Design year & Completion Year: 2018.06
Leader designer & Team: Yiwei Feng,Yujie Yue
Project location: Room8-102,No8,North Runyang Rd,Yangzhou,China
Gross Built Area (square meters): 230sqm
Photo credits: Raven Zhang
Clients: Bamboo Massage
Brands / Products used in the projrct: Roca, Nabel, Nature
客服
消息
收藏
下载
最近















