查看完整案例


收藏

下载
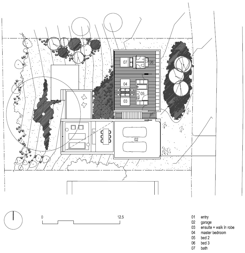
由Studio Four设计的位于墨尔本Berwick的Ridge Road住宅,很难通过周围的植被获得更多的住宅一瞥。前立面仅由黑色的木墙组成,刺穿只是为了表示入口。该基地的特点是一个戏剧性的斜坡和一棵茶树。周围的房屋形成鲜明对比,试图抵消倾斜地形通过创建一个平台层的室外区域坐暴露高地面水平,这个房子的设计采用了温和的策略,与建筑形式洒下斜坡,终止在一系列的甲板。
这种设计策略使工作室将建筑的项目暴露在与景观的不同程度的直接和超越的互动中,同时从下面的高尔夫球场保持一定程度的视觉隐私。从街道上看,房子的规模是不明显的,第二层,较低的层次不明显。业主希望将住宅的公共区域和私人区域分开,因此建筑的形式受到了推动,同时强调了捕捉不同质量的光线、空间的规模和比例。
Interiors:StudioFour
客服
消息
收藏
下载
最近





















