查看完整案例


收藏

下载
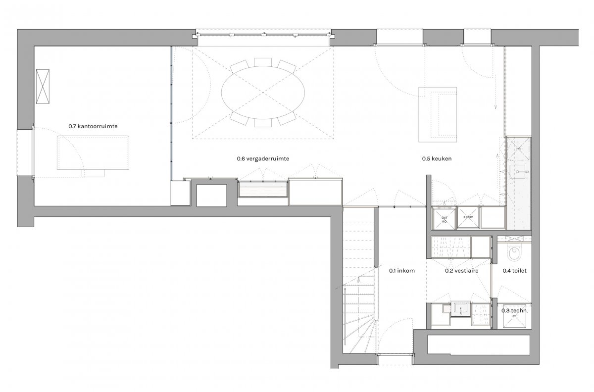
比利时建筑师Arjaan de Feyte为安特卫普附近的一位律师设计了这个折后办公室。该办公室位于名为The Cubes的四个新的混合用途街区之一,该街区占据了最近重建的麦芽酒厂的所在地。
Arjaan de Freyter先前在The Cubes设计了一间公寓,该公寓由暖色调的木制橱柜和黄铜配件所组成。他还负责检修酿酒厂原来的筒仓建筑,并在那里创建了一系列单色生活空间。
这是Deknudt Nelis律师事务所的第三个办公室,另外二个在布鲁塞尔和Courtrai。业主被Arjaan de Feyte办公室的设计所吸引,希望这个办公空间能够与位于附近的de Feyter自己的工作室拥有相似的美感。
Arjaan de Feyter使用了多变的材料及色调,黑铁,深色胡桃木和深绿色大理石的结合唤起了“真实性和诚实”的感觉。
Interiors:ArjaanDeFeyter
客服
消息
收藏
下载
最近






















