查看完整案例


收藏

下载

翻译
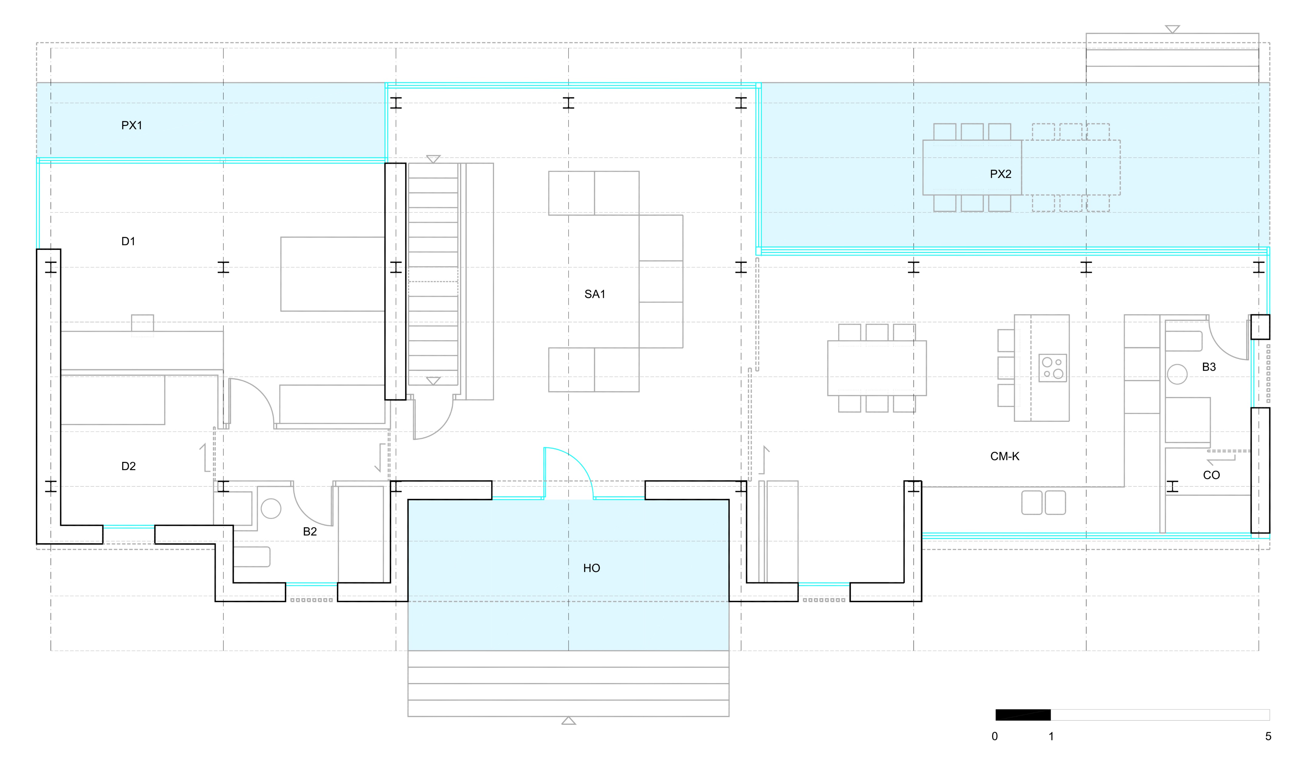
En cuanto a la ubicación de la vivienda en la parcela, se parte de la voluntad de que todos los espacios puedan estar orientados a Sur, para una mayor efectividad en el ahorro energético, esto determinará la posición de la piscina así como la necesidad de una buena iluminación de todos los espacios.
Los promotores parten de la premisa de situar todos los espacios con vistas a la piscina, eso redundará en una pieza muy longitudinal abierta a la parte interior de la parcela.
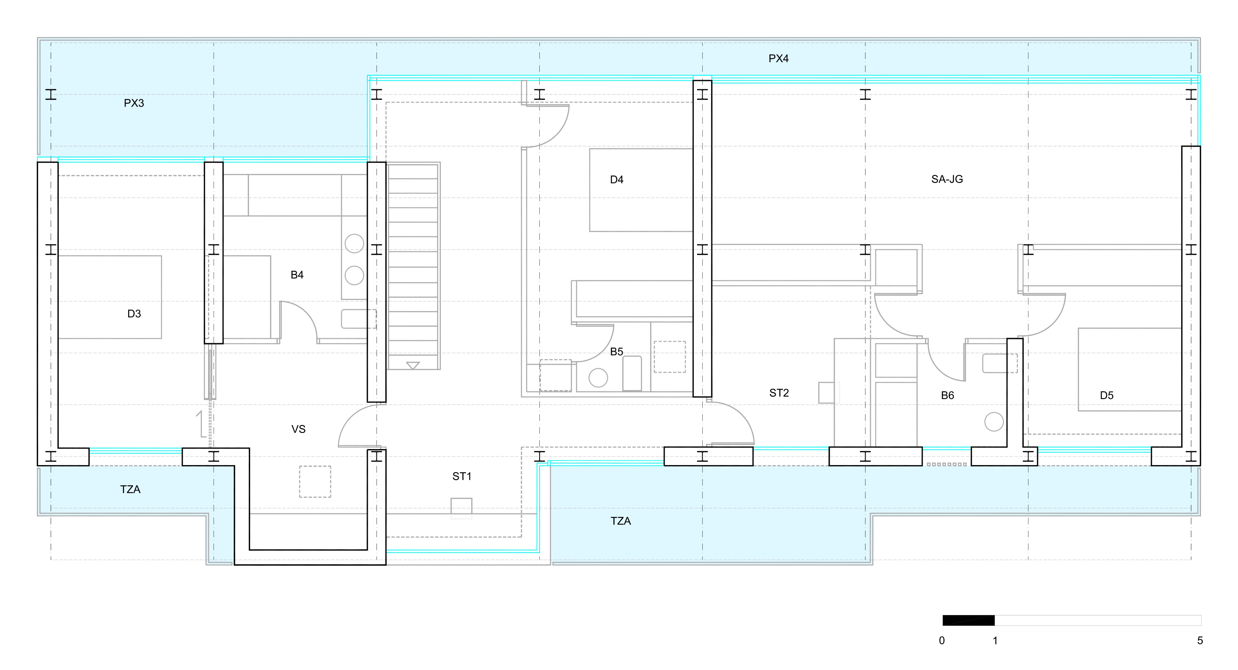
Cada una de las habitaciones cuenta con un espacio cubierto exterior que se plantea como extensión de cada habitación, un espacio protegido del sol a través del forjado de cubierta, así como por celosías deslizantes.
La planta Baja estará ligeramente elevada con respecto el nivel del terreno para favorecer la ventilación, "posándose" sobre el terreno y dejando que éste discurra de manera natural.
La geometría del edificio se organiza a partir de una modulación reticular de 1,00m x 3,15m, que sirve como base para poder distribuir el programa y la estructura.
Volumétricamente, la fachada Norte de las plantas Semisótano y Primera están retranqueadas 85 cm con respecto la planta Baja, generando un volumen "dislocado" cuyo movimiento genera los espacios exteriores de porches y terrazas.
客服
消息
收藏
下载
最近





























