查看完整案例


收藏

下载

翻译
Casa VCS è un progetto relativo alla nuova costruzione di una casa unifamiliare a Modica in provincia di Ragusa, in un sito il cui elevato valore paesaggistico è dovuto ad un costante rapporto con la roccia su cui è fondata non solo la casa ma l’intera città.
La casa, realizzata grazie alla collaborazione tecnica con lo studio di ingegneria SIC, si trova nella campagna modicana in un’area caratterizzata da un lieve declivio che muta improvvisamente in una ripida scarpata rocciosa. Un luogo in cui la vista sembra letteralmente “saltare” nel vuoto della valle per fermarsi sul versante opposto.
Il progetto verte sull’analisi del sito e fa riferimento alle numerose architetture rurali tipiche degli anni ’30 site in zona, realizzate con materiali grezzi e strutture precarie, sorte per ampliare gli stabili inerenti alle attività agricole locali. Nelle campagne dell’altopiano ibleo è infatti solito riscontrare questa tipologia costruttiva caratterizzata da esili profili in metallo che sorreggono grandi capriate e coperture in lamiera, strutture che sia per la loro leggerezza che per la loro trasparenza, intesa come permeabilità alla vista, non gravano, a nostro giudizio, pesantemente sul paesaggio.
Leggerezza e trasparenza sono diventate i princìpi cardine di questo progetto. Attraverso un muro di contenimento in cemento armato si accentua la cuspide formata dal leggero declivio e dalla scarpata, punto in cui la casa risulta galleggiare sul canyon.
Il fabbricato è realizzato con una struttura in acciaio sorretta da dodici piloni che lo innalzano portandolo alla quota della cuspide, dove l’ingresso principale avviene attraverso una passerella in orsogril. La stessa passerella si estende anche sul lato opposto, facendo di casa VCS una “vera casa sospesa” il cui affaccio sulla valle dà la sensazione di fluttuare nel vuoto.
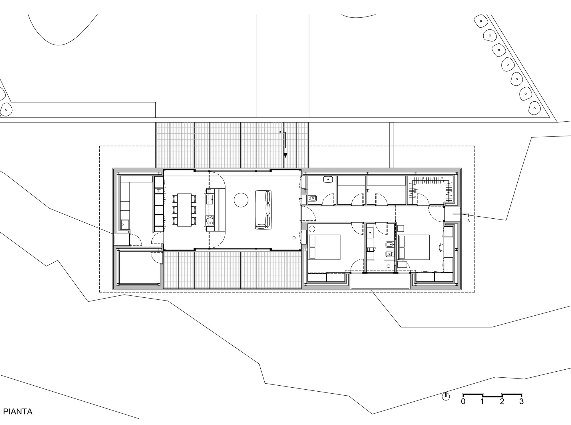
L’edificio è concettualmente formato da due piastre orizzontali e parallele che contengono dei volumi diversi per dimensioni e funzioni.La realizzazione delle capriate in ferro che sorreggono la copertura in lamiera grecata è stata pensata coerentemente alle architetture rurali della tradizione locale, riproponendo gli stessi profili in ferro che venivano utilizzati nelle epoche passate ma rivisitando questa metodologia costruttiva in chiave contemporanea.
Le grandi vetrate consentono alla valle di attraversare l’edificio e giungere alla vista di chi percorre il viale d’ingresso. L’attenzione ed il rispetto del luogo non si limitano solo alla forma dell’edificio, ma a tutti gli accorgimenti progettuali necessari a rendere questa architettura sostenibile.
Il corpo di fabbrica espone i lati lunghi a nord e sud, consentendo un apporto solare estivo e invernale ottimale. Lo studio delle aperture, delle zone ombreggiate, del pacchetto murario e degli infissi ad alta prestazione termica permettono un controllo della radiazione solare in entrata e in uscita. Grazie anche all’apporto di energia elettrica mediante pannelli fotovoltaici posti in copertura la casa è stata classificata NZEB. Il risultato è quindi un’architettura che rispetta il paesaggio non soltanto dal punto di vista compositivo ma anche per quanto riguarda le emissioni di CO2 nell’atmosfera.
Crediti:
GIUSEPPE GURRIERI STUDIO + SIC
Progetto: Giuseppe Gurrieri Studio
Principal Architect: Giuseppe Gurrieri
Collaboratori: Arch. Giulia Filetti, Arch. Valentina Occhipinti
Ingegneria: Studio SIC (Studio ingegneria Cappello)
Progetto del paesaggio: BB Architettura del Paesaggio
Impresa edile: Urano costruzione SRL
Infissi: Corrado Serramenti
Realizzazioni mobili su disegno: IL LEGNO arredamenti
Forniture arredi: Muccio Mobili
Foto: Filippo Poli
客服
消息
收藏
下载
最近


























