查看完整案例

收藏

下载

翻译
Architects:studio nada
Area :285 m²
Year :2022
Photographs :Todor Todorov
Architect And Designer : Antonina Tritakova, Georgi Subev
Client : The Devetaki Plateau Association
City : Karpachevo
Country : Bulgaria
Standing at the very entrance of the village, the old Mill is not only an important landmark but also a meeting point of cultures, nationalities, generations, and ideas. In 2022, it was converted into a cultural center awakening the social and cultural life in the village and the region. The Mill underwent a dramatic transition from an abandoned ruin to a vibrant public space, regained back to the community it belongs.
The old Mill was initially built in the nearby village. Later on, it was moved all the way to Karpachevo and rebuilt to the place it stands now. After it closed down it was abandoned and suffered serious damages. In 2019 the Devetaki Plateau Association decided to bring life back to the Mill.
The main aim of the project was the adaptation and repurposing of the abandoned building by using local natural materials and recycling the available ones. (wooden planks, roof tiles, adobe bricks and plaster, baked bricks, stone, etc.) The essential concept was keeping the raw, rural aesthetics of the original fabric. At the same time integrate the new function in a holistic sensible manner to meet the new needs.
The main design concept for the new intervention was adopting the principle of contrast and balance. Following this idea metal elements painted in white were introduced to the interior as a contradiction to the rustic rough old timber structure. The newly added elements not only enhance the natural look of the old structure but also introduce light to the interior space. A tender metal “lace” was used to frame the banisters and the ascetic furniture.
It offers safety and new functionality at the same time, still allowing the visitor to see the authentic elements behind it. The play between old and new, dark and light, ‘clean’ and ‘dirty’ create the special atmosphere of harmony and balance with respect to the authentic spirit of the place. The overall result – a hybrid space that managed to keep its unique and genuine character, but also satisfy all the contemporary needs of the newly added function.
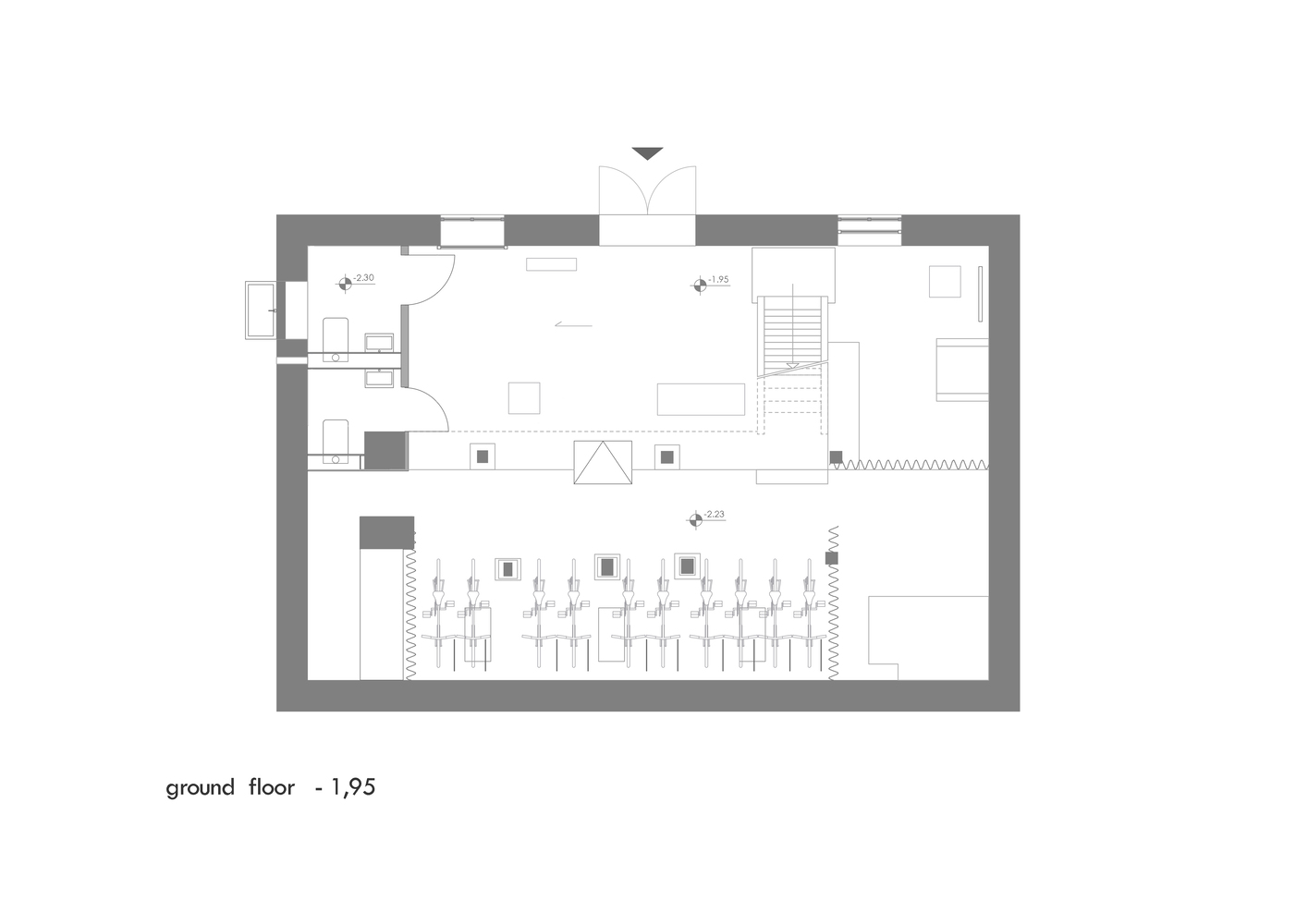
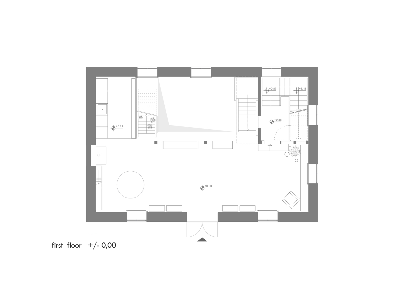
The 3-story timber structure was kept in its original state – undergoing structural reinforcement was needed to provide safety for the visitors. Openings through the floors allow multi-story vertical visual connection and communication. The 1st floor, accessible from the main entrance to the south, consists of 3 zones – information point, kitchenette and communal area – a meeting place for all generations. The 2nd floor acts as a multifunctional space that provides a stage for different kinds of cultural events – training, presentations, workshops, lectures, public discussions, and co-working space. Lavatories for visitors, storage space, and rent-a-bike facilities are positioned on the ground floor. To secure access to the 2nd floor a new staircase and railings were added. The wooden windows were remade in their original layout and doubled on the inside with aluminum double-glazed windows to ensure energy saving.
What was once an abandoned ruin is now returned to the local community adding new meaning to an old landmark.
▼项目更多图片
客服
消息
收藏
下载
最近
































