查看完整案例


收藏

下载

翻译
The client's request was to build a barn-like shelter situated on an arid place in the foothills of the Andes Mountains.
Following this idea, on these mountain trails there are shelters called "pircas", made in stone by the original inhabitants.
Using this antecedent, it was decided to build the remnants of an “ancient” construction that would justify having used this implantation and not another. A stone with iron oxide was chosen, and from that arose a timeless refuge of oxidized corten steel.
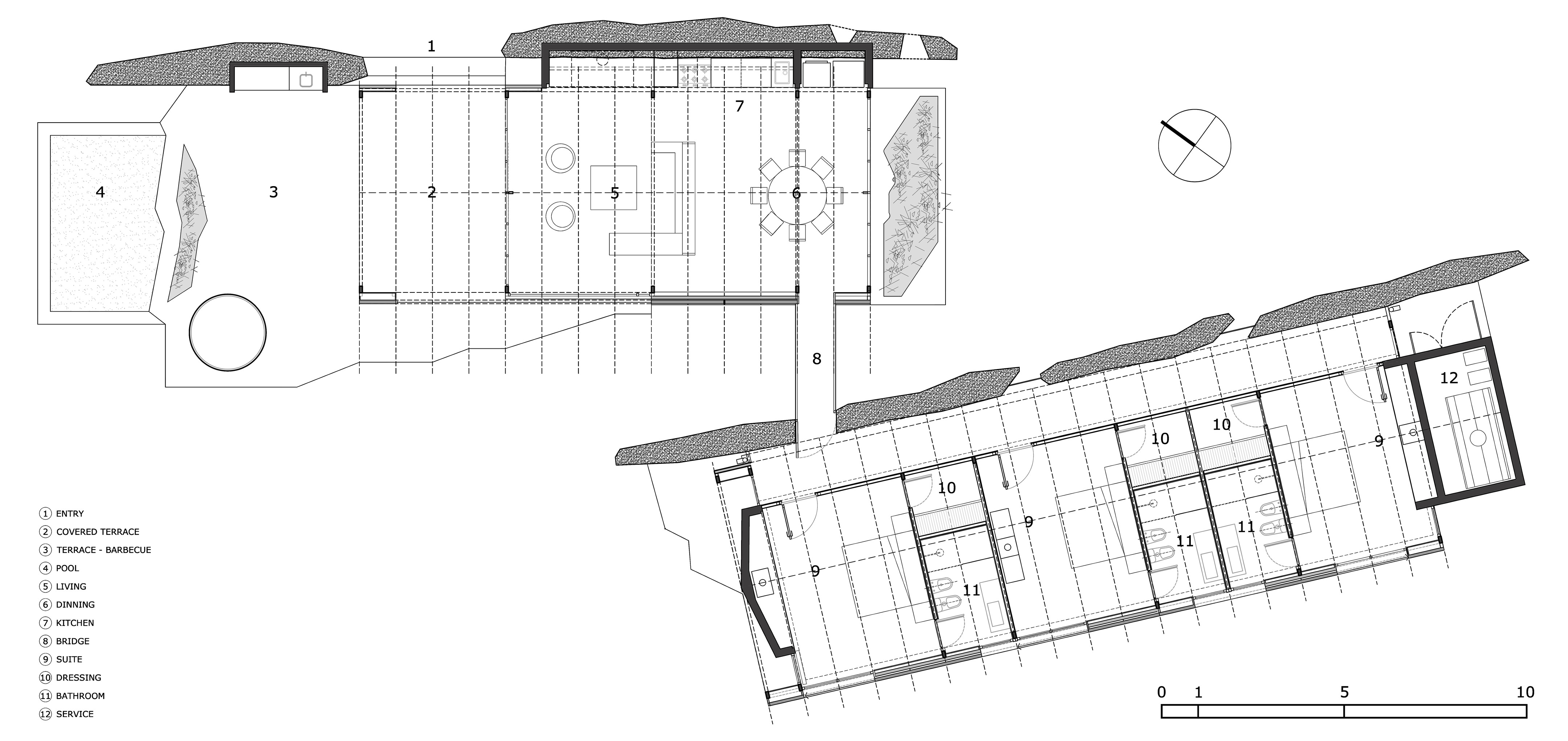
To optimize the remarkable visuals, the four facades were converted into eight. To achieve this, the program was divided into two buildings: one dedicated to social functions and the other one to bedrooms. These volumes are connected by a glass bridge.
Located in a seismic zone, the flexible structural system used is made fully in pre-machined metal steel. The two volumes rest on respective and solid concrete stalls. Closing panels with maximum athermic characteristics cover the entire roof as well as the fixed and sliding walls.
The house is disconnected from all external services and works autonomously. Low consumption, solar panels, treatment and reuse of gray water contribute to its ecological attitude.
El pedido del cliente consistió en hacer un refugio – granero en un árido lugar del pedemonte en la Cordillera de los Andes.
Ocasionalmente en senderos en la montaña se encuentran refugios llamados “pircas”, realizados en piedra por los habitantes originarios.
Usando este antecedente, se decidió construir los remanentes de una “antigua” construcción que justificara haber usado esa implantación y no otra. Fue elegida una piedra con oxido de hierro, para que de ella surgiera un refugio atemporal en acero CorTen oxidado.
Para optimizar las notables visuales, las cuatro fachadas fueron convertidas en ocho. Para lograrlo, el programa se dividió en dos edificios: uno dedicado a las funciones sociales y el otro a los dormitorios. Un puente de vidrio los conecta.
Localizado en zona sísmica, el sistema estructural flexible utilizado es totalmente metálico y pre-mecanizado. Los dos volúmenes descansan sobre respectivas y solidas plateas de hormigón. Paneles de cerramiento de características atérmicas máximas cubren la totalidad del techo como asimismo los paramentos fijos y deslizables.
Esta vivienda totalmente desconectada de servicios externos funciona de forma autónoma. Bajos consumos, paneles solares, tratamiento y reutilización de aguas grises colaboran en su actitud ecológica.
Cada proyecto es un hecho irrepetible. El caso de una casa es aun mas particular y complejo.
El cliente y destinatario final elige especialmente un arquitecto para que se adecue a sus expectativas personales.
Para la mayoría construirse su casa forma parte de los hitos de una vida. Este hecho se convierte en una gran responsabilidad profesional. Además, es una temática que colabora a diversificar las propuestas arquitectónicas al sumar el ingrediente del comitente.
En su origen un proyecto es como una ecuación donde están presentes los elementos que definirán el edificio. Cuanto mas compleja, mas guiara a un resultado determinado. Sus elementos serán el sitio, el contexto (para adecuarse o negarlo), clima, presupuesto, tiempos y fundamentalmente el conocimiento del comitente y su programa particular. Se deberá escucharlo con detenimiento porque siempre volverá sobre sus expectativas originales.
Buscar una arquitectura trascendente en una escala y presupuesto acotado es aun mas difícil.
Compartir con el cliente el resultado final y cómo aprende a usar su casa es una situación donde la función del arquitecto se vive plenamente.
客服
消息
收藏
下载
最近







































