查看完整案例

收藏

下载

翻译
L’edificio per uffici SNBR è stato progettato per l’omonima società francese di Saint-Savine - Troyes, specializzata nel restauro e nella realizzazione di manufatti in pietra attraverso lavorazione con macchine a controllo numerico. La richiesta del committente era di realizzare un edificio dal carattere rappresentativo ed eloquente dell’identità della società, che lavora la pietra, materiale antichissimo con tecniche fortemente innovative. Dal rapporto, quindi, tra tradizione ed innovazione è stata condivisa l’idea di costruire una struttura in pietra portante concepita e realizzata secondo le più moderne tecnologie di lavorazione del materiale.
La volontà di realizzare la forma-struttura dell’arco come solido ponte tra passato e futuro rappresentava una sfida molto complessa, ovvero intraprendere un confronto diretto con l’architettura del passato provando a dire nel frattempo qualcosa di nuovo.
L’edificio è concepito come una grande copertura, sotto cui organizzare liberamente il programma funzionale, in sintonia con il genius loci della campagna francese disseminata di tetti a doppia falda inclinata, utilizzando la logica degli archi diaframma disposti su piani paralleli.
L’idea di realizzare un tetto coincidente con lo spazio interno dell’edificio è archetipo dell’architettura, legata al concetto di appropriazione e protezione dello spazio dell’uomo dall’ambiente esterno, in sostanza un gesto unico per creare uno spazio architettonico.
A sostenere la grande copertura sono presenti quattro archi in pietra, con luce pari a 16 metri ed un altezza in chiave di 6 metri (intradosso), quindi dalle proporzioni molto ribassate. Gli archi si impostano su otto piedritti in cemento armato che li sollevano dal piano di calpestio di circa 1,8 metri, rendendo così fruibile l’area sottostante.
Lo sviluppo della forma architettonica dell’arco si è articolata intorno all’ottimizzazione della forma strutturale, al fine di ridurre al minimo gli spessori della pietra per motivi di carattere economico ma soprattutto di carattere estetico, legato ad un concetto di sperimentazione estrema delle potenzialità del materiale lapideo.
La curva parabolica d’intradosso “segue” la curva delle pressioni a cui l’arco è soggetto, le linee rette superiori a doppia pendenza sono pensate per sostenere direttamente la struttura in legno del tetto ed infine la modellazione delle articolazioni dei giunti curvilinei aumenta la superficie di contatto tra i conci e di conseguenza il loro attrito.
L’arco si ripete parallelo a se stesso con una distanza di 4,5 metri costituendo tre campate interne fino a coprire una superficie di circa 300 mq.
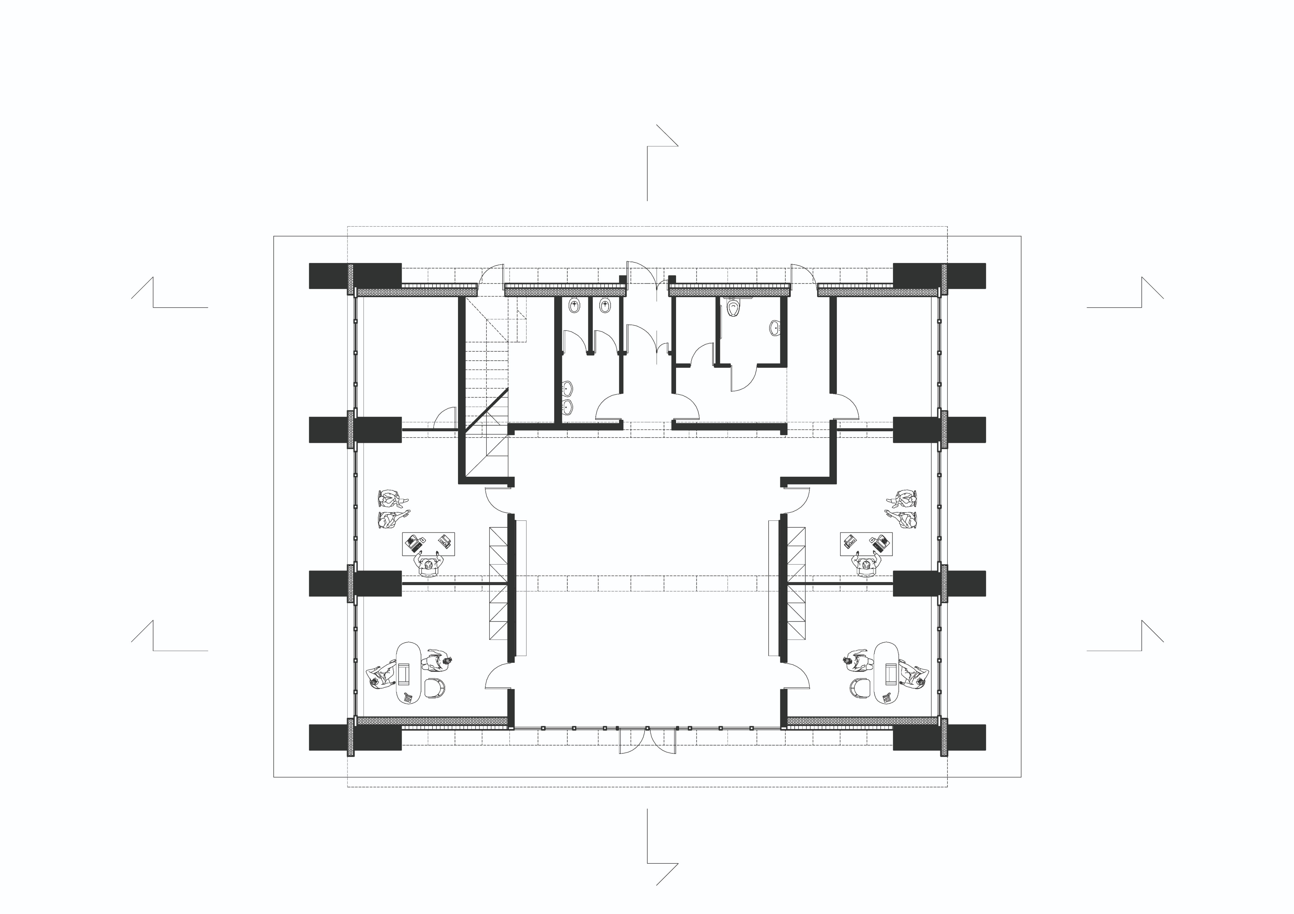
La distribuzione funzionale dell’interno è organizzata intorno al grande vano centrale a tutt’altezza delle dimensioni di 11 x 8 metri destinato a spazio polifunzionale in cui organizzare mostre, esposizioni ed eventi di ricerca dell’azienda. Questo grande spazio è illuminato dalla vetrata posta sul lato sud, concepita come uno squarcio a tutt’altezza. Lungo i lati est ed ovest sono presenti sei uffici con accesso direttamente dal vano centrale, l’organizzazione delle tramezzature degli uffici segue la campata degli archi, mentre sul lato nord è presente un area funzionale dedicata ai servizi (bagni, deposito, archivio) in cui si trova una scala da cui si accede al mezzanino superiore destinato a sala riunioni. Tra lo spazio polifunzionale centrale e lo spazio dei servizi è realizzata una parete diaframmata in pietra, che funge da filtro visivo tra i due spazi.
Gli aspetti legati ai temi della sostenibilità ambientale dell’edificio hanno rivestito sin dal principio un aspetto determinante, la volontà era di realizzare un edificio HQE (Haute Qualité Environmentale) secondo gli standard energetici francesi, utilizzando prevalentemente materiali naturali in particolare pietra e legno.
客服
消息
收藏
下载
最近


















