查看完整案例


收藏

下载

翻译
Contesto
L'area di progetto si colloca in prossimità della strada statale all'ingresso della città per chi proviene da nord. Estensione del vicino centro storico si caratterizza per la presenza di un'edilizia residenziale che si è sviluppata prevalentemente negli anni ottanta e che ha modificato l'aspetto di un’area produttiva sviluppatasi qui dal dopoguerra. L'edificio su cui si è intervenuti attraverso un piccolo ampliamento obbedisce a questa regola e l'attività artigianale in esso contenuto è stata sostituita, attraverso piccole modifiche nel tempo, da un punto di riferimento per la commercializzazione e la promozione di prodotti di arredo per l'edilizia di interni. La trasformazione urbana lentamente messa in atto attraverso corretti strumenti di pianificazione hanno prodotto nel tempo un rinnovamento urbano di cui il piccolo ampliamento qui presentato è l'espressione ultima.
Compito
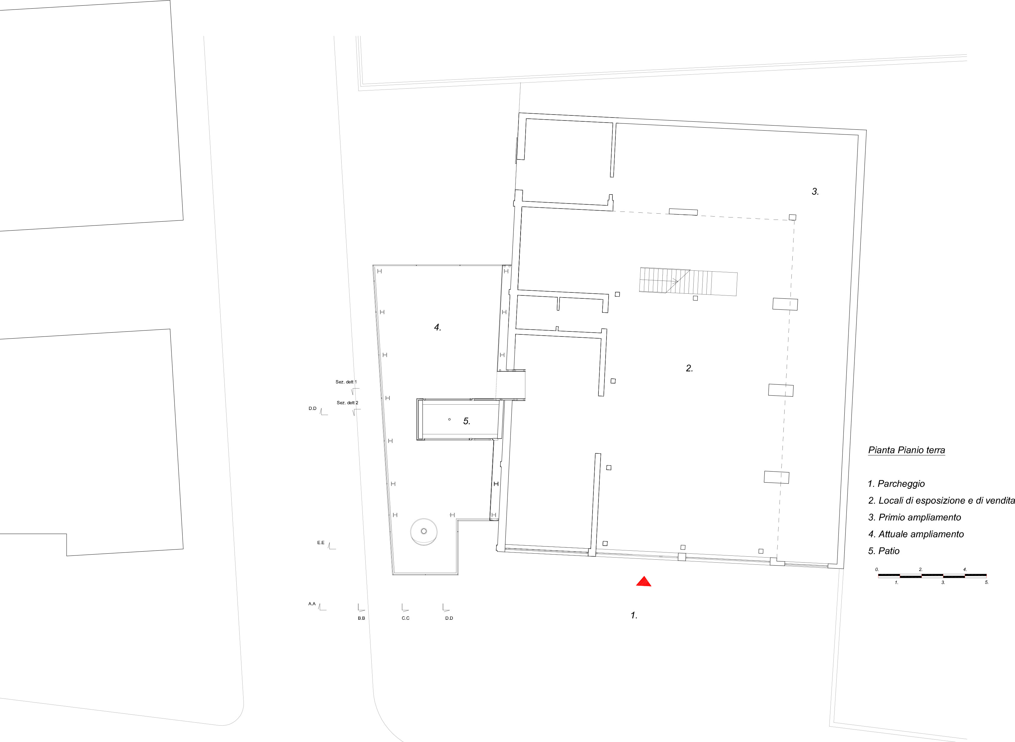
La particella interessata dall'intervento è occupata da un piccolo capannone costruito negli anni settanta allo scopo di realizzare uno spazio di deposito di materiai edili. Un primo intervento edilizio lo trasformò in spazio commerciale per la vendita di prodotti di complemento per l’arredo bagno. Un secondo intervento amplierà il volume caratterizzato da una grande volta di copertura replicandone il sistema costruttivo e ponendosi, rispetto ad esso, in un atteggiamento di mimesi.
La necessità di avere uno spazio per la vendita di articoli per l'arredo della casa, in particolare stufe a legna, suggerisce ai gestori una nuova estensione da realizzare sul lato del capannone occupato da un parcheggio di relazione.
La richiesta dei committenti è di pensare a un nuovo volume entro il quale realizzare uno spazio prevalentemente di riunione, da dedicare maggiormente all’ informazione che alla vendita. Gli arredi presenti nello spazio, comprese una grande stufa a legna, pur facendo parte dell’esposizione, possono essere utilizzati dai clienti facendo in mondo che l’apparentemente mondo esclusivo del design diventi evocativo di uno spazio “domestico”. Si vuole così realizzare uno spazio che si differenzi fortemente da quello cui l'ampliamento fa riferimento. Uno spazio entro il quale prevalga l'aspetto architettonico arricchito da un design semplice e funzionale dal carattere estremamente informale.
Progetto
Il nuovo volume edilizio, spazio dedicato all' esposizione di stufe a legna e alla loro commercializzazione, si presenta come organismo architettonico compatto, eccezione fatta per un piccolo avancorpo che si protrae verso lo spazio di arrivo, determinando, tra i due edifici, una sorta di pausa.
Il volume dell'ampliamento si libra da terra per una dislivello equivalente alla pendenza che dalla facciata preesistente arriva alla strada. L'avancorpo che dal volume si aggetta sullo spazio di arrivo del parcheggio e la sua sospensione dal suolo sono il modo in cui l'ampliamento si relaziona al capannone, definendo formalmente un netto distacco da esso e dalla lunga e alta vetrina che ne caratterizza il volume. Si definisce così un contrappunto tra la vecchia vetrina che conserva con la sua trasparenza la funzione di accesso al negozio e il nuovo volume opaco contenitore di elementi di arredo. La pianta dell'ampliamento semplice e compatta è “rotta” da un piccolo spazio aperto al cielo al quale si ha accesso con lo sguardo attraverso due grandi finestre tra loro opposte. Lo spazio introverso definisce il luogo per un piccolo giardino interno definito dalla presenza di una betulla e da piante rampicanti che avvolgono le ruvide superfici di cemento armato. Il giardino interno contenuto nello spazio di ampliamento divide due ambiti spaziali che si sono, con l'allestimento dell'arredo, specializzati a svolgere funzioni diverse tra esse complementari, l'una di accoglienza e di riunione, l'altra prettamente di esposizione.
Lo spazio è allestito con pochissimi arredi tra i quali una sola stufa nella quale si può accendere il fuoco. La stufa è visibile all’esterno dalle superfici di vetro dell'avancorpo e dal suo alto camino che svetta sopra la copertura piana della costruzione. Intorno alla stufa rotonda un luogo allestito con poltrone di design storico in vendita ma usufruibili dai visitatori definiscono un piccolo luogo di riunione particolarmente suggestivo quando d’inverno la stufa è accesa. Lo spazio del camino aperto sull' esterno e il giardino interno definiscono un luogo “emozionale” in cui l'oggetto della vendita è contenuto non in una vetrina ma in uno spazio in cui il confine tra esterno e interno è estremamente labile.
Le superfici di perimetro verso via Paluzza e via Somma sono tamponamenti realizzati in vetro trasparente privi di telaio ma giuntati l'uno all'altro facendo ricorso a sottili giunti in silicone strutturale. L'assenza di telai rende il volume compatto e semplice come piccola scultura di vetro. Nei piani di vetro in alcune ore del giorno si riflette il paesaggio urbano, in altri è teca luminosa che svela il suo interno. Gli interni sono molto luminosi grazie alla facciata continua di vetro che avvolge l'intero spazio.
Lo spazio introverso della teca al centro della pianta, allestito al suo interno con essenze arboree rampicanti, sarà sempre luogo ombreggiato e fresco veicolo di luce e aria pulita per garantire in parte un naturale ricambio d'aria degli spazi di lavoro.
Sistema costruttivo
L'ampliamento è realizzato ricorrendo a una struttura leggera di telai in metallo appoggiati su un “podio-fondazione” in cemento armato che si elevano fino alla copertura realizzata anche essa in cemento armato. L’elemento controventante del sistema di telai è rappresentato dai setti in cemento armato che definiscono il giardino interno.
客服
消息
收藏
下载
最近






























