查看完整案例

收藏

下载

翻译
Merck’s site in Darmstadt is progressively remodelled from a production works into a technology and science campus. The heart of this transformation is the Innovation Center with a new world of work. A dynamic spatial continuum singularises the individual workplaces whilst connecting them to form a spatial network.
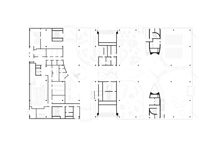
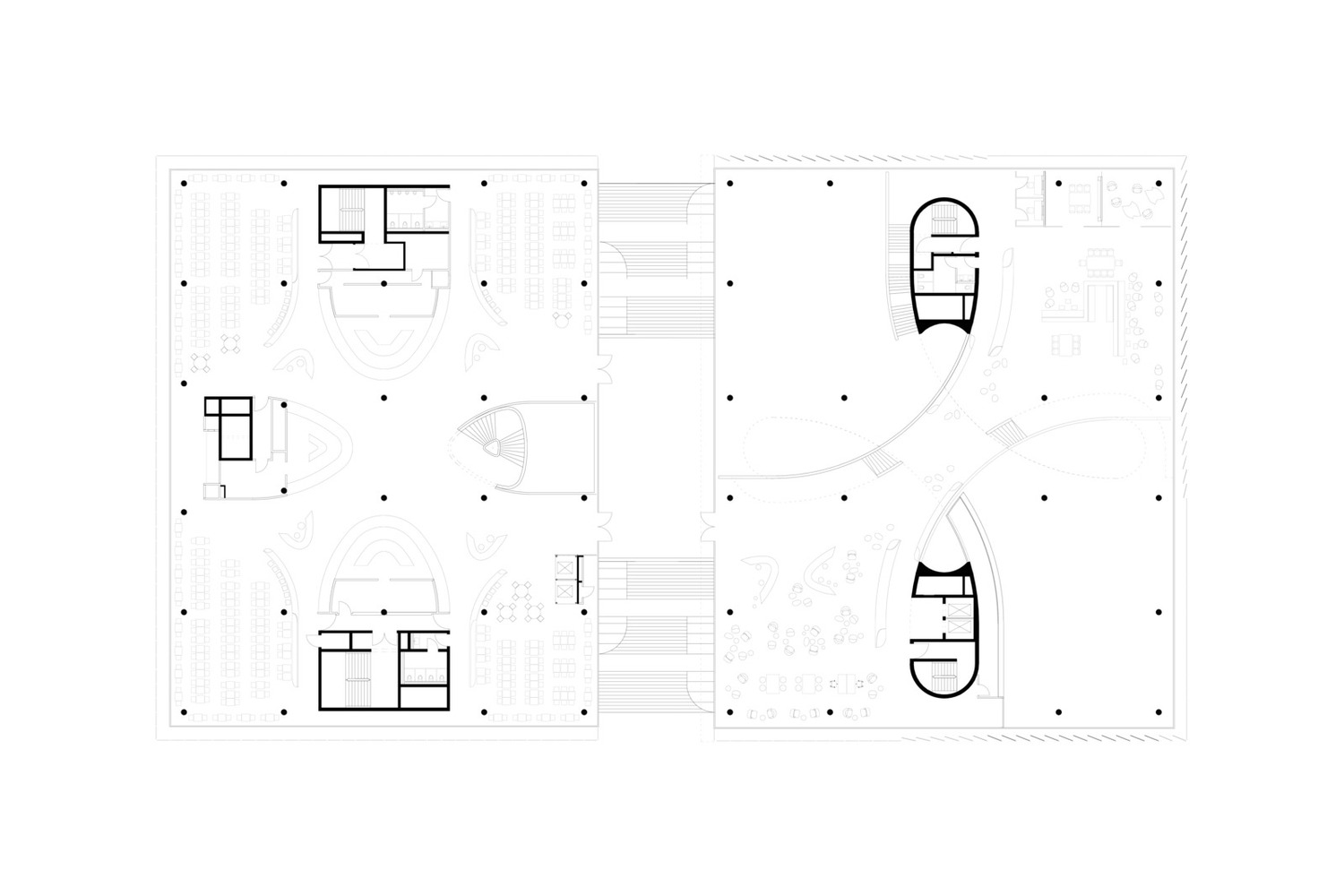
The building is set back facing Frankfurter Straße, thus generating the space for a public square – Emanuel Merck Platz. The orthogonal shape of the architectural volume is derived from the context of the neighbouring buildings, simultaneously acting as a contrast to the animation of the building’s inner workings. The interior is characterised by the unfolding of a continuously flowing spatial structure. Bridge-like connections diagonally span the space between the oval cores, linking the individual workspaces with each other. Steps, ramps and floor areas spiral upwards. The routes between one work group and another, from one level to the next, are accomplished almost imperceptibly and effortlessly.
The inter-crossing bridges, which densify the centre point of the building and diminish the spatial height of 6 metres to 3 metres, appear to float. The strain of the loads is absorbed by supports along the facade and a mere four interior columns. Due to their highly polished stainless steel coverings, the columns have a practically dematerialized presence.
Every level has two work areas, positioned diagonally vis-à-vis one another. Each workspace is designed to provide for a project group consisting of external and internal staff, cooperating together on innovations either on a temporary or a project basis. Concentration and meeting rooms are arranged along the facade and on the mezzanines. The ground floor contains a café, a lounge and an auditorium; the first upper storey a library and open workstations; the top floor accommodates a workshop.
By using a reinforced concrete composite construction with spans of up to 20 metres, the work areas can be laid out column-free. The facades are set behind open external slats that run at varying angels, in turn giving the exterior a dynamic appearance and making the double-storey character of the interior spaces legible from the outside. The all-round storey-high transparent facades and the highly sound-absorbent ceilings provide ideal working conditions in terms of daylight and acoustics. In addition, the Innovation Center features a whole series of new Merck products and technologies in the lighting, the finishings and the skylight. The latest OLED technology was applied in the Light Cloud art installation, as well as the Media Wall monitor installation.
The Innovation Center is connected to a staff restaurant via an open stairway, the restaurant adopting the curved and flowing architectural vocabulary of the Innovation Center. The staff canteen consists of a food court on the ground floor with the restaurant facilities on the two upper floors. Spiral staircases, oval counters, the condensed space in the centre of the building and the amplified, open space at the corners all echo the Innovation Center.
客服
消息
收藏
下载
最近




































