查看完整案例


收藏

下载
“市中心的社区记忆”
Memory
景田是许多老深圳回忆的背景板,也是离中心区最近的老社区。一路之隔,却有着与CBD完全不同的慢生活节奏和邻里气氛我们兜兜转转花费了一年的时间协同客户选址,慕然回首,就在客户小时候常与同学放学一路溜达回家的新闻路上。
News Road is the memory of old Shenzhen and the closest community to downtown. Across the road, it has a different life rhythm and neighborhood from the downtown. We spent one year cooperating with Party A and selected the site on News Road. News Road is full of Party A’s memory when he was young.
▼项目外观 external view of the cafe ©Guo
20㎡的社区店
20㎡ community store
关于如何定义仅20㎡的咖啡空间,我们与客户有过热切的讨论,最终客户依然坚持在“舒服的社区咖啡”这一立意点——社区关怀是ANNND咖啡一直以来的初衷。这意味着我们不得不放弃更高效和更出彩的“窗口式咖啡”,转而去研究更紧张的布局,极限的在这个空间中挤出了一个宽度适宜的卡座,并将压缩掉的储物空间通过悬垂的方式去补足。
We have had a lot of discussions with Party A about this 20㎡. Eventually, we have a firm intention of a “comfortable community cafe”. The community has always been the original intention of ANNND Coffee. Planning a more tense layout and squeezing a booth with a suitable width in this space maximize the functions. The compressed storage space is supplemented by overhanging.
▼分解轴测图 exploded axonometric ©Ruhaus Studio
“我们希望成为这个记忆的一部分”To be a part of the memory
通过门头悬挑的钢板,制造出高吧以供消费者小憩,同时也方便了快递小哥哥的取餐。可以开启的窗户最大限度的消解了对外的距离感,获得了与顾客更亲切交流的可能,来来往往的好奇的左邻右里也时不时探头张望,并慢慢成为我们第一第二第三位常客。我们希望用小小的设计,对城市日渐冷清的社区氛围,做出反抗和补充,通过加强与街区的交流让我们真正地融入这一个街区——我们站立在这里,就像我们一直都在,成为社区的微光。
Design a high bar through the cantilevered steel plate at the door for consumers to rest, as well as for easier picking up. The openable windows also minimize the distance for better communication. We hope that this design resists and complements the deserted community atmosphere. This shop can integrate into the community by strengthening communication with neighborhoods and becoming the light of the community.
▼门头细部 details of the entrance ©Guo
▼室内空间 interior space ©Guo
▼吧台和咖啡机 bar counter and the cafe maker ©Guo
▼座位区 seating area ©Guo
“用细节拥抱客户”
Details
我们选取了不锈钢,水刷石去致敬高速发展的深圳进程中不可替代的记忆,以此维持了annnd惯有的“温暖的酷”。但是在细节上我们用木材去贴近消费者的使用空间,用立面的弧角和进门抬头的弧面去消解锐利感,让店铺以拥抱的姿态去欢迎每一个客户。
We chose stainless steel and granitic plaster for Annnd and maintained the usual coolness of Annnd. For details, we tried to use wood to warm consumers’ space. The arc angle of the facade and the arc surface of the entrance eliminate the sharpness and allow Annnd to welcome each customer with a hug.
▼材料细部 material details ©上:夏同,下:Guo
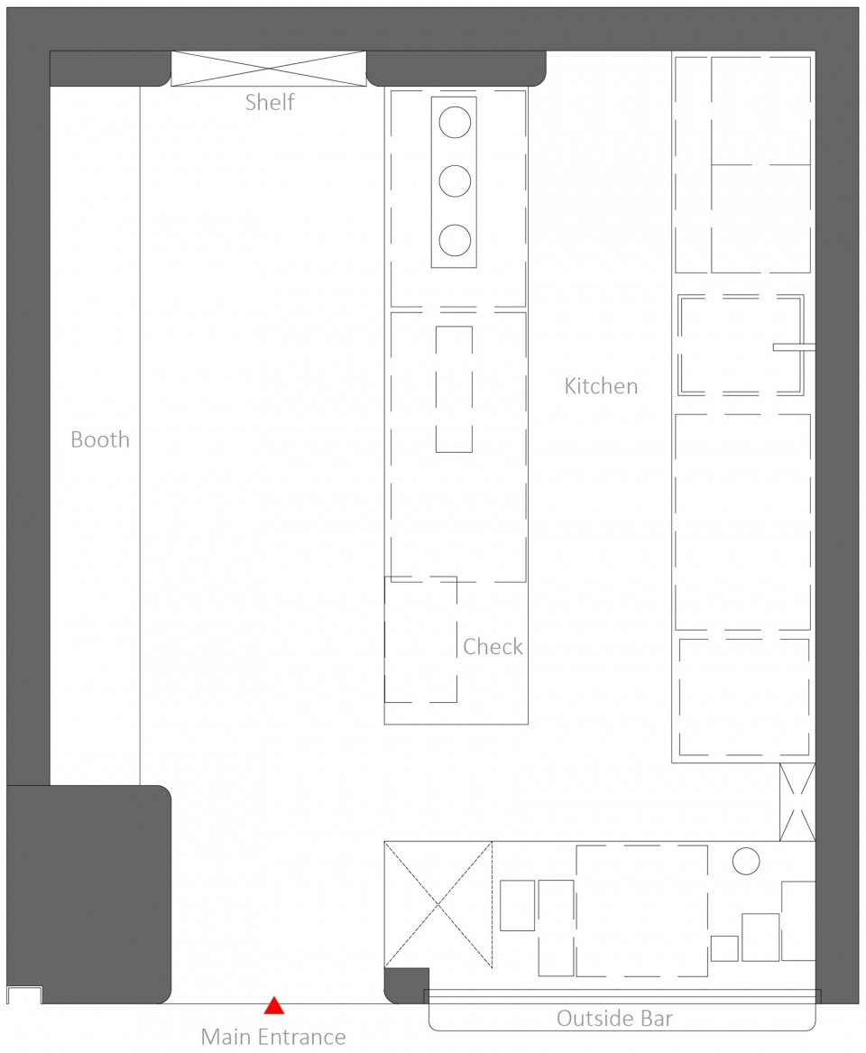
▼平面图 plan ©Ruhaus Studio
▼立面图 elevation ©Ruhaus Studio
▼剖面图 section ©Ruhaus Studio
▼咖啡机轴测图 axonometric of the cafe maker ©Ruhaus Studio
项目名称:Annnd Café
设计方:Ruhaus Studio
项目设计&完成年份:2021
主创及设计团队:王艺儒,朱丹丹。许丹琳。
项目地址:广东省深圳市福田区新闻路与景田南五街交叉口合正名园二期一号楼19号
建筑面积:20m²
摄影版权:夏同,Guo
Project Name: Annnd Café
Design: Ruhaus Studio
Design & Completion Year: 2021
Leader Designer & Team: Yiru Wang, Dandan Zhu.Danlin Xu.
Project location: News Rd and Jingtian South fifth St, Shenzhen, Guangdong
Gross Built Area: 20㎡
Photo credits: Tong Xia,Guo
Clients: Annnd Café
客服
消息
收藏
下载
最近



















