查看完整案例


收藏

下载
◈沙发背景墙做成白色线条护墙板,其中右侧墙角处做有通往卫浴的隐形门设计,关上门空间整面墙统一又整洁。结合天花板的圆弧形吊顶,空间增添不少柔美感,再搭配上无主灯设计,射灯和线性灯光的设计为空间氛围感奠定基础,高级感满满,提升整体的空间感。
◈电视背景墙做的是悬空设计,也是划分玄关与客餐厅的秘籍之处,提升空间功能的灵巧性,柜体底部留空,黑色打底配上浅浅的白色花纹,整个空间轻盈又灵动,再搭配地台上的木柴,氛围感直接拉满。
空间在软装上选择浅灰色,与空间的微水泥墙面形成统一感,呈现出别样的设计感与时尚感。
◈客厅采用白色作为空间的主色调,奠定简洁的空间基础,客厅位于次卧与餐厨区的中间区域,所以在采光上没有优势,空间大面积白色在视觉上可以拉伸空间感,还能保证空间的明亮感,在结合从改造后的多功能房引进的采光。
◈餐边柜做的是白色通顶柜,嵌入式电器的设计,让空间保持统一感,左侧预留有开放格的设计,可以放置小件物品,右侧拐角空间做有通往儿童房的隐形门设计,空间静谧安逸。
◈餐厅的地面是客厅延伸归来的灰色地砖,空间白色为主色调,白色大理石餐桌+岛台的搭配设计,餐厅格局瞬间上升,视觉上更具有空间延伸感,大理石材质更易清洁打理,岛台还可以作为备餐区和水吧台使用,并且下方做有储物柜,满足空间收纳需求,再结合长吊灯与之呼应更具有仪式感。
◈厨房与餐厅的隔断做的是推拉门的设计,保证空间的采光性,做饭时还能避免油烟外散,厨房空间的布局是L型,冰箱等电器内嵌式设计,再加上吊柜和地柜的设计,空间储物一点不在话下,吊柜选择白色,与天花板相结合,保证统一感,地柜选择深灰色,白色台面易清洁还干净大方。
◈卧室设计延续客厅整体的氛围,营造一个简洁又很舒适的空间,大面积白色乳胶漆通刷,床头选择奶油色乳胶漆,简洁的搭配不易审美疲劳。
空间无主灯设计,射灯+床头吊灯+壁灯,再结合地面的原木地板,给空间带来一丝温柔感和氛围感。
◈儿童房设计以功能性为主,简约书桌满足学习功能,墙面的组合柜体贴合户型,衣柜到顶,内部做了悬挂区和叠放区,从小培养孩子的收纳好习惯。床是设计的榻榻米,床箱底部是长的收纳抽屉,不用翻垫子拿取,可以存放孩子玩具、被褥等。床尾和床对应的天花板做有原木设计,还搭配上射灯,给孩子一个具有安全感的居住环境。
◈休闲区将原有墙体打掉改成半开放式,与客餐厅做贯通,扩大家居空间,同时将空间设计感觉做到极致。
◈多功能室地卖弄做了抬高设计,满足小孩攀爬的天性,增加客餐厅设计的视野又能兼顾小孩子玩耍的空间,通过空间结构造型保证墙面色系统一,空间做有无主灯设计满足空间温馨的同时,还给空间增添了不少趣味性。
◈卫浴空间以高级的浅灰色为主色调,空间采用常规的干湿分离,因为空间比较充足,所以我们还做有浴缸设计和淋浴区,湿区做有壁龛设计,洗澡时拿取沐浴露也方便很多,还能提高空间利用率。浴室柜选择台盆一体设计,易打理还简洁大方,不会存在卫生死角区,浴室镜内部做有收纳区,可以用来收纳一些用品,空间整体利用到位,既增加充足收纳又干净美观。
▲平面布置图
◈靠近客厅的次卧进行墙体拆除,改为玻璃折叠门设计,将采光引入客厅,
◈为了避免进门时客厅尽收眼底,选择悬空电视墙作为隔断,将空间进行过渡,
◈客餐厅非承重墙拆除,空间打通,保证充足采光。
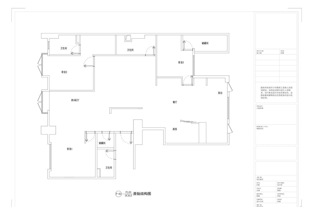
▲原始结构图
◈户型整体结构及各空间比例相对协调,
◈客餐厅规划、卧室规划、功能房规划,
◈光线较好,
◈室内有梁,
◈楼层为高层区。
客服
消息
收藏
下载
最近






















