查看完整案例


收藏

下载
提倡“心做”摒弃“形式”,是GRK张晓光设计对每一个儿童空间设计的最根本的要求!这些年来,我们奔赴于全国各地优秀托育机构、幼儿园、学校,在和不同地域的甲方进行接触沟通时,他们对自己的将来园所做出很多设想和期望,给我们增添了意想不到的想象。由于我们设计的空间环境主要服务于特殊的群体,因此不仅要对孩子们的生理特点作出详细了解,更要深谙孩子的心里特点。生活中,作为人父的我会有意识地和孩子或一起出游玩耍,或只是蜷窝于沙发和她很放松地聊聊天,从自己的孩子的身上窥见孩子的心理变化,幻想中的世界。他们是那样的天真无邪而富于变化,强烈的好奇心使得他们不甘于安静地静坐沉默的,等等,这些都成为我们在创作时所要考虑的元素。另一个服务的群体是家长。孩子入园,家长必须入学!因此我们在创作时还要考虑家长的感受,充分体现人性化。接送孩子时的休憩空间是否舒适温馨?参加亲子活动等一些公共活动时的空间是否宽敞、个性独特?…给我一支笔或者一台PC,我将为你展现无限的趣味空间。 —— 张晓光GRK张晓光建筑(北京)创办人建筑师、高级室内设计师
项目地处安徽省阜阳市阜南县,属内陆开发较早地区,位于安徽省西北部,淮河上中游结合部北岸。阜南城区是阜阳距离市区最近的县城,城北新区于2010年开始建设,阜南是三国名将吕蒙、 解放军著名将领聂鹤亭将军的故乡。
安徽省地图 ©GRK张晓光建筑阜南县素有“名优特产县”、“天然资源库”之称,是全国粮食 生产大县、中国柳编之乡、全国唯一的农业(林业)循环经济示 范试点县,安徽省林业十强县、文化先进县。也是中国承接产业 转移投资环境十佳县。
阜南交通流线 ©GRK张晓光建筑
项目建于阜南城区,新村路以北,三塔路以东,安建淮畔世家小区内。随着当地人口的急剧增长和双职工家庭越来越多,“0-3岁婴幼儿谁来照看”成为摆在新晋父母、准父母面前的一大难题,一所全新的综合性国际托育中心因此应运而生。
项目投标现场 ©GRK张晓光建筑
汇报方案现场 ©GRK张晓光建筑该建筑总层数为3层,原先性质为幼儿园,改造完成是一所面向0-3岁儿童的省级示范托育中心, 其中一层和二层区域为托育类的空间,三层为早教中心。
建筑西面 ©GRK张晓光建筑
建筑南面 ©GRK张晓光建筑
施工现场 ©GRK张晓光建筑
施工现场 ©GRK张晓光建筑
施工现场 ©GRK张晓光建筑
孩子进入园内,就开始与托育园建立了链接。面对父母的依依不舍、新而陌生环境时,孩子会对父母产生依恋,可能会露出几颗牙齿微笑或毫不妥协地大哭。父母也会产生那种离别时的压力。为了让孩子有一个良好的入园适应,我们结合了国内外知名教育学者对大脑神经科学和依恋关系研究,以及诸多知名托育园教育家的大量实践成果,整个空间表达紧紧围绕“以建立爱的链接、父母与孩子之间情感的交接、孩子心理、适应性、认知情况”为重要核心,采用层层递进的手法,用亲切的姿态和合理的形体表达,为孩子们营造出一个充满亲切、温暖、探索与开心的天堂。
大厅 ©GRK张晓光建筑这样孩子入园后能尽快安静下来,没有感受到离别时的压力和陌生紧张感,大厅的空间我们做了延伸,开放通透的大厅在满足基本功能需求的同时,也为孩子提供了一个舒适愉快的生活氛围。
绘本区 ©GRK张晓光建筑大厅的背后是一个通往室外的一个精致景观花园,开放的视线,让整个空间室内外连在一起,模糊了室内外边界,孩子们可以自主尝试探索新环境,达到移步异景的效果;在那里,孩子们可以与自然亲密拥抱,玩耍时有自然中的花,草,树木,昆虫相伴。当孩子细节敏感期到来时细心观察的老师会带领孩子进入中庭花园,趴在地上观察土地上的昆虫,心智则又在环境中得到了发展,智慧便在此时产生。忙碌的大人常会忽略周边环境中的细小事物,但是孩子却常能捕捉到各种自然小奥秘。
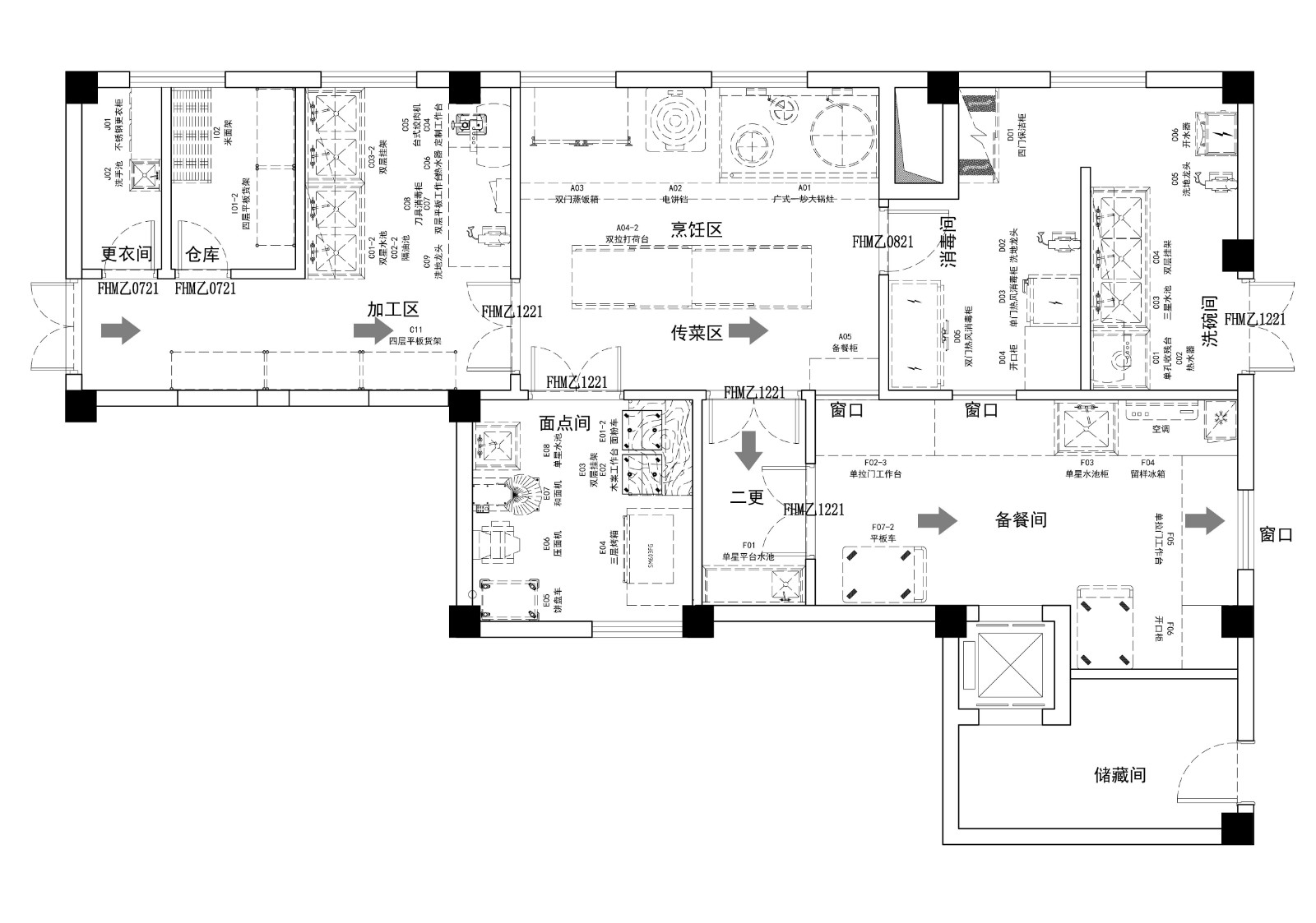
楼梯 ©GRK张晓光建筑创造自然,放松的环境,保证孩子得到均等发展的机会,受到平等的对待。因为,在自然、放松的状态下,孩子很容易发现生活的法则和宇宙的秘密,在行为中形成自律。厨房区域功能分区明确,流线动态合理,规划分布达到省级A级食堂标准。
厨房布局©GRK张晓光建筑
内部公共区域的墙角进行了圆弧处理,部分墙体采用自由曲线的表达手法,突出其好奇心,激发孩子探索的欲望,整个空间我们采用了白色系列,象征着孩子纯洁无垢的心灵,同时为老师和孩子提供了更广阔的发挥和想象空间。
走廊©GRK张晓光建筑墙面的挖空区域的玻璃窗可以清楚的看到活动室区域空间,在保证隔音的基础上也增加了空间的通透感,内部的空间处理也使得动线更加丰富多姿。
多功能厅©GRK张晓光建筑白色包罗万象,白色无限可能,白色激发想象力… …老师后期可以在白色空间里摆放教学所需的所有五颜六色的教具。根据不同学龄段的孩子进行有准备的教学摆设,为持续发展提供更多的可能性,价值感油然而生。
托班活动室©GRK张晓光建筑孩子也可以在这样整洁有序、精心准备的空间里心智得到了充分发展,在有序的行为中发现自己的天赋,从而有余力开展天马行空的想象。超我得以实现。
备餐区©GRK张晓光建筑3岁前心理发展阶段总称为前语言期,即不会说逻辑的话,只能用肢体来表达,孩子借着听觉、视觉、味觉、触觉等感官来熟悉环境、了解事物,透过潜意识的“吸收性心智”来吸收周围事物。
二层开放活动区©GRK张晓光建筑据此,我们通过形体的表达凸显多姿态多层次的丰富观感,与室外的环境相结合,触发幼儿触觉和观感器官更加敏锐,营造出了私密高贵的游乐空间感觉。设计避免了在任意一种形式上的重复。光线,材料以及交通路线创造出许多意想不到的场景,延升出多个孩子可探索的区域,这些区域的相互结合,共同拼凑起这一纷纷攘攘的热闹景象。
三区公共区©GRK张晓光建筑空间体块的灵活处理更多的是不知不觉中引导孩子感知生命力,引导孩子以平和情绪配合老师的授课。为早期教育提供适宜且具有发展性的空间,甚至提供永久教具(延伸至地面的涂鸦墙);同时在公共区域,我们还准备了新奇的游戏环境,在这里,他们可以攀爬,也可以自由的奔跑和玩耍。公共区周围藏着许多培养运动技能的小玩具,乐高墙,用来开发他们的智力。
活动室©GRK张晓光建筑平面布局
1F plan ©GRK张晓光建筑
2F plan ©GRK张晓光建筑
3F plan ©GRK张晓光建筑项目名称:阜南县保健院淮畔世家托育中心业主单位:阜南县妇幼保健院设计单位:张晓光设计顾问(北京)有限公司主持设计:张晓光设计团队:左红丽、韦世超、黄雨新、代鹏、刘艳青、张永新、丛辰铭、史漾施工单位:安徽劦鑫建设工程有限公司监理单位:安徽欣耀工程管理有限公司建筑面积:2710.98平方米建筑高度:11.1米项目状态:施工阶段
客服
消息
收藏
下载
最近
































