查看完整案例


收藏

下载
原始结构较为传统,每个空间都很局促。入户门还正对卫生间。除去公摊实际套内面积只有70平方,房子中间有几处很尴尬的承重墙无法改造,导致入门处光线很弱。#原始结构图
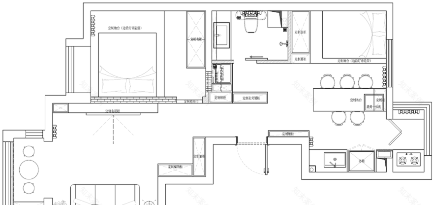
改造完成平面图: 1、入户门正前方增加玄关柜和艺术DIY拼风。解决入户门正对卫生间门的问题。 2、拆掉次卧与厨房的墙体、增加开放式厨房,空调彻底解决不通透显小的问题。开放式的厨房让空间的视野更加开阔,岛台的设计填补厨房空间的不足。 3、原本封闭式卧室,改造成榻榻米空间,休息睡眠,休闲娱乐兼并。 4、充分利用厨房阳台,燃气灶油烟机放置厨房阳台,让空间的利用率大大释放 5、洗衣机位置外放,上面放置洗衣台盆,洗漱和手洗衣、区分开。 #户型图#原始结构图#平面布置图
一进门,白色与金色碰撞的家居推开这方寸之地,墙面和吊顶对于的线条LED灯,正因玄关紧凑的布局下,必须权衡空间的视觉视野,以轻巧姿态划开左客厅有餐厨的分界。、DIY手工艺术品,这就是‘家’。自己的家,自动手更有意义,理科男确实很厉害。金属线条的柜子与挂画,装饰品搭配协调。#玄关#玄关柜
沙发背靠衣服艺术油画,中浅的配色系中柔和了现代和轻奢的过度,视觉上不会造成突兀感。打造和谐场景,不为谁刻意而做, #客厅#沙发#沙发背景墙#电视墙#挂画
面对客厅沙发背景墙,选用大幅组合建筑内容油画,画布和靠包的搭配相融合,形成简约墙景。 通过融合匹配的家具和装饰,让室内的空间更具质感和个性。就像这个房间里的复古皮沙发一样,不同质地的单品看起来就像一套完整的一样完美无瑕。为纪念合照的好地方。#客厅#沙发#沙发背景墙#电视墙#挂画
电视墙与主场气势的沙发背景墙呼应,选用石材瓷砖做主材质,以爵士白纹理铺述个性,立面成点睛之笔。同时为壁挂电视设备安置归处。#钢结构#石材背景墙
客厅设计效果图,上面是实景,屋主要求与实际还原,屋主同时很支持原创设计,第一版效果图很满意。直接全案落地。 #效果图VS实景
#客厅电视背景墙设计方案效果图
幸福屋主,甜蜜美好生活从第一个家开始。#毕业照#全案设计#整装
厨房将设备平台纳入其中,嵌入的蒸烤箱是给业主个性生活习惯的体贴酿制。增加空间的开阔感,色调上延续了整体空间的灰白色调。摒弃所有不必要的繁复枝节,保留最本质的收纳、洗涤、烹饪等功能,让人在其中倍感舒适和清爽。 餐厅往厨房看的样子,每次经过时都觉得,感觉这就是杂志里的厨房~MACBOOK显示着女主人对颜色显示的热爱:ps女主人是平面设计师。#厨房#橱柜#开放式厨房
#餐厅设计效果图方案
针对品酒兴趣也整合了酒柜,更因应两人爱喝水习惯,特别将水杯置于台面上,更以较深的格柜避免屋主加的小狗狗拨弄而坠落。 白色的石材适合每个厨房,从精致的休闲榻榻米区域到时尚的餐厅,再到厨房。空间的连贯性是这个空间不那么紧凑, #餐厅#开放式厨房#导台#吧台
屋主对开放空间的理想,将多部分轻质隔墙墙体卸除,利用设计手法重新规划,规避原开发商的设计,来满足屋主,爵士白石材的岛台,满足夫妻制作轻食、用餐等需求。#餐厅
两人宅在家立对屋主而言,是最好的周末行程,也因此配备小家电和丰足的食物备品是必须,双开门的冷藏空间足可以满足两人的使用,橱柜墙面满铺储藏橱柜,依序动线导引分配收纳类型,冰箱取物,洗菜,切菜,炒菜,岛台拼接用餐时的端景。#餐厅#开放式餐厅#橱柜#岛台
#餐厅收纳
卫生间三分离:洗衣机,洗手池,淋浴,互不干扰。 卫生间则选择爵士白系的砖搭配黑色的金属,赋予了空间冷静纯粹的质感。呈是现代人对高品质享受型卫浴空间的美好追求,让卫浴空间蔓延着时尚而又自然的气息。 卫生间门外定制了柜体,把洗衣烘干一体机包起来,上边空出来的柜体用来放洗衣液。 下边做了洗衣池,电器尺寸和背后的插座位置提前预留好,下水管暗藏在柜体里,洗衣机放进去后效果很清爽#岩板洗手台#嵌入式洗衣机#卫生间#马桶#热水器#岩板
#岩板洗手盆
#三分离
#主卧设计效果图方案
因为大量衣物收纳需求,窗户对面设计了从底到顶的大衣柜,白色在极简的设计中越来越多地出现,屋主自己绘制油画。超厉害的女屋主。#主卧#床#中央空调#窗帘#油画#衣柜#中央空调
柔和的床上用品是一种让您的卧室焕然一新的简单方式。地台床体,抛弃了传统的床架,搭配200mm床垫。有一丝丝民宿的生活气息。#主卧#地台
#卧室书房效果图设计方案#榻榻米#书房
次卧拆除墙体厚,设计榻榻米有效利用空间,节省了床、衣柜、占用的空间,把有限的空间做满榻榻米,寸土之地有效使用,榻榻米的的一侧同时配置了收纳空间的衣柜,衣柜末端做开放式书格子柜,屋主爱学习爱看书。#榻榻米#衣柜#书柜
客服
消息
收藏
下载
最近








































