查看完整案例


收藏

下载
原始户型分析
1.次卧及展陈室中原有隔墙较为多余
2.客厅阳台与次卧联通,影响次卧私密性
3.餐厅通向次卫过道狭小,造成视觉上的拥堵
4.主卧受主卫门洞限制,衣柜方式受到影响
墙体拆建对比图
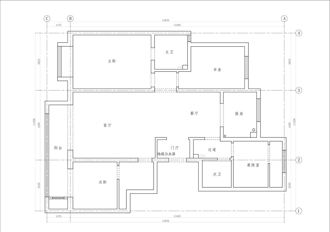
平面布局图
户型改造分析:
1.将原来的沙发墙和电视墙进行调换,避免了沙发的深度阻碍客厅动线,并且保证了沙发区的私密性
2.将原户型中过道与餐厅之间的短墙拆掉,提高了空间的通透性
3.将原本相通的次卧和阳台分隔开,保证次卧的私密性
4.主卧增加衣帽间,解决主卧储物需求
5.主卫在花洒对面增加壁龛,解决沐浴用品放置问题
房子的强弱电箱在入户右手边的墙上,由于线路是全新的,所以我们保留了原有电箱位置。在这面墙定制了一块L型洞洞板,预留穿衣镜的位置。不仅遮挡了电箱,并且可以挂衣服、围巾、包包及帽子等,配上一款成品换鞋凳,美观且实用。
另一侧则是一组悬空高柜,可用作挂次净衣,中间设计镂空区域方便随手放钥匙等小件物品,下方悬空区域便于常用鞋的摆放,但是对于放鞋来说60厘米太深,所以悬空区域的背板做了前提。
整屋除了厨卫以外通铺木地板,大面积地板营造了最初想要的温暖。
沙发、单椅及单人榻都是选自无印良品DIMANCHE系列。DIMANCHE为法语的星期日之意,具有“轻松”和“开放”的风格,诠释着让人感到心灵安静和休闲的星期日。
客餐厅空间选用了3匹的大金悬角式空调,比传统的立式空调小巧美观,且不占用地面空间。
电视区域选择用成品电视柜,旁边大面积山纹的樱桃木置物柜,朦胧感的海棠花纹玻璃更具有日式的氛围,宁静沉稳。既可以放置客厅常用物品,也可以放装饰摆件。瞬间提升空间的高级感。
沙发背景墙较宽,但又不想做的太复杂,所以在原墙面基础上加出一层石膏板,侧边嵌入线性灯,用灯光来增加空间的层次感。
一个毛发超级松软的小骆驼,一盏简洁的百褶灯,加上一抹绿色,将本不起眼的角落装点成了客厅中最温馨的一处。
阳台长达5.3米的窗户为整个房子提供了超宽的视野及采光。摆上一张小方桌,两把椅子。一个闲暇的午后,就可以在这沏杯茶悠闲看书,累了就原地休息,享受温暖的阳光。
餐厅选择的是北欧表情的一套樱桃木餐桌椅,用长凳代替一侧的餐椅,更节省空间,并且视觉上更通透。
二黑木作的经典款餐边柜,平常用于收纳零食、杯子等,中间洞洞板区域可以挂一些类似剪刀、胶带等常用工具。
三联动的日式木框推拉门,在保证阻隔油烟的同时又确保了空间的通透感。
将原户型中过道与餐厅之间的短墙拆掉,换成木框玻璃隔断,让空间有更多的虚实变化,且增加了空间的趣味性。
餐厅选用了这款原木南瓜灯,木头本就是自然纯粹的。光从灯叶中透出来,若隐若现,让每一餐都添了些浪漫。
主卧依然是简洁的日式原木风,奶油色的乳胶漆、实木的家具,营造出自然、温暖、静谧的气氛。
床头一盏胡桃木斗笠吊灯,光束温柔且均匀的散落在墙面及床头柜上,这样温馨的氛围足以让人沉浸其中,静静的感受这个家带来幸福感。
床尾处的斗柜便于存放常用的生活用品或者小件衣物。台面上的一束向日葵让整个空间更有温度。
衣帽间两侧的通顶白色衣柜都选择了软皮拉手,俏皮、安全且手感非常好。飘窗做了一圈木质窗套,相比硬朗的石材,木头更能给人亲近的感觉。也更能融入整个房间的格调中。
主卫灰色瓷砖搭配白色浴室柜,简洁大方好打理。原木色镜柜让主卫与外面有了呼应。
次卧是为双方父母偶尔过来小住而准备,并没有做过多的装饰。在平面图中可以看出这个空间做了一个L型的衣柜,充足的收纳柜不仅可以让父母们有各自的储物空间,也能弥补客厅及主卧储物空间较少的情况。
书房设计了双人位的工作区,两个人可以一起打游戏,一起工作,相互陪伴。累了便可以在后面的沙发上休息。一组转角书柜也为书籍们提供了安身之所。
展陈室是女业主的专属空间,之所以称之为展陈室是因为女业主是一个资深的BJD娃娃收藏者,这个空间是专门用作展示娃娃以及给娃娃们制作衣服和配饰的空间。我们所看到的两组抽屉里面装满了娃娃的衣服及配件。左侧的展示柜里面则是收藏的众多娃娃中的一部分。L型的工作台方便就近做一些手工。
厨房设计了U型橱柜,动线流畅。基于台面足够用的情况下,在靠墙位置做一组高柜,便于存放一些较大的器具以及不常用的电器。嵌入蒸烤箱下面的薄抽屉放筷子等餐具,避免占用其他的较深抽屉,节省空间。白色吊柜木色地柜搭配小白砖,大方明亮。灰色地砖既耐脏又防滑。橱柜均采用内嵌拉手,避免碰撞。
将原过道的位置做成次卫的干区。材质上和厨房保持统一,木色浴室柜,白色台面。小白砖铺贴到1.2米的高度,用一面异形的浴室镜来活跃空间的气氛。左侧一组高柜,中间空格区域方便摆放洗漱用品。玻璃隔断将餐厅和干区分隔开,确保了空间的完整性。
客服
消息
收藏
下载
最近







































