查看完整案例


收藏

下载
沙发边几选用了吊灯的方式,可以让边几可以摆放更多的摆设并营造出有趣的灯光氛围;
软装的设计上,控制整个空间2~3种的材质,装置油画的质感与沙发棉麻质感相近,保证同色系的关系;
另一侧则是活动带轮的边几,可以根据不同的生活场景来灵活移动。
客厅的位置还能看到餐厅/厨房,通过空间的设计改变,自然地增加家人之间相处的时光。
电视柜下侧镂空,以便摆放电视的相关设备。
餐厅右侧设计成吧台的方式,增加了餐厅日常使用的多样性,早餐/简餐可以通过吧台的位置来解决,依然能看到厨房的内部,让你的妈妈厨房工作不在孤单。
餐厅右侧设计成吧台的方式,增加了餐厅日常使用的多样性,早餐/简餐可以通过吧台的位置来解决,依然能看到厨房的内部,让你的妈妈厨房工作不在孤单。
客厅拆了原来的【土豪背景墙】以大面积留白的方式来结合整体的软装搭配;
实木框架沙发的设计很灵活,可以拆分成3个独立的沙发,也可以变成三人沙发。
整体电视柜使用了反弹器的方式,一门到顶的设计,日常的杂物全放在柜体内,整个客餐厅有将近30平方的收纳面积。
客厅选用了无主灯的设计方式,让空间主体回到人与家具之中。
客厅不像常规的设计,弃用了茶几,让客厅的重点回归到家长与小孩的互动当中。
餐厅选用了全实木的材质,保证耐用度之余,与整体设计风格相吻合,其中一侧选用长凳的方式,让过道位置更为宽敞,避免餐厅区域拥堵的感觉。
在有限的卧室空间内,尽量利用立面的空间,使用床头吊灯,解放床头柜使用空间,增加泛光源灯带,保证日常睡眠哪怕开灯也不刺眼。
改造后的主人房,拆除原有的背景墙以及朱红木地板,改成大地色空间,增加了整版床背的设计。床尾保留梳妆台之余,墙身留白作为投影的场景。
长辈房改变入门位置,偷出一整排的衣柜收纳面积,长辈因生活习惯不同,日常需要分床睡,设计过程也考虑到女主人二胎后,房间在不动硬装的情况下,依然能在未来长辈房变成二胎宝宝的房间。
小孩房面积非常紧凑,但实用面积最高,榻榻米床,书柜吊柜,衣柜,全是收纳,也考虑了小朋友日常的调皮捣蛋情况(床背设计为超薄板,避免撞花)。
厨房面积比原有大了一倍,接近7米的操作台面和超大的双开门冰箱,可以满足各种厨房的使用情况。
厨房门口改成三联动的玻璃推拉门,日常完全可以打开,变成开放式的厨房,洗菜盆选用了进口的超大单槽,非常方便清洗大锅的家庭。
主卫改成了三分离的卫生间,把浴室柜单独出来,卫生间尺寸比较紧凑,所以在门的选择上做了折叠玻璃门的方式,更节省空间,淋浴间因为只有750的宽度,为了使用者相对没有那么紧凑,只做了一部分的固定玻璃作为挡水,使用上更宽松一些,镜面改成可带LED的梳妆镜功能,而龙头也选用抽拉式的,使用上更灵活和多样性。
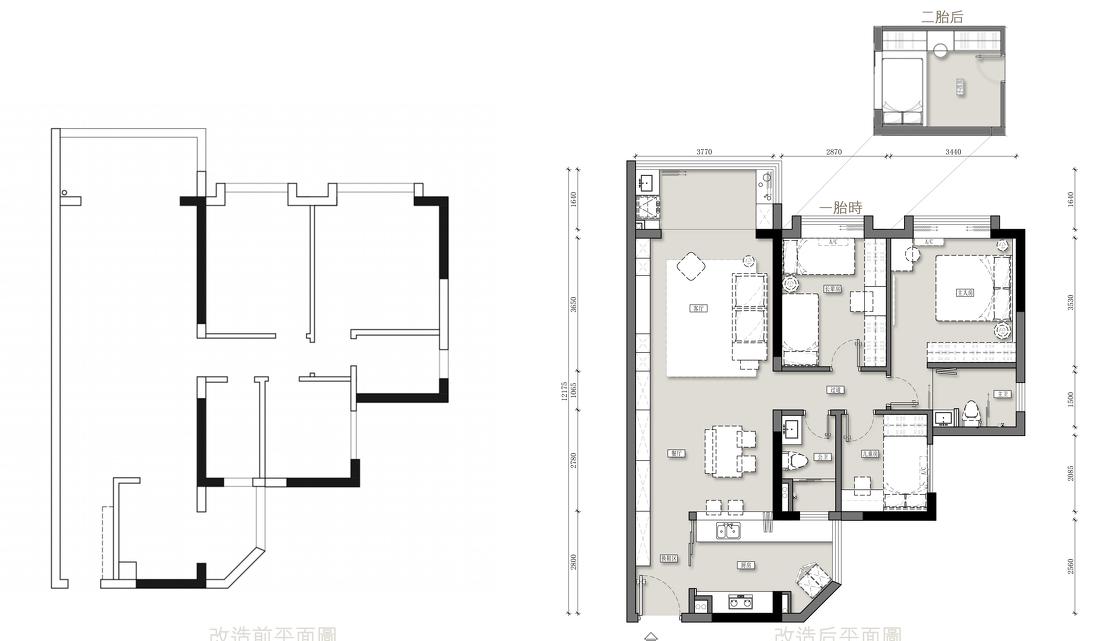
优化后的平面图:
进门位置重做了鞋柜,增加多种人性化的细节处理;
悬空17cm鞋柜高度增加日常更换拖鞋的便捷性,增加感应式的LED灯,解放双手;
中间增加了镂空以及长柜位置摆放雨伞和包包;
餐厅增加餐边柜,结合了业主的喜好增加了局部的展示区域;
大阳台封窗,作为多功能的区域使用,平常左侧为生活收纳洗衣区,右侧为业主的休闲泡茶区域;
小阳台把原有的门窗打拆后,改造成厨房的一部分,可以增加厨房的操作台面面积,以及各种内嵌式电器洗碗机/烤箱等的摆放区域;
厨房原有墙体全部拆除,改成厨房吧台以及可开可合的玻璃折叠门;
长辈房改变入门位置,偷出一整排的衣柜收纳面积,长辈因生活习惯不同,日常需要分床睡,设计过程也考虑到女主人二胎后,房间在不动硬装的情况下,依然能在未来长辈房变成二胎宝宝的房间;
儿童房利用了所有能利用的空间作为收纳柜体,以及满足小朋友学习的区域;
主卫拆墙后改成三分离的功能。
客服
消息
收藏
下载
最近





















