查看完整案例


收藏

下载
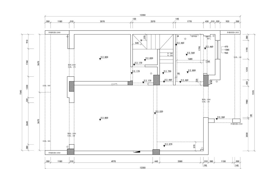
一层原始结构图
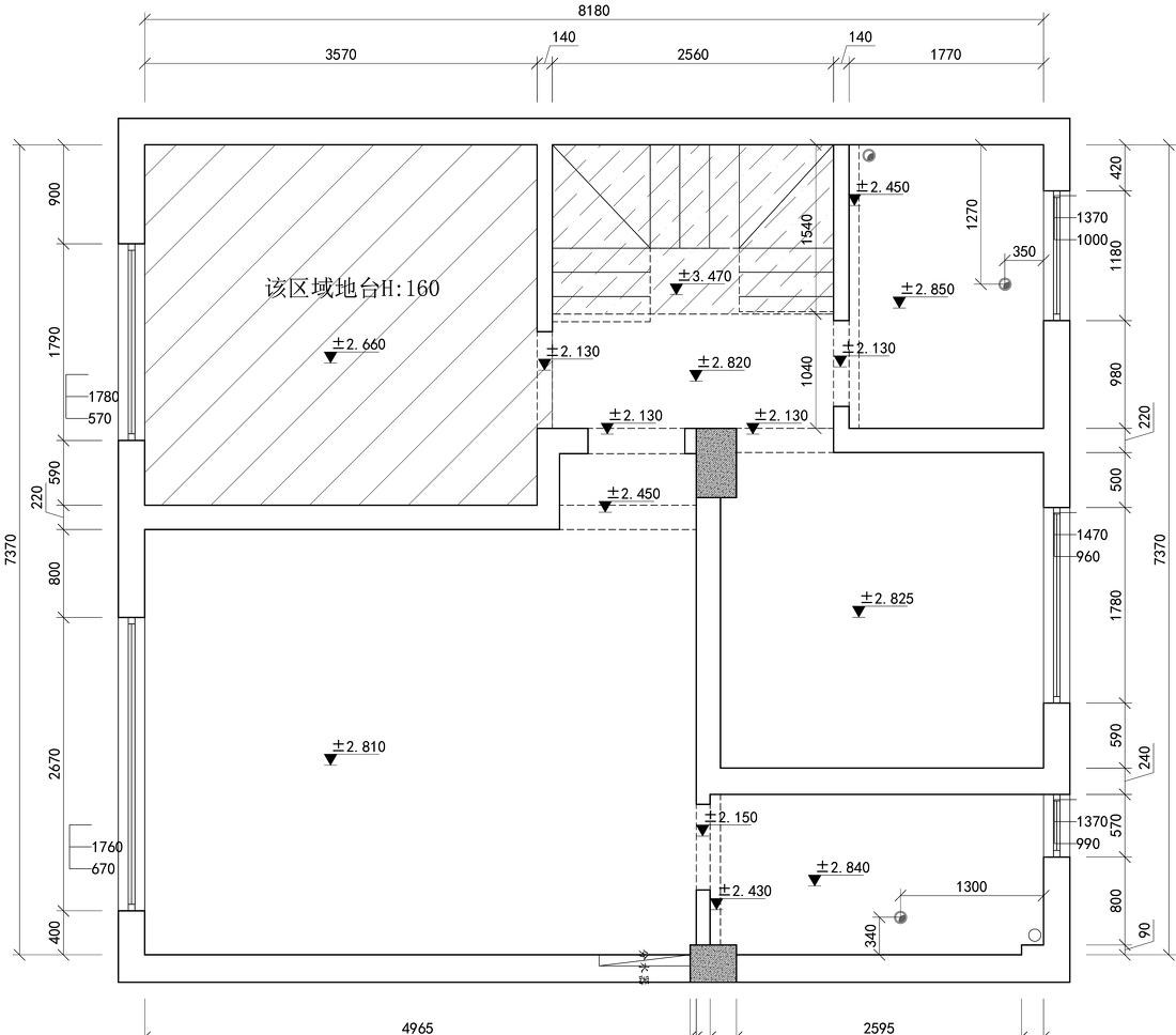
二层原始结构图
1.一层露台较大,但实际利用率不高。空间被分割的凌乱狭小,导致楼梯间及北侧采光不足。
2.一层藏在楼梯间下面的狭小空间,做为使用很频繁的公卫,很是鸡肋。
3.二层原有空间结构,严重不符合业主的家庭情况功能需求,整层空间需重塑。
一层平面布置图
一层为了让空间动线更流畅、增大采光面积,重新规划功能空间。将原有楼梯间下的客卫移位,提高南北的通透性。打开原规划卧室空间,形成环形动线结构,使空间可开可合更自由。
二层平面布置图
二层将原来的卧室空间,改为套间形式。卧室+书房+步入式衣帽间,层层进入,心理上更加私密和安全。
卧室和书房之间亦是可开可合的推拉门,满足独立休息和相互陪伴的需求。卫生间依照业主喜好,改为四分离。
设置了单独的洗衣房,紧靠露台,方便晾晒。
原来的露台部分,纳入了室内,一分为二,一部分给玄关,一部分给厨房,用大理石包裹了地梁,增设收纳柜,形成具有完善收纳功能的玄关。
借助原有梁柱,设计了门洞、窗洞,实现了移步借景。
空间打开之后,采光非常好,消除了所有的采光死角,于是光线和空气流动起来。
为偶尔来的客人预留的房间,通过折叠和推拉门形成可开可合的空间。
嵌入式墨菲床。
镂空造型,隔而不阖,形成流动的光影。
重组客厅功能后,设置了大量收纳,仅留下基本的休闲场景,让客厅成为更自由灵活的空间。
中西厨功能重新划分,增设小吧台,原计划的餐厅区未投入使用,业主暂时习惯在此就餐。
悬浮床降低了整个房间的重心,打造出空灵纯净的睡眠氛围。
步入式衣帽间,柜门全封闭。局部使用长虹玻璃,相对通透。百叶的光影和长虹玻璃相互呼应,形成迷人的几何光影。
洗衣房,收纳比较充足,紧靠露台,方便晾晒
客服
消息
收藏
下载
最近











































