查看完整案例

收藏

下载
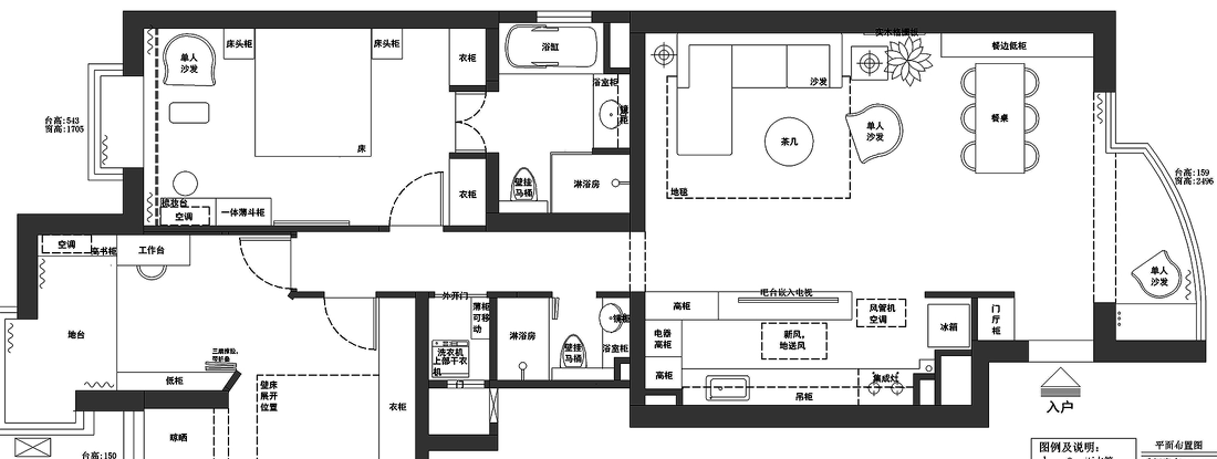
【原始户型图】
【平面布局图】空间上常住人口少,所以各空间都要以空间最大化来设计的,开放厨房是必需品,尤其是原来次卧书房很局促的格局下,将两个空间打通,用PD门来以备不时之需,书房的使用孩子从国外回来时候住一下,目前的衣帽间空间,其实是隐藏了个壁床,老人临时来的时候可以打开休息。平时大部分时间将空间感给到书房。
改造前
原现场照片
玄关
【玄关效果图】
【玄关实景拍摄】
本户型不适合做固定玄关,损失空间感,所以将形式上的玄关设置在了入户的正对面墙,也做为餐厅的一部分装饰。得到了一个开阔的入户空间。充分优化储物空间设计,使其兼具美观与实用功能。嵌入式鞋柜的底部可存放鞋子,上面的开放空间可摆放小盆栽或钥匙包物件。转到阳台一侧的高柜是个超大的换衣柜。进门功能完全满足,还有个灵动的穿衣镜。出门前整理整理。
客厅
【效果图】
【实景拍摄】
客厅采用整体开放式设计,与餐厅相连接,提升空间视觉的同时,增加空间互动性,彰显大气之风范。
【效果图】
【实景拍摄】
客厅整个空间以原木色、高级灰和白色为底色,原木色的桌椅、地板、墨绿色石材茶几、剑麻地毯,给人清新、舒适之感。略带混搭气质的禅意现代感。
【效果图】
【实景拍摄】 墙面装饰比较简约但不失艺术感,同时利用绿植作为点缀,让低调简约的空间释放出清新的气息。看电视的时间也少,有不想完全取消这个物件,所以做了吧台嵌入电视的主体设计
【实景拍摄】绿植搭配让沙发一角的空间更有自然气息和生活气息,营造出慵懒的氛围。
厨房
【实景拍摄】 厨房及吧台电视墙的结合堪称完美,极具美感又不失实用性,节省了单独打造电视墙的空间。有保证了开放厨房的设计感。
餐厅
【实景拍摄】 胡桃木质桌椅和格栅背景墙带着几分优雅、几分自然气息,雪山造型的吊顶灯不仅为餐厅空间补充了照明,还能打造出优雅、静谧的就餐氛围。
阳台
【实景拍摄】 阳台纳入客厅,无论是采光还是视野都得以提升,整个空间的通透感极好。宽敞的落地窗可以将室外的美景(绿植景观带)一览无余。弧形大落地窗确实费了劲了,但是值!
次卧、客卧
【效果图】
【实景拍摄】 书房兼次卧,看似简单的搭配,却有意想不到的效果。白色提亮空间、拓展空间,木色家具散发自然气息,二者可谓是“天作之合”。
磁悬浮灯
【效果图】
【实景拍摄】 抽象艺术画、小摆件这些看似不起眼的小细节设计,让室内瞬间充满了艺术气息和灵动韵味,同时还能彰显主人生活品味。
局部装饰
【效果图】
【实景拍摄】
次卧和书房空间打通,用折叠门设计来做“间隔”,打开折叠门就是一整间大书房,衣帽间空间还能“变身”为壁床,家里来客人也能住得下。几盆绿植的点缀,给人平和、舒适之感,非常符合卧室静谧、惬意的调性
主卧
【效果图】
【实景拍摄】 主卧的设计以高级灰为底色,胡桃木,灰墨绿窗帘、格栅板,搭配圆形的自然气息装饰画,和谐自然又不失艺术气息,和品质感。
【实景拍摄】
【效果图】
【实景拍摄】
休闲沙发上方的柔和吊灯设计,简洁而美观,也为卧室提供了更加灵活的照明需求。
【实景拍摄】
大卧室和对开门是绝配,卫生间门与衣柜门做了同材质整体设计,外观更整体简洁。空间更显大气。
局部
主卫
【效果图】
【效果图】
【实景拍摄】 卫生间简洁实用,经典的白色为主黑色线条为辅的设计,带来一份不寻常的高级与精致感。整个卫浴空间做了干湿分离,白色的浴缸与整个空间协调统一,它不仅仅是洗澡的工具,更是业主提升生活幸福感、放松身心的重要空间
洗衣房
【实景拍摄】 在与开发商和物业沟通后,将过道空间充分利用,打造了一个洗衣房,洗衣机上方空间可用于储物,增加了空间的实用性,而且不显拥挤,很有层次感。
客服
消息
收藏
下载
最近



































