查看完整案例


收藏

下载
给我物质,我就用它造出一个宇宙来
——〔德〕伊曼努尔·康德
一切存在的基本形式是空间和时间,城市是空间的内核,时间纵行穿梭其间,贯穿人的境遇和时代过去与未来的发展。城市空间印象,该如何设计与打造?追随流行风格,还是创造独一无二?这是个问题.
空间概念
SPACE CONCEPT
整体空间以“云穹之下,哲学新生”为设计脉络,将整体风格打造成具有科技感、时尚感、及艺术气质的城市会客厅。运用现代设计手法将无垠的宇宙与有形的空间相链接,打造出一个超现实主义解构下、集科技与人文于一体的未来新型复合社区。
01#
开启|逐星之门
INTERSTELLAR
20世纪中叶,爱德文·哈勃曾说:“带着自己的五感,人类开始探索周围的宇宙,并将这场冒险命名为科学。”星际尘埃微粒与密集的气体组成云团,开始了创造元素的新纪元。在幻象重迭的交替片段中,时空入口拨开云雾,让人恍若置入宇宙场域。
人文之光的艺术装置赋予城市向上而生的力量,引领人们对未来人居生活的向往。将宇宙的斗转星移幻化入空间之中,随着空间的变幻,颇有踏月神行的轻盈感。
溯源|人文之光
HUMANISTIC LIGHT
光影与室外景观融合,打造文化成长寓意的人文空间.
“知识是迈向成功的阶梯,阶梯书吧设计灵感溯源来自于此,天光与室外景观融合,充实自身,又为空间注入书香之气。打造文化成长寓意的自然空间。同时将单调乏味的楼梯交通空间与文艺书吧相结合,使得空间富有趣味性。同时又将人文气质植入空间中,人文、景观、书香交相呼应。”
漫步|星光之境
NEBULA TERRITORY
“曲线在空间的运作,打破对称、端正的规律,舒缓的旋律与轻柔的摆动相互契合,动感活泼的韵律美悄然而生,将宇宙的斗转星移幻化入空间之中,随着人们的走动,颇有踏月神行的轻盈感。整个空间没有多余的装饰,光影在有限的空间里投射出无限的阔度,于在室外面看,在室内其中,在方寸之间,都可获得震撼心灵的观感体验。”
洄游 |天空之境
LAND OF THE SKY
有序阵列的手法展现空间天空之境的意境 。光影在有限的空间里投射出无限的阔度,方寸之间获得震撼心灵的观感。
临境 |童梦奇缘
MySTERIES
亲子活动区域内,是可激发创作的艺术装置组合而来的寻仙踪影。分解空间动线与故事线索的逻辑关系,在此基础上,增加了相对具象的艺术造型 加强空间对心理层面的暗示,穿梭其中,又赋予了空间一种交错与平缓的体态。
时代 |华章会客厅
BUSSINESS AFFAIRS
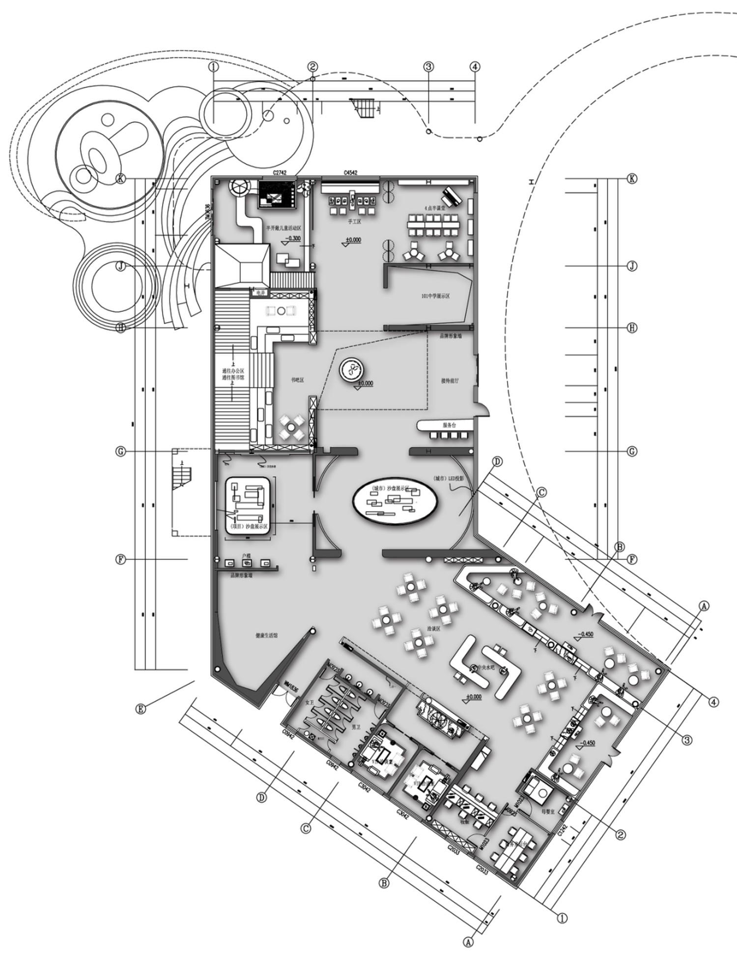
▲1F平面布置图
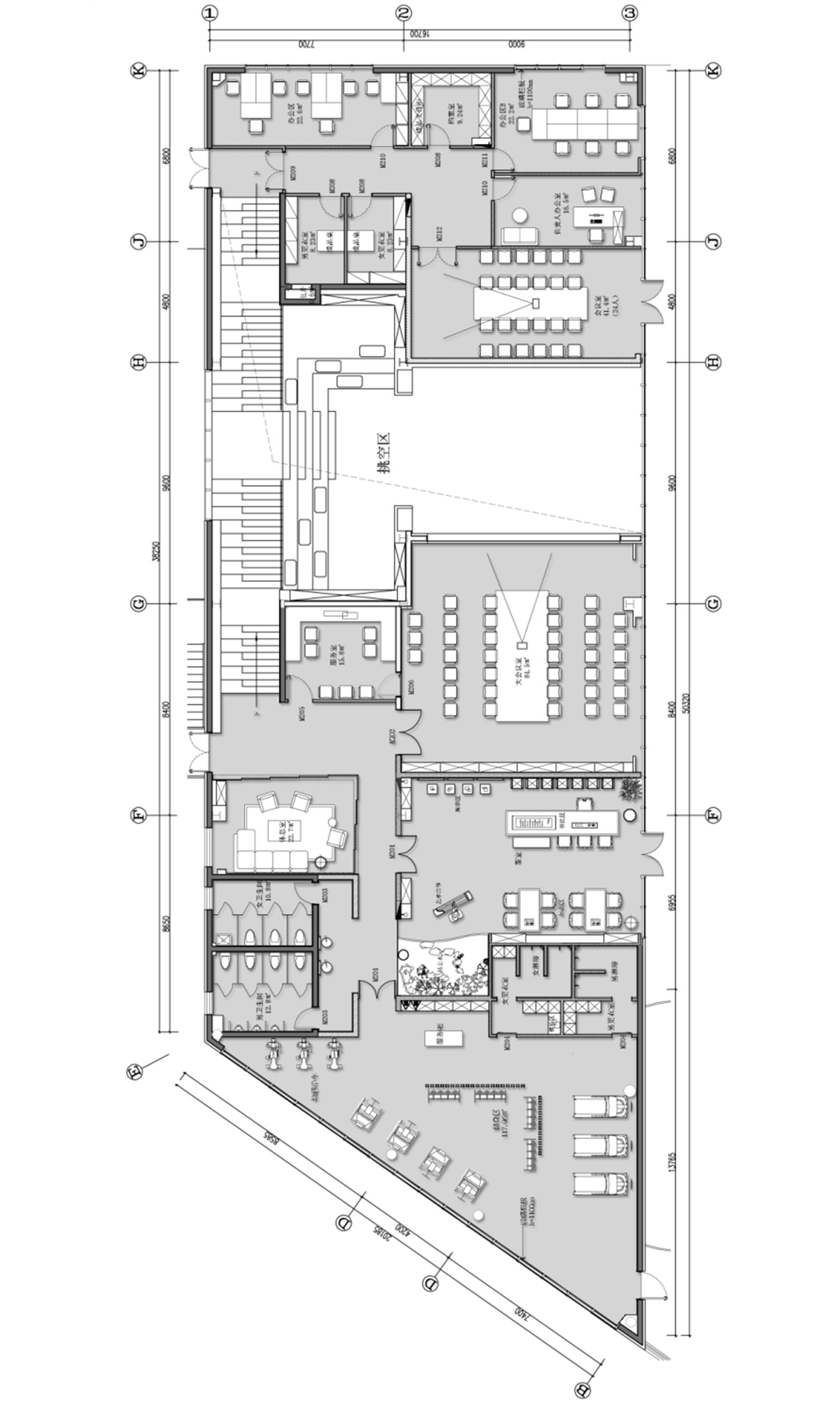
▲2F平面布置图
项目信息
ABOUT THE PROJECT
项目名称:远洋光华城营销中心
项目地址:中国 北京
建设单位:远洋地产
完成年份:2021年
硬装/软装设计单位:慕恩设计
业主团队:于呈东、孙丽然、高昂
项目摄影:SongImages建筑空间摄影
项目地址:中国 北京
客服
消息
收藏
下载
最近

































