查看完整案例


收藏

下载
花盛开就是一句,夜漫过就是一篇。
黄昏开始书写,黎明是无数的扉页。
全世界拼成首诗。
我爱你当作最后一行。
基于大量的收纳需求,入户左右两侧分别设置大面鞋柜,左侧柜子一路延伸至餐厅边柜,满足强大收纳需求的同时也能具备整体性。洁净的白色主柜体与同色系的木格栅饰面在同一垂直空间有序展现,并贴心设置挂衣钩和换鞋卡座,提升使用的舒适性。
以“柔”为主轴贯穿整屋,温润的弧形与干净的线条切割,沉静的白色与优雅的木色,方圆交错,木白有序。
整体的开间尺寸较为充裕(4100mm),于是在右侧沙发墙定制了整面的柜体(柜厚350mm),相佐温润弧线勾勒出开放式书架,抹去了横纵向度与隔间转折的刚硬气息。运用奶白色渲染温和调性,经由清澈日光轻柔罩覆、烘托无忧宁谧的空间氛围。
连贯的曲线造型,让空间有了动态的视觉律动效果。
电视墙以悬空柜体+无拉手柜门造就轻盈视觉感受,底部留空消除卫生死角让扫地机器人也能进出自如。墙面以木格栅覆面,凭借线条映出秩序美感。
因为有单独的家政间和晾衣区,阳台自然与客厅空间贯通,拱形门洞延续温柔的视觉感,并增加一组收纳柜,做开架展示或者书籍存放都可以。
悠闲的午后,随手拿一本书翻看,在椅子上晒太阳,是生活中最惬意的时光。
拆除原有墙垛扩充门洞至整面开间,挥别阴暗餐区印象,采光自客餐两侧穿梭而入,木白相间的背景间接营造出轻盈的餐叙氛围与轻松感受。一侧柜体可收纳展示,也可当做电器柜使用,在墙面安装有插座,小型电器使用更加方便。
餐厨之间使用长虹玻璃移门界分空间,可以弹性阻隔着油烟,同时将采光引入室内。
厨房为L型布局,将冰箱安置在餐厅,确保动线的流畅性和多人操作的舒适性。
以水槽、台面、灶具的最佳操作动线和嵌入式的洗碗机,减轻厨房家务的疲惫感。
在厨房的左侧区域,有面积大致4㎡的空间(2000mm*2200mm),具备上下水的基本条件,综合考虑后设计置为家政间。以L型的定制柜嵌入洗衣干衣机+水槽,满足日常家务的操作。左侧则定制与厨房相同的橱柜,作为厨房区域操作与收纳的补充空间。
卧室背景墙左侧以石膏板+石膏线做了突出墙面的造型,并粉刷灰绿色的乳胶漆,其余墙面和家具则都以淡雅的奶白和奶咖色为主,看起来清新、温暖又惬意。
穿过卧室左侧门廊即可到达书房,根据目前的生活阶段,主卧+书房+主卫作为整体功能区来使用,所有的收纳都放在书房兼衣帽间,形成完整舒适的主卧配套。
这个区域目前是作为书房+衣帽间的多功能区,但是考虑到以后会生宝宝,因此衣柜并没有沿着墙面做满,并且预留了插座、保留了门洞,补装房门之后就能恢复为独立卧室空间。
屋主有沐浴的习惯,但由于原始的卫生间面积过小,因此主卫借用了部分主卧的面积,并且更改了卫生间门的朝向,在使用上会更加舒适。
包裹下水管道顺势留出的壁龛空间刚好方便了洗浴用品的收纳,同时也减少了空间的棱角。
空间整体大面积留白,就连双人床也选择了温柔的奶油色系,使空间静放一抹柔和气息。为了避免平淡,特意利用小物件及挂画进行点缀,平衡空间的氛围。
客厅沙发侧边的弧形门洞之后,便是次卧的空间。入室门通过与柜子完美契合,成为贯穿空间的流动之美。
客卫简单做了干湿分区,扩充门洞之后安装长虹玻璃门,为干区引入更多光线。
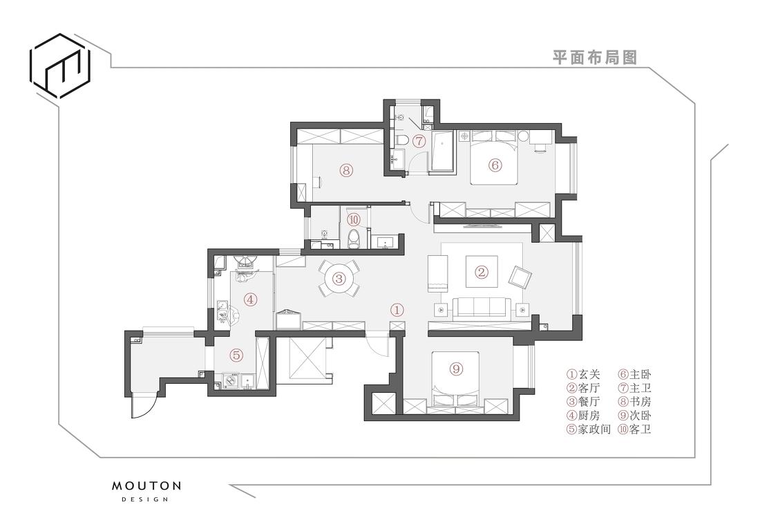
户型简介:
房子是23层的东边户,除了卧室区域,客餐厅的开间与进深比例相差过大,所以公共区域整体属于狭长型“伪”南北通透户型,采光和通透性受到了一些影响。
屋主需求:
1、通透的采光;
2、居住的舒适性;
3、可变化的多功能空间;
4、充足的收纳空间;
5、可拍照性。
主要改造点:
1、敲除厨房两侧的墙垛和客厅厚重的玻璃移门,为空间带来充裕光线;
2、将主卧室与衣帽间(书房)、卫生间联通,并扩大了卫生间增设浴缸,造就完整舒适的主卧配套;
3、衣帽间做了和书房的一个融合,并且考虑到以后会生宝宝,预留了开关插座和摆放床位的空间,同时保留门垛,补装房门即可变身独立儿童房;
4、除了常规的卧室收纳外,在客餐厅的背景墙以及厨房的储物间都设计了大量的收纳空间;
5、在柜子、家具和门洞上融入弧形元素,丰富艺术感的同时也能带来更多视觉美。
配色方案
主材选型
效果图vs实景图对比
客服
消息
收藏
下载
最近








































