查看完整案例


收藏

下载
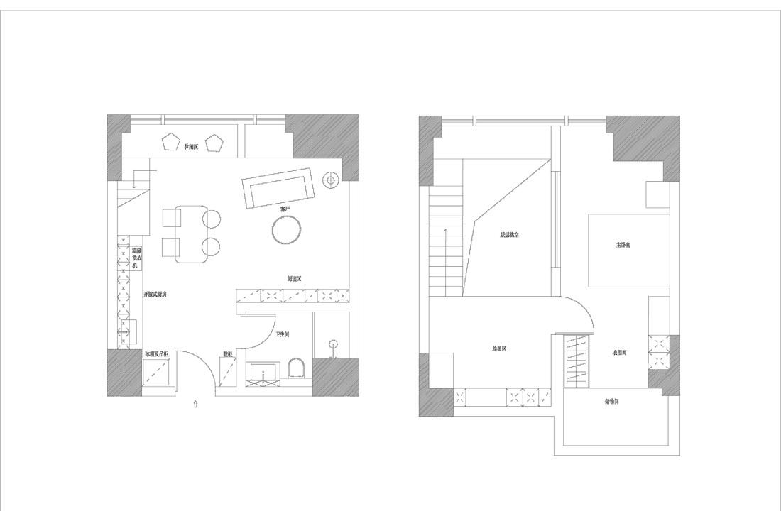
精装户型整体还算简单方正,4.9的中空挑空。开发商将此处设定为客厅区域,距离厨房过近,整体的动线不是很便捷。
把原来的客餐厅位置调换,二楼平台作为王老师的绘画创作区。优化收纳空间、平衡功能和生活需求,让空间更合理。
挑选许久的颜值在线且做感也ok的精致小沙发,异形跳色抱枕还挺加分滴;设计感满满的百褶落地灯也必须安排;客厅地毯特意选了一款有点内容的图案,跟墙面线条感的装饰画来个呼应。
客厅区域给王老师安排了整组的定制柜,镂空的位置方便放置书籍(老师书多呀,你们懂的,哈哈哈)
左侧留置整面白墙是留给投影区或者画作展示的,王老师说入住安排上。
拆除电视墙给餐厅增添了储物和餐厅空间。大白墙、浅灰系地板,基础做到干净简洁。餐桌选择椭圆边角节省空间,款式上自然要别致,毕竟是“门面”嘛
全局SU模型效果图~剖面图,还原度很高了。
开放式厨房和餐厅连为一体,又是入户直接看到的空间,必然重要。
将原来的橱柜拆除。台面高度升高,洗衣机隐藏其中。一来厨房台面得到了最大利用、二来王老师是个长腿小哥哥,使用也便捷;
飘窗上原先是大理石,想要温暖的氛围跟换了同柜体板一样的木板
选了两把藤制餐椅搭配十八纸折叠凳,灵活性的物件太适合这样的小空间。
厨房吊柜做了满柜,加强整体性。柜子的细节就不多说了,王老师找的小工厂也是无数次让我们爆粗口。在入户门后区域留有冰箱的位置,王老师淘了款颜值还可以,价格又很诱人哦。
就这两梁的中间,设计了一组柜子,王老师平时画册、颜料、工具,都有地放置了。圆弧区的设计既满足画框花板的放置,又是一处不错的布景。往后这里就是王老师挥洒艺术细胞的区域了。(此处圆弧定制的小厂家无数次让我们放弃,还好坚持了)
创作区SU模型效果图
由创作区看向卧室,门框也都换了白色,这个小边几深得王老师心。
考虑到整体性,柜体的背板延伸至整个床头,床头柜定制一体。细节不行我知道,王老师输给了银子。(哭~)
刷白的墙面跟木色搭配起来明亮、干净。床的选择上不想有太厚重的视觉感,淘了款无床头的床体。
卫生间是唯一没有改造的地方,省预算,将就着看吧。
客服
消息
收藏
下载
最近


















