查看完整案例


收藏

下载
入户玄关进门就是衣帽柜,进门往左就是进入客厅的公共空间,往右就是进入厨房空间。入户悬挂的是房子设计的户型图,金属边的画框很适合极简的效果。
错层的木制组合方式在圆弧形的垭口空间中很有意境。
中央空调的出风下口是投影幕布的设计功能,客厅区域放弃了传统的沙发布局效果,布置了2.6米的大长桌效果,让生活,办公空间可以共享。
白色B&O的音响
客厅区域采用了以进为退的策略方案,刻意将客厅区域的地面抬高了15厘米,通过高低差的错层设计,拉开空间的对比,避开扁平化的视觉效果。
极窄的玻璃边框效果和钢琴的组合
错落有致的柜体效果
降低空间区域的钢琴摆放效果
“长江”三脚架钢琴
将原始的厨房,玄关,餐厅空间合并为一个回子型空间,满足了业主的岛台加大厨房需求。岛台作为了餐桌的功能使用。
中厨的功能空间表现。
西厨的空间效果表现。
衣帽间化妆间和瑜伽舞蹈间
白色的柜体和茶色的玻璃结合
极简“无边框门”的关闭效果
走廊条案景观
极简门的开关效果
野兽派的床上用品。
主卧的备用衣柜。
卧室关上门的内部效果。
床头柜和饰面板的装饰
主卧空间增加了地台的效果
生活的小东西存放区域
干湿分区的卫生间,高仪的马桶和洁具
客折叠的“壁床”,折叠的效果展示。
极窄的玻璃边框效果。
干湿分区的客卫
细腻的玻璃门把手
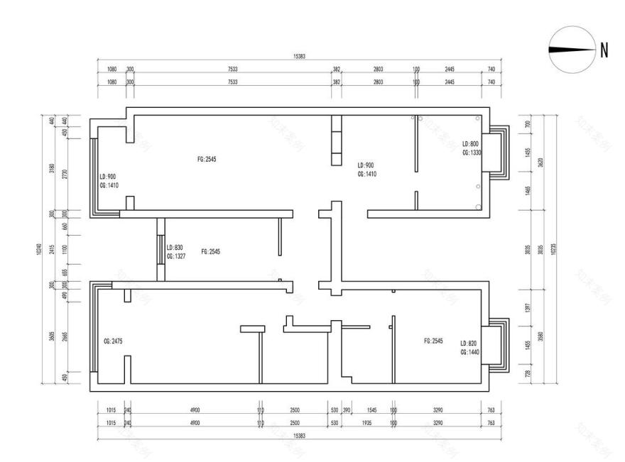
原始平面户型图
设计方案户型图
原始的客厅现场照片
原始的走廊空间照片
原始的厨房现场照片
原始的主卧空间照片
客服
消息
收藏
下载
最近













































