查看完整案例


收藏

下载
当建筑不再只是建筑本身,而与城市功能搭脉相连,都市生活也就谱写出了更多的多样性。青岛市民中心是清石设计与北京中景昊天工程设计有限公司对于建筑改造与城市更新的又一个实践项目,同时也是室内与建筑的新陈代谢设计理论又一次输出和实践。
△由于工期原因未能事先外立面改造
起点
如何将废旧商场改造为市民中心?
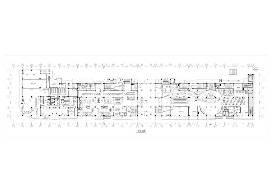
青岛市民中心由一栋空置近十年的商业建筑改造。原商场由一栋11层塔楼和4层裙楼组成,建筑之前的功能是商场,层高较低同时空间进深小,整体比较狭长,跟市民中心需要的大尺度公共空间,在空间尺度与使用上差别较大,加上项目周期短预算紧,如何才能将市民中心的功能有效融入原有的商业空间?以及梳理出流畅的空间功能流线和舒适的空间体验?
△改造前
△竖向交通流线整体改造分析
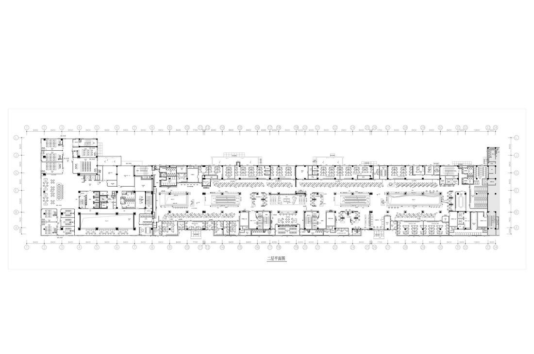
改造后的青岛市民中心集中了二十多家市级委办局将在此集中办公,为全市居民、企业提供包括民生、社保、税务、公安、出入境、公共资源交易、投资建设、市场准入、社会综合管理等提供一站式服务。空间改造功能需求的复杂性可想而知,如何对待平衡旧建筑与新需求的关系,为市民提供真正的便利,成为设计思考的起点。
清石设计给出了诗意且富有哲理的回答:
诗意
光的对面是彩虹。将自然光引入室内空间,同时彩虹渐变作为基础配色元素植入室内空间中。
哲理
奥卡姆剃刀定律(Occam's Razor, Ockham's Razor)又称“奥康的剃刀”,这个原理称为“如无必要,勿增实体”,即“简单有效原理”。
改造策略
办事大厅小型化
我们提出市民服务大厅的改造策略是:大厅小型化,在保持原有空间结构的基础上,通过灯光、导视系统和空间色彩将不同的办事单元串联在一起。同时办事大厅小型化让空间尺度更加亲人,为市民们在办事大厅等候或者办理业务营造一种在家的亲切感。
办事大厅的“客厅化”设计风格创造舒适、宁静的室内空间氛围,满足市民在等待过程中的心理需求。等候区家具挑选的原则是能够让人们在这里呆更长时间,因此我们为市民提供多样性的选择,但是只有一个舒适的目标。
改造策略
以空间色彩组织流线
我们不仅仅是将一个大结构体分解成一系列组合体的整合,更重要的是创造多种级别的空间和不同环境的相互渗透。这种相互交织的空间组织,满足更多向的互动交流的同时,也使空间利用更有效便捷,为更多种形式的活动提供灵活的环境支持。
市民服务大厅的功能组织与各种活动息息相关,所以简洁、清晰的流线组织以及明显的等待区域设计都至关重要。我们希望通过室内色彩设计为使用者提供清晰明确的室内引导。因此我们将彩虹渐变作为基础配色元素植入室内空间中。不同楼层的标识、窗口指示牌以及家具都遵循统一种色彩渐变原则,这样的空间色彩搭配从潜意识中引导市民快速准确的定位自己所在的位置,引导他们到达最终的目的地。
在动线规划方面,因原始建筑属性为商业空间,交通疏散设置较多,针对新的功能需求,我们通过梳理专家流线、行政审批内部流线、投标人流线、综合大厅办事人员流线以及综合大厅等五条重要流线,将裙楼东侧的部分电梯及楼梯在满足消防规范前提下做了适当的拆除,以提高空间的利用率。同时增加专用电梯,同时将主扶梯在竖向空间维度延长至顶层,充分满足了竖向的交通连续性需求。
改造策略
细节体现品质
改造设计过程中,设计师充分考虑工作人员办公环境的优化。合理的采光设置,工作休息区的结合,人性化的办公家具选择,空间绿色的植入,这些都让长时间在这个空间中的工作人员有舒适的办公环境,优质的环境与优质的服务相辅相成。
在材料语言的解读上,我们使用颜色编织地毯、定制编织地毯、超白钢化背漆玻璃、白色烤瓷铝板、木纹转印铝板、仿地毯地砖、木纹铝吸音板等经济牢固的材料,渗透在观者的感官里,以诉说着城市的沧桑岁月和文化内涵。
每个人对青岛这座座城市,都有深深的理解,环境亦如斯,建筑亦如斯,室内空间亦如斯。后疫情时代人类将要面临的诸多课题,这是后疫情时代带来的深邃思考,是人类文明走向“重生”的过程,实现以眼观,以心去觉察,去感叹经过重新设计规划的市民中心,恢复了往日的活力,相信好的设计能够不断自我更新,为城市赋能。空间以它的方式和力量为都市人注入能量,在轻微却不间断的新陈代谢中,塑造新生。
项目团队
主案设计师:李怡明
助理设计师:李建川,李亮,周帆,王雪丽,吉士超,祝司斌,穆煜,张帆,付鑫,李子翔
品牌及宣传:卢明
摄影:陈军
材料及品牌:烤瓷铝板、木纹转印铝板、PVC编制地毯、塑胶地板、铝格栅
设计时间:2019年9月
完工时间:2020年10月
总面积:16000平方米
合作伙伴:北京中景昊天工程设计有限公司
客服
消息
收藏
下载
最近







































