查看完整案例


收藏

下载
升级版“食堂”集合了不同的餐饮品牌入驻
© UNFOLDESIGN
作为升级版的员工食堂,该项目通过精品餐饮+多元环境的模式,在统一的设计语言下,实现了跨餐饮品牌SI(STORE IDENTITY)的融合,呈现出一个集高品质就餐、聚会、待客的空间,为企业内部员工提供更多样化、更精致的选择;同时,小米总部美食博物馆也面对公众开放,体现包容性和亲和力的同时,让入驻的餐饮品牌实现更多获益。
▲ 下沉庭院作为入口之一
© UNFOLDESIGN
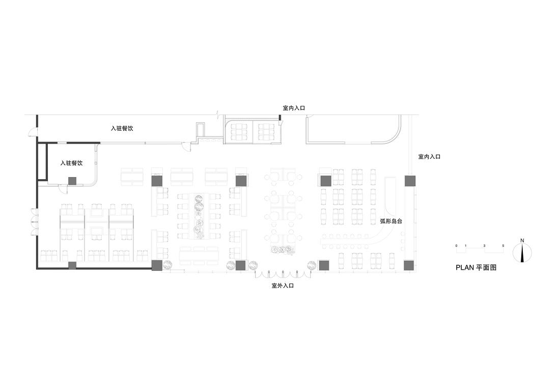
MI Eatery Museum小米美食博物馆坐落于整个园区的地下一层,与普通员工食堂一起,串联起几栋办公楼。开放式的下沉庭院作为MI Eatery Museum小米美食博物馆的入口之一,带来了充足的自然采光;另外两个入口分别与电梯间、普通员工食堂相通,优化就餐动线。
▲ 圆弧构型回应品牌logo元素
© UNFOLDESIGN
“博物馆”的概念,通过圆弧构形、回形通道与窗口式档口引出,以此呼应小米品牌Logo设计元素;色质上,UNFOLDESIGN聿几空间运用带有电子产品记忆感的“白色”,作为环境主背景,结合米灰色、温暖的木色调和少量具有未来感的金属元素,营造出一个简洁自然,充满关怀的就餐环境。
▲ 镜面不锈钢形象墙
© UNFOLDESIGN
室内主入口处,由镜面不锈钢打造的弧面形象墙,巧妙的扩张了视觉,化解了相邻区域的窄间距缺陷,塑造出“博物馆”的第一印象。
▲ 简洁自然的就餐环境
© UNFOLDESIGN
弧线设计元素由此展开,dubujib豆腐家、寻味香港、KFC、村上一屋4家餐厅如同艺术品般,被“镶嵌”于长条状的弧形盒子内。
几家餐厅分别“镶嵌”于弧形盒子内
© UNFOLDESIGN
所有餐厅的位置均贴墙设立,最大限度的保留了空间的完整性,以便规划不同形式的就餐区。
▲ 独特布局方便多种形式的就餐
© UNFOLDESIGN
为了平衡就餐与休闲氛围,UNFOLDESIGN聿几空间采取了五种就餐布局,分别为:弧形吧台区、十字圆桌区、多人位卡座区、灵活半封闭区和包厢区。
空间采用了五种就餐布局
© UNFOLDESIGN
其中,弧形吧台区与主入口相邻,引入了“快闪厨房”的概念。
▲ “快闪厨房”概念
© UNFOLDESIGN
它的一端配备水槽、烟机与操作岛台,另一端为落座区,企业员工可以在这里不定期的尝到不同餐饮品牌带来的快闪美食,也可以自行举办小型美食制作派对。
▲ 配备了水槽、烟机与操作岛台
© UNFOLDESIGN
相比之下,正对下沉庭院入口的十字圆桌区,则更注重“小组效率”和“氛围感营造”。卡座+圆桌+单椅的组合形式,非常适合3-4人的工作小组一起用餐,“十字形”的卡座与球形顶灯的设计塑造了温馨感。
▲ 十字圆桌区
© UNFOLDESIGN
不远处,良好的采光透过落地窗进入室内,多人位卡座区借助“回”形布局设计制造出一片“植物绿洲”。
▲ 良好的采光环境
© UNFOLDESIGN
这个区域可用于20-30人的大型聚餐,两端的长桌专为举办团队活动而准备。
▲ 长桌区域非常适合小组聚餐
© UNFOLDESIGN
在它的旁边,为了满足就餐时简单的待客及洽谈需求,灵活的半封闭就餐区被安排在最末端,UNFOLDESIGN聿几空间利用可移动的“滑轨阳光板”作为隔断元素,从造型质感上呼应了办公楼建筑体的特点,这些阳光板既保证了透光性,又能在必要时通过推拉实现分隔、闭合空间的作用,为人们制造了更多的停留机会,让员工能够在此用餐、休息得更久一些。
▲ 可推拉阳光板实现分隔、闭合空间的作用
© UNFOLDESIGN
UNFOLDESIGN聿几空间打造的MI Eatery Museum小米美食博物馆,集成了人性化的就餐体验、便捷的全区域电子点餐、新鲜有趣的饮食业态等,在概念与标准化之间寻求平衡,展现了企业端更便捷化、更优质的精品食堂趋势。
▲ PLAN© UNFOLDESIGN
项目名称:MI Eatery Museum 小米总部美食博物馆
项目位置 | 北京
项目业主 | 小米科技
项目类型 | 餐饮空间
设计总监:Joseph Chieng, Queena Qiao
设计团队:UNFOLDESIGN聿几空间
项目管理:UNFOLDESIGN聿几空间
项目面积:约 900 m²
设计周期:2019.08 - 2019.10
施工周期:2019.11 - 2020.05
空间主材:镜面不锈钢、水泥漆、阳光板、水磨石瓷砖、人造石、面包砖、烤漆、长虹玻璃
客服
消息
收藏
下载
最近




















