查看完整案例

收藏

下载

翻译
Conceived in 2019 and built during the long months of confinement, the project of the renovation of an apartment in the neighbourhood of Gracia in Barcelona puts at the centre of the proposal how its spaces will be inhabited. Not only in relation to the needs of its dwellers, a couple of musicians that often rehearse at home, both alone and in the company of others. But also in the arrangement of the pieces of furniture, beyond pure functionality: how they adapt to a configuration of rooms that are narrow and long in their proportions and how they are related and superimposed one to another to create a dynamic continuum of interlaced visions.
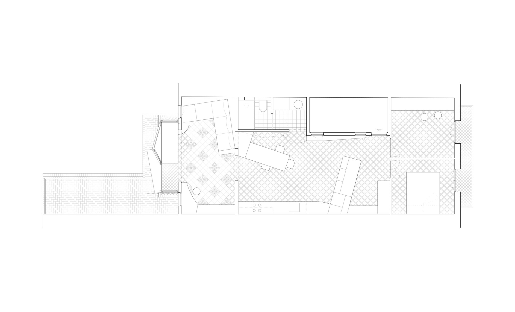
From the original floor plan, two rooms with a view to a narrow and quiet street are preserved as they were. The rest of the flat is mostly liberated from partitions to be configured in two spaces separated by a load-bearing wall and communicated via two existing openings. Even if the flat is not particularly large, this operation provides an amplitude to the space that was lacking before. The corridor disappears and an open but hierarchical space allows for the different uses to take place, where made-to-measure pieces of furniture signal areas of life and activity.
These pieces of furniture are anchored to the perimeter to free the centre –leaving enough space to allow for up to 4 or 5 people to rehearse together– and are tilted to transform the perception of space: the hall closet creates a secluded area of access to the bedrooms, the sofa faces the terrace.
The large window towards the block courtyard, which receives sunlight during a large part of the day, is re-thought and transformed into a hybrid piece between façade and furniture. A Hitchcockian “rear window” that faces outwards to the neighbourhood, but which also embraces the living space inside.
The existing flooring is reused, an hydraulic cement tile with a simple pattern which was originally placed rotated 45o from the structure of the apartment. The lack of enough tiles to cover the entirety of the floor area is dealt with by creating a composition of new recycled tiles in one of the rooms.
Location: Barcelona
Client: Private
Project Duration: 2019-2021
Architects: Bonell+Dòriga (Laura Bonell, Daniel López-Dòriga) Collaborators: Paula Domènech
Photogarphy: Bonell+Dòriga
*
Concebido en el año 2019 y construido durante los meses de confinamiento, el proyecto de reforma de un piso en el barrio de Gracia de Barcelona pone en el centro de la propuesta cómo se vivirán sus espacios. No sólo en relación a las necesidades de sus habitantes, una pareja de músicos que acostumbran a ensayar en casa, tanto solos como acompañados. También en cómo se disponen, más allá de la pura funcionalidad, las diferentes piezas de mobiliario que lo conforman, cómo se adaptan una configuración de estancias de proporciones estrechas y largas, y cómo se relacionan y superponen entre ellas para crear un continuo dinámico de visiones cruzadas.
De la distribución inicial se mantienen las dos habitaciones en uno de los extremos, hacia una calle estrecha y tranquila. El resto se libera de tabiques para quedar configurado en dos espacios separados por un muro estructural y comunicados por un paso de puerta y una ventana, ambos existentes. Aunque la vivienda no es especialmente grande, esta operación proporciona amplitud. El pasillo desaparece y los diferentes usos se suceden en un espacio abierto pero jerarquizado, donde las piezas de mobiliario hechas a medida configuran ámbitos de vida y actividad.
Estas piezas de mobiliario se anclan al perímetro para liberar el centro –dejando el espacio suficiente para permitir ensayos de hasta 4 o 5 personas– y se inclinan para transformar la percepción espacial: el armario de la entrada se pliega para crear un ámbito recogido de acceso a las habitaciones, el sofá mira hacia la terraza.
El gran ventanal hacia el patio de interior de manzana, con buena orientación solar y que da acceso a la terraza, se repiensa para convertirse en una pieza híbrida entre cerramiento y mueble. Una “ventana indiscreta” que se vuelca hacia el exterior, pero que también amplía el espacio de la sala y lo recoge.
Se reutiliza el pavimento existente, una baldosa hidráulica de dibujo sencillo que ya de origen estaba colocado girado 45o respecto a la estructura del piso. La falta de suficientes baldosas para cubrir toda la superficie del piso se resuelve mediante una composición con nuevas baldosas recicladas en una de las estancias.
Situación: Barcelona
Cliente: Privado
Duración del proyecto: 2019-2021
Arquitectos: Bonell+Dòriga (Laura Bonell, Daniel López-Dòriga) Colaboradores: Paula Domènech
Fotografía: Bonell+Dòriga
客服
消息
收藏
下载
最近





























