查看完整案例


收藏

下载
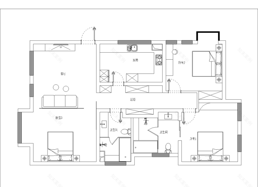
客厅空间没有做较大的公共区,因为屋主平常工作比较忙,家里基本就是老人和孩子在所以在空间上我们主要以舒适度为主,空间采光我们保留原始结构,选择百叶帘遮挡,不占地方还好看,白色简约又大气,透过的光影效果也是非常漂亮的。
空间吊顶我们选择浅灰色,周围简约的吊顶设计,搭配线性灯光,视觉上还有拉伸空间的感觉,地面选择通铺原木地板,延申至老人房,我们选择玻璃推拉门作为隔断,老人有经常看电视的习惯,隐藏我们将老人房安排至此,也不会打扰到家人休息。
电视背景墙我们选择大理石为背景,搭配黑色地柜,黑白配的颜色搭配永远不会过时。空间在软装上选择浅色布衣沙发,为了减少空间的压力感,选择轻奢小巧的不规则茶几,满足日常水杯零食的放置,空间轻盈又舒适。
厨房空间我们选择U型布局,吊柜+地柜的设计保证空间的储物需求,空间以灰色调为主,无手拉橱柜看上去干净简洁,墙面和台面我们选择深灰色,与浅灰色形成视觉对比,并且方便清洁。空间采光较好,灯光布局上采用无主灯设计,为了使空间统一干净,布局上我们预留电器的空间,将电器与柜体一体化设计,空间舒适大方。
主卧空间比较大,在色调上我们选择白色为主,因为考虑到空间是休憩的,比较注重隐私性和舒适度,我们选择无主灯设计,线性灯带充满空间的各个角落,营造良好的氛围感。
主卧入户门处考虑到有走廊衣帽间的设计,为了避免封闭式门的压抑性,结合到走廊空间的采光性,我们选择使用玻璃推拉门相隔,还能将主卧的采光引入至此。床头背景墙选择硬包设计,右侧白色花纹大理石神秘感十足,结合线条感的石材设计,墙面在灯带的衬托下,层次感丰富。
床尾我们选择电视机和书桌的设计,考虑到左侧进入卫生间的门厅处过于尴尬,我们采用大理石打造一个弧形设计,让空间过渡至此,搭配上灯带的设计,延续床头背景墙的设计手法,层次感非常丰富。
次卧空间是主要用来给孩子居住的,并且还考虑到后期孩子成长的空间,所以在设计上我们比较注重空间的舒适度和美观度。空间采光不错,我们保留小阳台的设计,采用落地窗满足日常观景的效果,地面选择原木地板通铺,与白色天花板形成对比,空间因为菱角太多,我们在吊顶以及相对应的地面处,做了弧形处理,给空间增加柔美感。
床头背景墙选择硬包+大理石设计,深色大理石点缀浅色系的空间,活跃整体的空间感,左侧墙面还搭配上暖色灯带的设计,转移空间视线,还能起到舒适度和美观度,床尾打造有地柜+悬空书桌,实用的同时,还能保证空间的简洁大方。
父母房空间以浅色系为主,空间采光较好,超大落地窗保证室内的通透性,因为是老人居住,所以我们在床头选择格栅+大理石的设计,百搭不厌还高级感满满,在搭配上线性灯带,空间层次感丰富。空间我们尽量极简化设计,老人的需求不多,所以床头一侧设计悬空床头柜,可以日常放置个水杯就行。
主卫空间我们采用干湿分离设计,空间选择透明玻璃为隔断,湿区空间选择浅色花纹感极强的大理石为主,并且浴缸内嵌设计,还打造有花洒,满足屋主多种洗澡需求,湿区墙面选择白色墙砖,与花色大理石砖块形成对比,并且还设计壁龛,节省空间还方便使用,浴室柜选择白色台盆一体+悬空柜体,满足空间的储物需求。浴室镜我们也采用可收纳的超长镜身,收纳女屋主的化妆品等物品。
次卫空间设计手法与主卫一致,干湿分离的设计,湿区选择浴缸+花洒,但是在浴缸的色系上我们选择黑色大理石镶嵌,并且整个空间选择灰色大理石墙砖,保证空间的高级感,干区地砖我们选择浅色系进行中和,台盆一体设计避免水渍外溅,还方便清洁,浴室柜也是可收纳的,增加空间的收纳需求。
利用走廊空间,我们将其设计为衣帽间,空间有通顶柜体的设计,也有开放格的布局,满足空间功能需求,为了减少过多柜体所造成的空间压抑感,我们还预留空间搭配全身镜,可以在视觉上起到拉伸空间的感觉。开放格部分我们选择透明玻璃作为阻挡,为了丰富空间层次感,还在内部设计上灯源,不仅拿取东西方便,还让空间高级感满满。
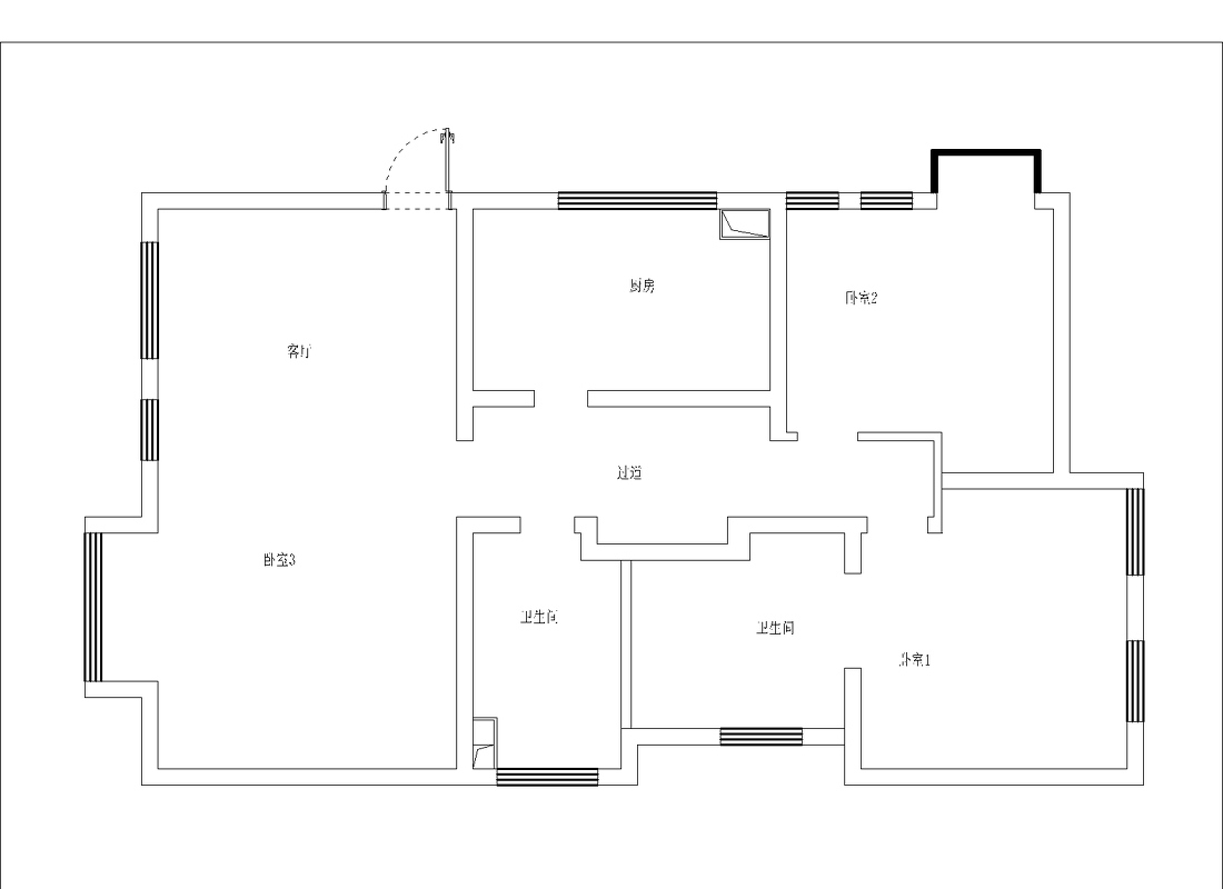
原始结构图
平面布置图
客服
消息
收藏
下载
最近




























