查看完整案例


收藏

下载
大自然的配色和质感,哪怕在这里待一会儿,喝一杯茶,也是幸福满满。
原始户型图
格局痛点:进门就是厨房和餐厅,不符合生活习惯,而且餐桌占用了进门通道。
格局痛点:客厅是暗间,采光需要借助靠窗的卧室。
1、拆除原有轻体墙,重新思考格局。
2、通过调整房间的位置来优化户型问题。
原来的厨房和餐厅共享了门厅的位置,需要把厨房往里挪动,不再与门厅挨着。
不过有的房间是受建筑设施的影响,不能移动太远,比如卫生间不能距离主下水管道太远,不然排水不畅;
比如厨房不能距离烟道太远,类似的,容易排烟不畅。
3、厨房与卫生间位置互换。
厨房跟客厅共享空间,这样就解决了进门见到餐厅的问题。
而且,厨房跟卫生间紧挨着,互换对排水和排烟都不会有太大影响。
另外,由于客厅面积大,餐桌的摆放也更加灵活了:可以独立摆放,也可以跟厨房结合,既作岛台又作餐桌。
4、进一步细化:卫生间:新建隔墙,并做干湿分离,方便临时洗手。
厨房:橱柜L型布置,与餐桌融合到一起,组成U型布局。
5、最终的平面布局
玄关:两边利用,一边挂衣,一边放鞋柜。
客厅:利用阳台原始的凸起,做榻榻米,享受阳光沐浴。
卧室:门洞位移让出衣柜,而且为了保持洗菜池与客厅柜外边沿对齐,墙体做内凹。
通过厨房和卫生间位置的调整,每个空间都来到了它应有的位置,自然而流畅。
装饰
如果布局是骨架,那么装饰就是衣着搭配。首先定大方向。整体布局是紧凑的,那么偏向日式风格将会更容易被接受。紧接着,泥土,大自然这样的主色调和质感方向也就能确定。木质也将会是材质首选。
四扇半透的日式推拉门,成为客厅的视觉点,也是进门的视线所归,定了基调。
整体为泥土色系,由不同的深浅组成,书柜是最深的泥土色,墙面是最浅的。
如果整个房间都是暖色,视觉上会觉得燥热,墨绿色的客厅主沙发,很好的协调了这种燥热感。
不规则的书柜和圆形茶几,也同样调和了房间里的各种直线,特别是推拉门的造型。
吊顶隐藏了投影幕,满足偶尔的观影需求。
就算关上推拉门,客厅的采光也不会受太大影响。
阳台榻榻米兼顾多功能,可以临时休息,也能喝茶读书。
半透明材质带来的朦胧意境美,是日式风格独有的。
每当推拉门半开,都会形成这样的朦胧意境美。
榻榻米内嵌的成品小书桌,虽然很迷你,但关上门后,也是一个专属的工作空间。
榻榻米详解图
门厅分两侧使用,进门右边挂衣,左边放鞋。
进门右侧挂衣区没有做封闭柜体,而是一个装饰架,上面挂衣服,下面放随手物品。这样空间显得通透。
装饰架的后面就是卫生间的干区:一组内嵌洗衣机的定制浴室柜。
需要注意,一般内嵌洗衣机的浴室柜,最好左右布置,就像本案的定制柜一样,左边洗衣机,右边水盆。
一般包含台下盆洗手池的高度是85公分,而洗衣机本身就85公分高了,没有空间再去容纳洗手池。
瓷砖贴了半高,上面是跟顶一样的米黄色墙漆,一进门就能感受到温馨。
蓝色系的瓷砖虽然与墙漆是互补色,但由于面积小,能很好得融入其中。最重要的,蓝色象征着干净。
由于靠近烟道,燃气壁挂炉也放到了这里。
进入马桶淋浴间的门是推拉门,进一步节省空间,而且也符合日式风格的气质。
进门左侧的定制柜。
地面做了材质区分,防尘,与地板用扣条衔接。
鞋柜上面的洞洞板,通过随意的搭配组合,给家里带来生活气息。
由于卫生间是封闭空间,必须要有隔墙,也就形成了一个小走廊。两边做半高定制柜,上面摆放展示品,下面放鞋子或者日用品。柜子高度为90公分,随手取放正合适。柜体离地20公分,正好放鞋。柜体底板内嵌了人体感应灯,每次经过都会将柜体底部打亮,制造轻盈感。
门厅换鞋柜详解图。鞋柜+抽屉柜的搭配方式。抽屉柜非常适合取拿零碎物品,拉开一目了然。
门厅的地砖延伸进马桶淋浴间,不过换成了小砖,因为要找坡度排水,只能用小砖。如果商家没有成品同花色小砖,送到加工厂裁两刀也是个选择。
马桶背后的墙贴了蓝色砖,形成一面主题墙,这样视觉会被这面墙吸引,其他墙面自然后退,显的空间大。
蓝色长条砖竖向铺贴,拉伸房高。
厨房紧挨着门厅走廊
开放式厨房,板材的选择很重要。
橡木板通过定制柜贯穿了整个室内,很日式,也很温馨。
橱柜是L型,与对面的餐边柜和冰箱组成一个完整厨房,中间包含着餐桌。
餐桌桌面是业主自己挑选的实木大板,很自然。
厨柜由房子原来的承重柱一分为二,洗菜池靠外,偶尔洗杯子水果不用跑很远;灶台靠里,贴近原始烟道。
吊柜做了一组,也算是开放式,进一步避免视觉拥堵。
隔板很好的补充了不能做吊柜的空间,比如烟机侧面,柱子的里面(如下图)。
与橱柜遥相呼应的餐边柜和冰箱。
橱柜详解图
餐桌柜和门厅柜详解图
餐桌柜内部结构图
绿色延伸到了卧室,相比客厅沙发,变得更浓郁。静谧,温馨。
绿色在黄色的灯光下,会变成黄绿色,与木作的橡木色形成邻近色,算是一种变化中的统一。
床边小台灯,夕阳的光,都有这样的效果。
床边的健身小角落。
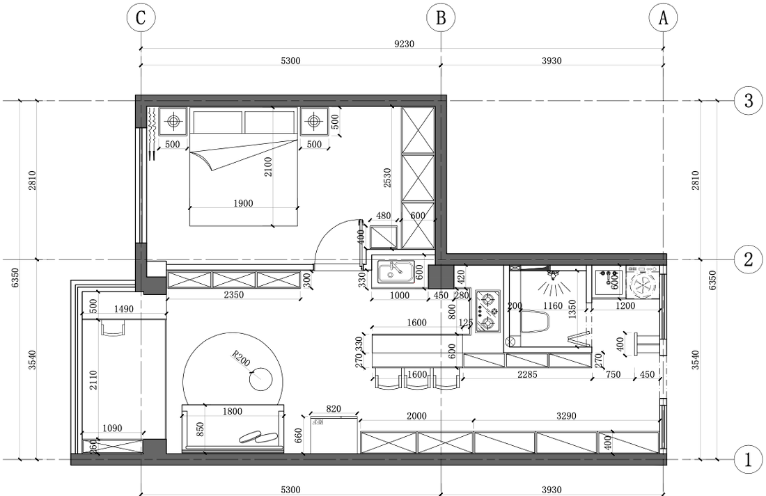
带尺寸平面图
本期案例介绍完毕
感谢观看~
版权归作者玖雅JORYA所有
客服
消息
收藏
下载
最近









































