查看完整案例


收藏

下载
设计改造
● 本套案例为旧房改造项目,常住人口3人
● 屋主需求:
(1)入户位置希望有一些遮挡
(2)希望居住环境能兼具一些家庭办公的需求
(3)尽量多一些收纳,满足书籍资料和生活日常
(4)阳台可以兼具一些休闲区的功能
● 调整改造
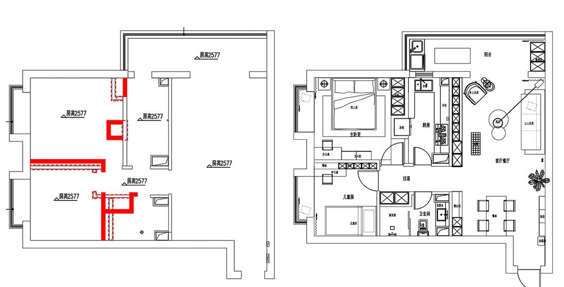
功能上: 原户型结构方正,因此没有做太大改造,而是通过局部墙体的挪动来调整空间面积,满足不同空间的收纳需求,嵌入式通顶的柜体在视觉上可以拉平墙面,保证了完整性。
(1)主卧与厨房之间的墙体做了部分调整,解决了厨房冰箱的收纳和操作动线之间的矛盾
(2)原儿童房面积较小,将墙体往主卧方向推移一部分,增加书桌与储物柜
(3)走廊区域,抠出一部分卫生间面积增加内嵌式通顶储物柜,弥补儿童房的收纳不足
风格上:全屋大量使用白色和浅灰色,营造出开阔的空间感,再搭配上高灰度彩色,如灰粉、墨绿、红色等作为点缀。柔和的主色调创造出一种中性的、简洁而轻松的感官体验。
整个客餐厅以黑、白、灰、原木基础色来铺成,中性色系会给空间带来宁静柔和的氛围,同时对比明显的灰、白可以丰富空间层次,而原木色地板的温润质感则弱化了中性色冷峻的属性,起到平衡的作用。
硬装上尽量简化,只做了窄边吊顶和局部墙面的装饰,通过简洁的线条来呈现空间的轻盈感和秩序感。
灯具、餐桌椅、鞋柜等主体家具的选择与硬装色调呼应,形制上也选用了线条感较强的设计。
餐桌同时兼具家庭办公的功能,因此采用了“一”字型通顶的餐边柜设计,可以兼顾书籍、资料的收纳需求。
客厅在黑白灰的基础上,融入了灰粉、墨绿、红色做为点缀,饱和度最低的灰粉色为主配色,其本身柔和舒缓的气质搭配布艺质感在冷色与跳色之间起到了很好的协调和过渡作用。
收纳+书柜的组合设计取代了传统的电视背景墙,从长久的生活考虑,功能性的客厅更具意义。
大块面的通顶柜体,做了黑白两色的拼接,线条简洁干净,顶部增加投影,弥补电视的功能。
开阔的阳台增加了洗手台的功能和洗衣机的收纳,还可以作为一个小的休闲区,看看书,喝喝咖啡。
阳台的另一侧做了通顶柜子,满足家政和孩子玩具的收纳。
整个居室在保持简洁且统一的基调下,空间之间相互联系又各有特色,主卧放大了墨绿这一色彩元素,并通过墙面造型及灯光效果来化解大面积铺色带来的沉闷感。
儿童房的墙体往主卧推移了一部分,增加书桌和储物柜。
客服
消息
收藏
下载
最近






























