查看完整案例


收藏

下载
户型分析:
1、缺乏隐私,入户没有玄关,打开门一眼就能看到屋内的情况。
2、客餐厅区域为异形空间,再加上封闭式厨房面积较大,使用起来比较局促。
3、主卧无储物空间,需要在其他区域加强收纳。
4、卫生间、厨房一侧的窗户朝向天井,光线较弱,采光全靠南向的窗户。
空间改造:
1、设计师拆除了玄关、厨房、次卧的部分墙体,让光和空气在空间里流动开。
2、 在玄关处加建了2道墙。“一”字型墙挡住入户门处的视线,保护室内隐私。“L”型墙扩充了玄关储物空间,形成了一面宽1.6米,深0.6米的通顶收纳柜。
最终平面图
动线&收纳图
屋主是90后单身男孩,养有2只可爱的金渐层。他期待的空间是干净整洁的,这就需要有大量的储物来辅助收纳。
设计师将公共区域(图中黄色部分)的收纳安排在了房子的四周,留出中间的位置摆放可移动的家具。这样的安排让玄关、客厅、餐厅、厨房完美的履行自己的“职能”,同时又互相渗透。
私密区域(图中灰色部分)的收纳集中在次卧室和卫生间,最后算下来整个收纳系统占到了全屋使用面积的26%。
释放后的中心形成了3条有趣的洄游动线,不管是去沙发看电视,还是走到窗边逗猫咪,或是去门口取快递,都不用走回头路。
打开入户门,这堵墙挡住了视线。设计师在上面开了一大一小两个弧形洞口,大的洞口(高2.1米*宽0.61米)将宝贵的光线和空气引入,让玄关变得明亮又透气,同时又能容纳一人通过,是洄游动线的一部分。小洞口(高0.42米*宽0.3米)离地1.4米高,站在洞口前可以看到客厅和餐厅,有着与中国园林里“花窗”类似的“窥视感”,灵动而饶有趣味。随着脚步或远或近,“景框”里的景物也在发生变化,是一副看不厌的画。
墙体上半部分,设计师挑选了素雅的米色艺术涂料,它有出色的光泽度和独特的纹理,在不同明暗光线的折射下,展现出微妙的质感。
下半墙使用了岩板,它的加入丰富了墙体的层次,而且代替了踢脚线的功能,让整面墙的设计语言更纯粹、更简洁。
进门的右手边是一组通顶的收纳柜,镜柜负责收纳日常的次新衣,两扇灰色柜门背后是鞋柜。
玄关处容易凌乱,屋主希望能通过设计手法,“强迫”自己保持玄关的干净整洁,设计师在柜子底部,做了一块略高于地面的地台,提醒屋主每次进门时,需要弯腰将鞋子摆放整齐。
设计师将穿衣镜放在洞口旁边,其实也有他的“小心机”。在这个位置,镜子可以折射出客厅、门厅和对面厨房的空间,让小空间也能呈现出开阔的状态。
客厅是异形空间,设计师用“人字拼”地板来弱化空间里的边边角角,既丰富了层次,又在素雅中增加了一丝律动感。
客厅和餐厅的家具都选用了圆润温和的样式,它们让整屋的动线保持了流畅,让空间以一种柔和的状态呈现在我们面前。
沿着窗边,设计师放置了一组平行的吧台。傍晚的微风将百叶帘吹动,发出窸窸窣窣的响声,坐在这里小酌一杯,看看窗外的风景,能舒缓一整天的疲劳。
这排收纳柜有藏有露,开放格可以展示书籍和摆件,封闭的区域放日常的杂物。最下面的圆形开放格,是专门为2只小猫咪设计的“房间”。
考虑到层高的问题,设计师只在需要遮挡管线的地方做了吊顶。在需要照明的区域采用的是圆形吸顶灯和可360°调节的明装筒灯。
屋主平时在家做饭不多,设计师将之前的阳台改造成了半封闭的中厨,把会产生噪音的抽油烟机、洗烘一体机、燃气热水器都集中在了这块区域,外面用长虹玻璃门阻隔噪音。
精心挑选的餐桌椅,充满了精致的细节美,十分耐看。坐在这里简单的吃个晚餐,随手就把餐盘放进洗碗机里,非常方便。
透明黑框的展示柜,有着恰到好处的轻盈,缓解了满屋收纳柜的压抑感。
通往卧室的走道也采用了弧形拱门的造型,和玄关的拱门互相呼应。
走道尽头是主卧,主卧门采用了无边框的设计,带来的视觉效果更纤细、简洁,不管是开着或是关闭,都极具美感。
主卧面积虽小,但有两扇大窗户,采光非常好。设计师延用了温柔的米色,再加上一点纯净的克莱因蓝来装点它,这样不会过度明亮或者暗沉。
次卧承担了2个卧室的收纳,左手边是一组通顶储物柜,地面是榻榻米,也可以辅助收纳,铺上床垫又可以做为亲友来访时的临时居所,平时还能做为茶室使用。
次卧光线充足,设计师选用了黑框长虹玻璃推拉门,让光线能透过玻璃,柔和的照亮走道区域。
在设计卫生间台盆柜时,设计师将小猫咪的“如厕区”也考虑在内,保持外部空间的清爽。
从左到右依次是助理,设计师景森、屋主。
编辑:Alice
摄影师:高腾云
本期案例介绍完毕
感谢观看~
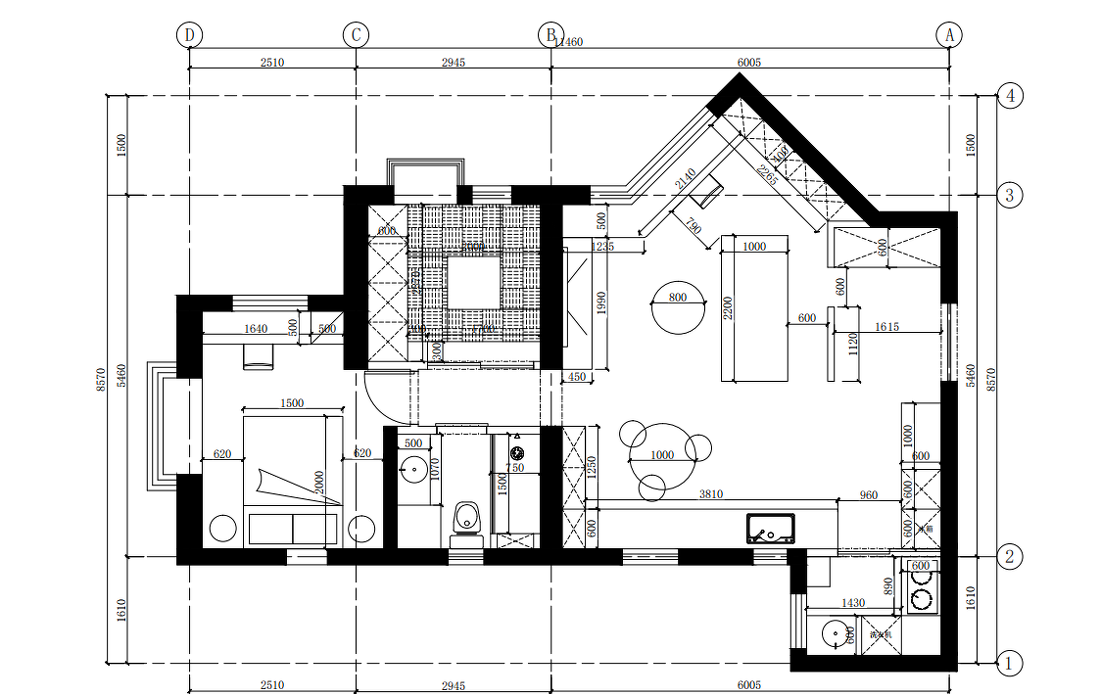
带尺寸平面布局图:
~版权归作者JORYA玖雅所有
客服
消息
收藏
下载
最近



































