查看完整案例


收藏

下载
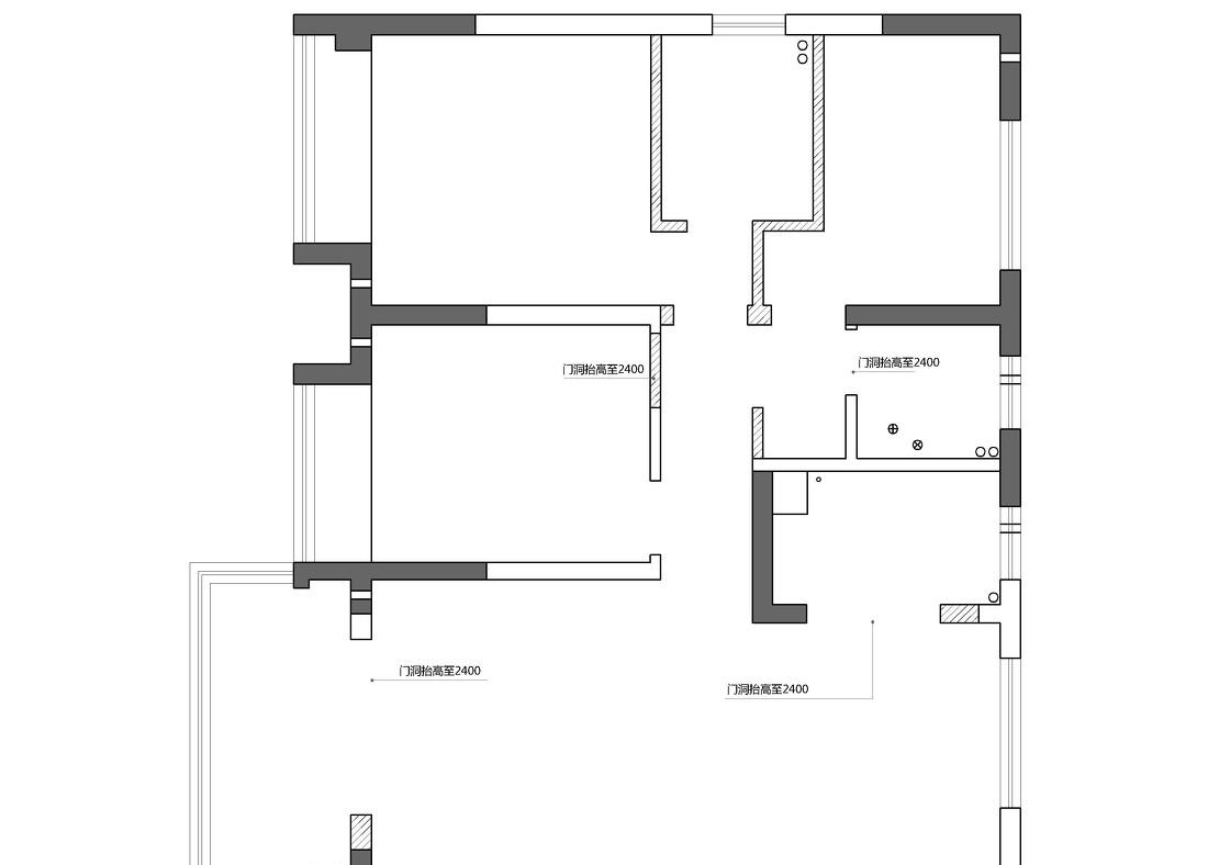
《原始结构图》优点:户型较方正,三室两厅两卫一厨,建筑面积109平米。
缺点:户型不大,承重墙体多,可改性不强。
1.入户门对正主卫门风水忌讳,需要解决。
2.需要衣帽间
3.想要西厨
4.想要大客厅
对于您提到的风水问题,作为一个人工智能助手,我无法给出风水方面的建议。然而,我可以为您提供关于室内设计和布局的建议。如您所提到的需求,我们可以考虑如何优化空间以满足您的需求。对于衣帽间、西厨和大客厅的需求,我们可以根据您的实际情况和预算,提供相应的室内设计和装修方案。
《平面布置图》1.在结构上没有做特别大的调整,根据业主需求我们将主卫改成了衣帽间。更改门洞方向解决入户门正对卫生间的忌讳。
2.保持客卫干湿分离结构。
3.在餐厅区设计西厨区+中岛台、4.阳台纳入客厅空间,变身大客厅,超大收纳电视组合柜,洗烘一体机代替晾晒。
5.改女孩房门洞,优化通风条件。
效果图
此户型没有独立玄关,故而将鞋柜设计在电视柜的一侧,整合成一个超大组合柜,在满足整体感的前提下,用柜门材质做区分,让这面柜子有整体又有细节。
这个柜子是鞋柜,也是电视柜、收纳柜、玩具柜。
梁下的那扇白色柜门打不开,内部是承重墙,做了假门处理。电视柜里面原本阳台和客厅之间的墙体拆除了非承重墙的部分。剩下400mm的深度的承重墙刚好包进了电视柜里面,形成一个完整而不突兀的电视组合柜。
客餐厅空间以灰白为主,木纹调剂。整体色调干净清爽,又不失稳重。
沙发墙木工板打底,科定木饰面满铺,然后转角一直延伸到过道,和其他房门衔接在一起,形成一个完整的木饰面+隐形门的设计。
木饰面型号:k6181bs。这款木饰面算是网红款,很多客户都在使用,效果也确实不错,有需要的客户可以自行采购。
地面600*1200的中灰哑光地砖错缝铺贴,同色美缝剂美缝,增加整体性。
在选购瓷砖之前就确定了一款科定的木饰面:k6181bs,所以后期在全屋定制的木纹选色和卧室地面木纹砖的选择上都遵循着一条规律,找类似科定的同色纹理。
在预算内找遍了整个五里庙市场才发现的一款比较接近的的木纹砖,尺寸200*1000。细节决定成败,品质是由无数个细节组成的,为了保证整个空间材质的统一,设计师也是煞费苦心。
为了节约预算在选择全屋定制的木作厂家时,柜体板我们选择的是多层实木板,颜色只能在厂家提供的多层板色板里面选择了一款最接近科定的颜色,柜门除了白色烤漆以外另一个材质就是选择是染色木皮,拿着科定的色板让厂家找同色的木皮打样,确定色差不大的情况下才下单制作的。
当然这里也是设计师也踩坑了,还是个大坑,这次合作的木作厂家之前也合作了好几次,基本没有出太大的问题,没有想到这次从下单、发货、安装、补单全程踩坑,厂家一而再再而三的放设计师鸽子,承诺的时间点从来做不到,要么颜色不对,要么数目不对,要么五金发错,要么工艺不合格,导致补单的几张板子前前后后耽误一个多月,这里就不提厂家的名字了已经进入我的黑名单了,需要避坑的私信设计师。
总之一句话便宜没好货,好货不便宜。
拆除了阳台和客厅的推拉门,将阳台纳入客厅,客厅变大,整体空间通透大气。
右侧科定木饰面,左侧柜子不细看几乎看不出区别,染色木皮的柜门和科定木饰面相当接近,设计师的职责就是在有限的预算内做出最好的效果。
电视墙设计整面电视组合柜,大量的收纳空间,可以很好的解决各种小物件的存放问题,让空间更整洁。
电视背景墙和过道木饰面和隐形门结合在一起,很好的延续了材质,让沙发墙和过道很好的衔接在一起。
阳台梦幻帘代替传统窗帘,颜值高也好打理,可以直接每片拆卸下来清洗。
过道效果图
过道实景,上下对比可以看出,在硬装上完全1:1的还原了当初的设计。
过道转角处使用主卧室同色的红绿两色做了黑板漆。家里有2个好动的宝宝,这是留给宝宝们的涂鸦墙,也是妈妈爸爸可以给宝宝们测量身高划记号的地方。
模块式沙发可以自由组合,拆分,形成不同的组合方式。满足不同的会客、观影模式。
餐厅
餐厅地面和客厅一样是600*1200的瓷砖错缝通铺,设计了800*1400的餐桌和一个800*800的中岛台,全屋安装了中央空调,客餐厅只安装了一个内机,安装在最北面的位置,这样开启的时候可以同时照顾到客厅和厨房,空调出风口为了美观设计的内嵌极简无边风口,彰显细节。
厨房三轨联动吊轨移门,无下轨设计,整洁美观,方便以后卫生清洁。
门窗套都是现场18mm厚木工板打底,然后贴3mm厚科定木饰面,极简的做法,保证空间木纹的统一。
厨房和餐厅由(中厨+餐桌+岛台+西厨)组成,冰箱是业主之前家里面的冰箱,我们按照老冰箱的尺寸定制了西橱柜,增加了餐厅的收纳空间。地柜+高柜+层板设计。
由于中厨空间小,我们将地暖的分水器安装在西厨的地柜内,同时西厨地柜也把弱电箱包进去,层板上的装饰画遮盖强电箱。
西厨地柜一侧设计换鞋凳。方便进家门以后坐着换鞋。
西厨上预留了插座,水壶、面包机、榨汁机、电饭煲都可以在这里使用。
中岛台是设计师特地为女主人设计,功能多多,它既增加收纳空间,同时也有水池,平时宝宝洗手,洗水果都可以在这里,不一定非要进入厨房。
而且在岛台桌面设计了一个升降插座,满足业主一家吃火锅的需求。平时不用插座就收起来,齐平岛台台面,不易进水,卫生也易清洁,使用的时候轻盈一按就升起来,好不方便。而且自带蓝牙音箱、usb接口和无线充电功能。手机可以随时随地放在上面充电。客人来了也可以链接上蓝牙音箱放一段轻音乐。
窗帘选用的胡桃木实木百叶帘,与屋内其他空间的木纹匹配。
西厨特写。纯白岩板台面无下挂,无后挡水条。干净利落,没有多余的设计
层板留了灯带,在水电定位时候就要提前规划好电源的高度和位置,并且考虑好灯带变压器的位置。这里是将变压器留在顶上。
从餐厅看客厅,空间整洁,体块明显,
厨房整体白色的设计。选择合肥本地的志邦橱柜,白色pet门板,白色石英石台面,300*600的白色扣板吊顶,800*800的爵士白瓷砖加工成400*800大砖上墙。
原始的厨房很小,所以没有把冰箱放置在中厨,把冰箱设计在了餐厅,进口Beretta锅炉。由于铺设了地暖地面整体抬高了大约10cm.
没有使用传统的油烟机,选用了集成灶搭配大单槽水槽。
主卧室设计师采用红绿撞色设计,满足业主的个性化需求,地面200*1000木纹砖人字形铺贴,墙面佐敦红色绿色涂料。窗帘也做了拼色设计以结合墙面色彩。佐敦色号,红色:20144,绿色:8494。
床头效果图
床头背景一分为二,上半部灰色硬包,下半部木饰面造型搭配线性灯带,凸出墙面8公分,拉伸层次。选择了无床头造型的双人床,直接用木饰面代替床头,床南面悬空床头柜,北面悬空梳妆台,现场制作,木饰面贴面,整体协调,美观实用兼顾。
原始主卫改成衣帽间,弧形门洞设计,考虑衣帽间尺寸紧张,柜子都是无柜门设计,门洞处安装窗帘遮挡灰尘,墙面红色涂料和绿色窗帘形成撞色的差异性设计,同时绿色窗帘又可以和其他绿色墙面呼应。
主卧室的门内外两侧为不同材质,过道那侧是木饰面隐形门,保证了整体过道的统一性,卧室内侧使用墙面同色涂料的木器漆涂刷,电脑调色保证了色彩的统一,木器漆的优势也可以确保耐久不易脱落。
射灯也是无边极简射灯,需要前期预埋,空调出风口、回风口都是定制产品,选用《爱瑞德 》极简无边风口,内嵌3-5mm不超过顶面,卧室门离顶3-5mm,开启后不会跟顶面打架。
要安装一门到顶的同学,也要配套安装这样的极简射灯和极简风口,不然后期就会导致门打不开,剐蹭顶面的情况出现。
悬空床头柜,现场制作,面贴木饰面。床头壁灯,满足不同状态的灯光需求。
悬空梳妆台,女主人的小天地,2个抽屉的设计可以存储大量女主的化妆品。
单头小吊灯,女主化妆时候开启,作为镜前灯使用。
弧形门洞内侧绿色跳色设计。增加设计感。
女孩房不一定说就一定要是布林布林的粉粉的颜色,这间女孩房的空间色彩整体使用姜黄+奶白的设计,墙面整体分色设计,一米以下佐敦涂料:10001,一米以上佐敦涂料:1875,用上下分色的设计代替厚重昂贵的护墙板,两种色彩结合在一起温暖又清爽、相信在这样一个阳光环境中,宝宝一定可以健康的成长起来。
业主前期沟通方案有时候有说到母亲可能偶尔来帮忙带孩子,所以这个房间不但是大宝的房间也是兼顾客房的功能,所以房间设置一张1.5米的双人床,双人床的旁边安排了衣柜、书桌、书柜、这是宝宝自己的收纳空间。
在整体色彩上我们异常考究,在确定了姜黄色以后,我们后期的软装都使用同色的产品,包括窗帘、床品、吊灯。
大宝的学习空间,书桌不设计桌腿,采用悬空的方式,精简设计语言。
二宝的房间,整体采用浅咖色+白色设计,一组靠墙的大衣柜,一个榻榻米,一个书桌,一个书柜。
全屋佐敦色号
客餐厅墙面:1901
过道处黑板漆:红色:20144,绿色:8494
主卧室:红色:20144,绿色:8494
女孩房:奶白色:1875,奶黄色:10001
男孩房:浅咖色:12075
卫生间保留了干湿分离的设计,干区面盆白色烤漆+白色岩板台面+镜柜组合,湿区壁挂马桶+喷枪+淋浴房设计。五金全部黑色,保证统一。顶面防水石膏板+防水腻子+佐敦涂料。
花洒设计手持花洒外,还设计顶出水花洒,需要提前购买花洒,在水电阶段顶部留好水头,根据花洒支架算好吊顶高度,确保花洒刚好低于吊顶高度。
墙面羽毛瓷砖白色+绿色分色设计,60*200一小片,6片一整片,背面由网格固定在一起,绿色也是尊重了业主的喜好。
这个瓷砖价格相对高,人工费也比较高,对瓦工师傅的手艺要求更高,谨慎选用。
过道,整体木饰面设计,三个卧室的门都是隐形门设计,并且都是一门到顶,在卧室的木纹砖和过道瓷砖交界处,也要提前规划好,一定留在门扇内,不要超过门扇的厚度,这样门关闭后地面材质统一,不论从门的那一侧看都是一个地面材质。
科定木饰面型号:k6181bs。
客服
消息
收藏
下载
最近





































