查看完整案例


收藏

下载
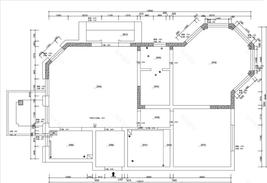
▲原始结构图
空间结构虽然看似方正,但也正是困于空间,被割裂的狭小而零碎,未感受到该有的大平层空间尺度。
考虑家庭成员生活舒适度的前提下,如何进行空间重组,打破限制,规划功能,提升利用率,成为设计的关键。
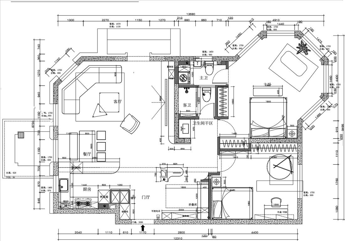
▲平面布置图
1.改动原有客卫位置,打开入户后左右两侧空间,延伸视线。
2.将不可拆除的下水管道,塑造为有仪式感的造型柱,提升空间立体感受。
3.厨房改为开放式,扩大操作面积、增加电器及储物空间,提升鸡肋空间利用率,增加家庭成员的互动交流让烹饪更加得心应手。
4.借助卧室和儿童房之间的墙体,分别增加两个房间的储物面积。
▲温润的木饰面吊顶
入户及通往卧室的走廊动线,通过木的温润描绘空间的轮廓,用材质勾勒空间结构,提升空间层次,这种温润感缓慢展开至休息区域。
▲错落有致的空间构成。
具有形体仪式感的造型柱,洄游动线,打通空间内原本凝滞的气息。
入户衣帽间位置原本无采光,我们从儿童房墙上的玻璃窗洞“借光”到走廊。
▲仪式感造型柱
顶部的梁与承重柱采用同材质灰泥处理,让梁成为柱一部分,又进一步将其塑形。
▲拥有墨菲床的秘密角落
业主希望有个偶尔有客人来,休息的地方,但又不希望占用太大空间。
借用原有卫生间位置,改为可以隐藏的墨菲床。吊顶提前预埋隐形窗帘轨道,既不突兀又能保证客人休息的私密性。
▲储物型电视墙
摒弃以电视为中心的传统家庭模式,电视墙改为储物型收纳柜,增加储物空间。
木饰面、微水泥、波浪板三种材质,有节奏的进行造型。
▲围合式空间。
▲自由的客厅组合设计
用异形串联割裂的小空间,让原本受限的平面反而转化为独有的空间优势。
棉麻质地的电动竖百叶,提升空间柔和感。
▲围合式共融空间
开放无拘、围合式尺度与格局,提升家庭成员互动交流。
用竖向百叶帘串起三个窗户,视野整洁通透敞亮。
▲开放式厨房与客厅的空间链接
复杂的管道包裹进百页门扇里。
整个吧台用同一材质的岩板围合,增加空间整体性。
厨房、餐厅与客厅的联动,加强了人、物、空间之间的互动与交流,厨房也因此多了一种社交属性。
餐桌和岛台吧台一体化设计,方便使用。
利用色块的穿插,将立面造型与空间功能相结合。
▲小王子的科技馆
为了弱化梁的存在,采用圆形、圆弧等几何图形。借用主卧室墙体改动的空间,增加儿童阅读架。
软装搭配小王子主题趣味灵动、可爱俏皮。
足够的收纳空间,以及提前预留好的儿童玩具收纳洞口,让孩子养成独立收纳整理的好习惯。
▲弧形木制造型
卧室采用木制墙板与衣柜结合。弱化柜子存在的同时,增加墙面的整体性。提升卧室空间简约、静谧、舒适的情调。
弧形KD板折弯,做好基础后,由厂家粘贴、拼接、对缝。
▲舒适的卧室一角
繁忙都市中我们在追寻人生的理想,也期待拥有灵魂的归属地。
▲卫生间
小空间大利用,壁挂马桶解决卫生死角。定制了橱柜,专门用来存储卫生间物品和清洁工具。
客服
消息
收藏
下载
最近



































