查看完整案例


收藏

下载
大门的左边放置了简约的边柜,敞开式的层板上摆放着屋主个人的摆饰或酒品,极具生活气息。
客厅的色调以奶白色为基础,以深褐木色的地板作为配衬,营造了温醇的氛围。
同时,黑色的皮质沙发,搭配了鲜艳印花的抱枕和毛毯,在简单摩登中带来了复古优雅的居家体验,层次丰富而不显得凌乱。
纱质的奶油色窗帘,不影响大空间的采光,产生了流动的美感。
自然肌理的茶几,软糯的绵羊椅,放置在客厅的休闲区域。精致的石膏雕塑,体现了屋主低调奢华的文艺气质。
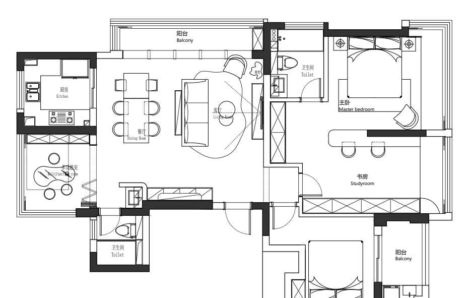
法式风注重对称美,对称式的拱门设计,加强了走廊的纵深,给整个空间塑造了秩序感和仪式感,同时也保证了主卧的私密性。
客餐厅相连,空间纵向延展,视线豁然开朗,也增加了采光。两个空间的格调协调融合。窗外美景和清风相伴,让餐厅氤氲着更加宜人的自然力量。
朦胧美的长虹玻璃,是衬托家装显贵高级的秘密武器,透光而不透视,自带光影滤镜。
细腿的椅子,让空间看上去更加轻盈。简约的法式金色吊灯点缀在餐桌上空,提升了家居质感。
绿植和蜡烛也是法式风格中不可或缺的一部分。植物作为自然元素为餐桌带来了勃勃的生机,而蜡烛调和了餐具的冰冷质地,使得整个餐厅表现地更加清通而不失浪漫。
为了让屋主在自己的一方天地中找到自己的专属情绪,砖红色的软包床头当仁不让地发挥出淑女风度,安静温暖。
乳白的窗帘把阳光过滤得很柔和,飘窗上摆放着熏香,休闲感十足。
小天使展开双翅,为卧室送来柔和灯光,让空间多了一丝梦幻。
床尾柜子与床头柜互相呼应,黑色的点缀让柔软的卧室看起来更加年轻,富有格调感。不管是灯具、相框、把手,金色都加深了主卧的尊贵调式。
墙面无须繁杂的装饰,精致典雅的装饰画为卧室注入了优雅的法式灵魂。
次卧改造为衣帽间,设计师巧妙地将其与主卧联通融合。
衣帽间配置了小型梳妆台和超大落地镜,一步完成梳妆打扮,自信满满地开启新的一天。
客服
消息
收藏
下载
最近

























