查看完整案例

收藏

下载
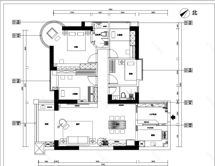
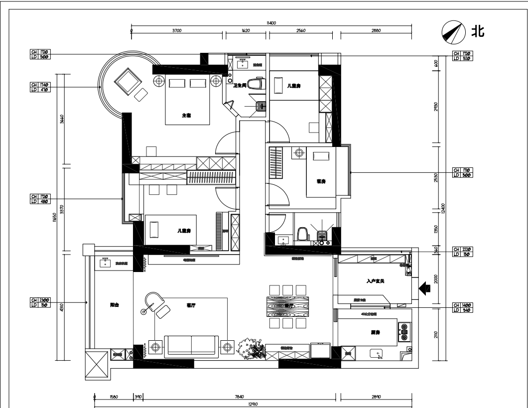
原户型图缺点:主卧空间零碎和厨房利用率低,收纳空间不足。
经设计后:调整了主人房与主卧开门位置,让主卧具有了不受干扰的睡眠空间且有更大的收纳量。拆除玄关与厨房部分墙体之后,我们的视线可以顺着入户阳台漫射进来的阳光,一直延伸到门廊。
进门口,在入户花园窗下整面鞋柜满足家里鞋子和家政用品的收纳,超大的原木色台面也做了加深,可以尽情处理快递包裹。
转角处利用百叶柜,隐藏了原本燃气公司不允许暗埋的燃气表+管道+燃气热水器。
厨房原来的窗户较小,我们扩大之后协调了窗户方正呆板的比例,也为厨房引入了明亮的自然采光。
灰色调的沙发背景隐藏了大面积的承重结构,在暖色的隐藏光的烘托下,让整个客厅温馨起来。褐色系真皮沙发、大理石茶几与空间融为一体,灰色瓷砖递减冷感,低调而细腻地描绘出屋主的生活状态。加上自然通透的日照光线,整个空间的现代感被晕染地更加柔和。
厨房原本深度是两米左右,这个空间做L型橱柜过于浪费,深U又太拥挤,满足不了2人同时烹饪的需求,所以现在调整为深浅柜的设计,保留了U型空间的便利,在窗下还可以操作多样小厨电,把使用率放大到极致。
餐厨部分通过多轨道移门连通在了一起,
白色餐柜负责收纳了两娃零食、日常茶饮和家庭日杂囤货,为了兼顾西厨功能,加装了耐热抗污的人造石板。
为了享受随时饮茶的快乐,设计阶段我们确定了管线机的需求,水电改造时分别从厨房预埋了净水PE管和餐柜穿线管,完成后的餐厨空间美观又舒适。
借用过道做了一面储物柜体,让原本狭长单调的过道,拥有收纳空间。
原来的阳台封了起来,阳台放置洗衣机和洗衣台,叠层的将洗衣机和烘干机让空间释放出来。
起居室是一天当中屋主恢复元气的地方,所以我们在白色的墙面调中加入了温润的墨绿色,与暗色地砖一起传递出沉静优雅的同时,也维持了空间的整体观感,营造出惬意与恬适的氛围。
客服
消息
收藏
下载
最近














