查看完整案例


收藏

下载
这是房子的原始平面图,可以看到每一个房间都有窗户,晴天时,阳光会随着太阳的移动,慢慢洒进整个屋子,让人感觉神清气爽。
屋主的需求:
1、喜欢养绿植、有1个养鱼的大海缸,还有2只可爱的猫咪,需要为它们规划出相应的空间;
2、装修风格温暖耐看,不要过多的家具,特别是木制家具;
3、厨房只做简单的早饭,希望是开放式的,能和吧台结合;
4、一家人都喜欢玩乐高,希望能有展示的地方;
5、客厅的大窗户光线很好,希望在这里设计1个阅读角。
这是最终确定的平面布局图,墙体未做拆改。设计师从屋主的兴趣爱好出发,将它们融入到了业主的生活,在这个充满了“我”元素的空间中,设计不再是家具、颜色的简单堆砌,而是充满了归属感的温馨小家。
推开黑色的大门,就看到了客厅,这是一个层次感非常丰富的空间,它的底色是柔和又耐看的人字拼地板,和同样人字纹的窗帘互相呼应,露出一抹明黄色的窗帘生动俏皮。
头顶的“草帽灯”由Constance Guisset设计,外观如同一顶淑女的大号礼帽,不规则的镂空设计让它看上去轻盈优雅,无论从哪个角度都非常的耐看。开灯时,光线会透过镂空的部位投射到天花板上,像一个温柔的小太阳,让整个空间都变得柔和起来。
两组深浅不一的绿色沙发是视线的焦点,复古的造型和华丽的丝绒材质相得益彰,为空间增色不少。
屋主希望客厅的家具可以灵活移动,在户外空气不好时,能和孩子在宽敞的客厅打打羽毛球、做做运动。
黑色的模型展示架上摆满了各种车和玩偶的模型,屋主很细心的把它们装在亚克力盒子里,既能防尘,又能避免被淘气的猫咪们弄坏。
落地窗一角是屋主给猫咪们买的“一梯两户式”的猫爬架,喜欢跳上跳下晒太阳的猫咪们对它简直爱不释爪~
落地窗另一边是阅读角,它的墙面由摩洛哥绿的手工砖铺成,和造型优美的琴叶榕一起,散发出别样的异域气息,不管外面是霏霏细雨或是阳光正好,只要搬来一把舒舒服服的单人椅,就能沉浸到属于自己的阅读时光里。
和客厅相连的是开放式厨房和餐吧,U字型的厨房结构,让洗菜-切菜-炒菜-上菜的流程变得无比的顺畅,使用体验非常好。
大海缸放在客厅和厨房的交界处,美丽多彩的鱼儿们游来游去,给整个空间增添了不少活力~
厨房的窗户视野非常开阔,窗外的大树到了春天就会发出绿芽,阳光透过树枝映照进来,一片绿影摇曳。窗台上摆放着屋主精心养护的绿植,像一片小小森林,在这样绿意盎然的环境里下厨,心里应该充满着幸福吧~
夏天阳光强烈,设计师在厨房窗户上方安装了灯带和电动百叶帘,既能挡住强光、遮挡隐私,又能留下些微的光影,达到通而不透的目的。
深绿色的按压式橱柜门和白色的厨房台面,搭配起来复古又清新。备菜区和炒菜区做了高低台的设计,再也不用架着手炒菜~
白色吊柜中结合了开放式的绿色收纳格,方便取拿厨房的各种调料、工具。吊柜右侧的百叶门里,是被设计师藏起来的燃气热水器,这样既保证了通风,又完美的融入到了整个氛围。
雅士白花砖铺地,日常打理起来很方便,和人字拼地板拼接,工艺复杂,非常考验施工师傅的手艺。
通往卧室的走廊上,童心未泯的屋主打造了整整一面乐高墙,节日的时候可以和孩子一起用乐高装饰出各种不同的主题,想想都很好玩!
铲屎官都有过晚上关上门睡觉,猫主子在外面坚持不懈叫门的经历,屋主为它们在卧室门上安装了猫洞,这下“液体”小猫咪可以随意进出了,真是全方位的宠爱啊~
屋主一家喜欢旅行,儿童房的壁纸特意选了世界地图,他们希望将来每到一个地方,都在地图上做标记、贴上旅行时的照片,让这面墙变成承载着爱与回忆的地方。
卫生间将洗手台外置,提升了使用效率。
客卧做了榻榻米,方便家人、朋友偶尔的留宿,一组L形的通顶收纳柜,让客卧兼具了衣帽间的功能。
主卧室的墙面是温柔的香格里拉粉,与黑色床架的硬朗、灰色羊毛毯的柔软,达成了微妙的平衡,有一种刚柔并济的气质。
主卧卫生间是轻盈的粉色&奶油色,温柔又充满活力。
从左到右依次是时安、本案设计师忆萱、工长方根明、屋主
编辑:Alice
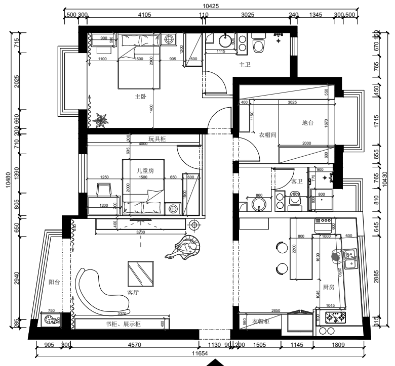
带尺寸平面布局图
- End -
~版权归作者JORYA玖雅所有
客服
消息
收藏
下载
最近























