查看完整案例

收藏

下载
客餐厅选择简约的白色为基调,沙发背景墙则采用莫兰迪色,软饰的各种撞色,营造极具视觉冲击力的品质感,轻奢个性、温暖精致。
吊顶及背景墙大量运用线条,让层次感更强,从水平和垂直角度很好的诠释现代轻奢艺术。
客餐厅一体的设计,在拉伸视野之余,又让空间更加流通与宽敞。墙面石材纹理独特,再搭配自然木色地板,晕染出丰富的空间感。
阳台除了承载生活上的洗晾晒功能。还兼顾了整个客厅的采光通风源。没有繁琐的装饰,就让它纯粹一些吧。
造型独特灯饰为餐厅增添一份趣味之感,舒适的单椅,精致的摆件,浪漫的花束......
不同材料经过细致地挑选,极致的考究,彰显出主人家不凡的品味和对生活品质感的追求。
一家人围绕而坐,灯光下享尽人世浮华与人间烟火,简单温馨,最有幸福感的生活,莫过于此。
厨房开一扇小窗,不仅将采光问题解决了,还解决了客餐厅部分空气对流的问题。
空间虽然紧凑,但动线分明,布局的合理,也是绰绰有余的。简洁的墙砖配上浅绿色烤漆的橱柜,显得清新整洁。
卧室气质十分内敛,且线性感十分清晰,背景墙流畅的线条感,为空间更添几分理智之感。时光兜兜转转在此休憩,一切事物都慢了下来,体验生活最美的状态。
给予视角感官新的诠释,把设计做出不可替代的质感,强调时尚品味的同时,着力打造空间的舒适性与实用性,使“家”的概念真正回归到了对舒适的现代化生活的追求中。
主卧延续了原来的美式风格,实木的家具,增加了浅咖色的柜子,点缀局部的金属线条和灯光,既不显压抑,也不呆板。
女业主之前的担心,看到最终的呈现的效果,直道说相信设计师的眼光是没有错的,是她满意的效果。
空间虽不大,但也不局促。卫生间的马桶尺寸选购,浴室柜的选择上,每个细节的尺寸把控,都是经过一再核算,深思熟虑后再下手。
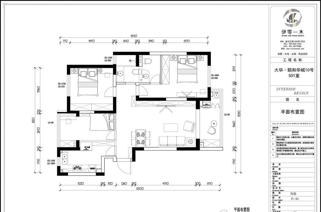
1、重新规划了北阳台和厨房的分割线,放大厨房的同时,把北阳台改成了儿童房; 2、原客餐厅格局不变,在客厅设立一整面展示柜,展示着主人家生活的点点滴滴,让彼此间的爱尽情释放; 3、儿童房的空间同时满足收纳,学习和娱乐,且空间感十足; 4、把最大,采光朝向最好的房间留给老人居住,保留了原有的实木家具,同时让过去和未来融合; 5、尽可能的让全房收纳放在不起眼的地方,充分利用每一寸空间; 6、色彩上进行了多种搭配,使得整个房屋在点点轻奢的同时,也温馨动人。
客服
消息
收藏
下载
最近





























