查看完整案例


收藏

下载
在项目开始前,我们和业主一起反复推敲所有设计细节,连续数月的构思和筹备,精挑细选并购置了不同材质的原材料。
触摸木材会让人产生一种天然、温柔的感觉,当家人光脚踏在木地板上,与这种自然材料为伴,并小心呵护和跟随它的渐渐老化有一种浅浅的幸福感。
一家人围坐在壁炉旁,孩子们说着新鲜的事情,老人讲着过去的故事,木材在使用过程中所留下的痕迹。它是一种有生命的材料,随季节的更替而变化着。
既传统又有新意,以一种极简的丰富将整个空间变得温暖且自在,这里还隐藏了家族的深情和记忆,诉说着他们彼此之间的动人故事。
围绕挑空的廊道,视觉链接孩子的书房。
我们设计了一个书之廊道,家里有了面向阳光的书屋,哪里还会沉迷玩手机呢?
孩子的阅读习惯自然可以养成,从阳光到书架,再到墙面,富有肌理和质感的材料和书里丰富的世界创造了更深远且神秘的空间语言。
二楼的书房是属于孩子的,这里与连廊相连。在连廊的书架上取下一本书,来到书房阅读;每天放学也可以在这里完成作业。
家,既有宁静禅意,也有平常烟火气,这是生活的平衡之道。
对居家来说,餐桌即日常,它不仅有美食的呈现,并且是融合了器皿收藏、空间光线等等一整套美学方案,背后是通过不停实践和把控细节来实现的。咖啡与品酒,日常物件和器皿,生活化又留有艺术的想象。
将阳光引入负一层,从室内到户外,目之所及,整齐的工具,还有生机勃勃的景观无不令人心旷神怡。那是“发明”工作室空间,每一把工具,都带有个人印记,可以完成木艺雕塑,可以制作电路小发明,在生活方式愈发多元的现代,究竟什么才是好物?生活器物的创作者,造物的初衷是什么?我们将业主想要传达给孩子的造物精神容纳进生活的日常。制造理性的美,能让感性的生活更趋于完美。一流的心性,必有长期累积的技术。长此以往的磨练心性和品格,掌握其道,也是素质教育的一部分。
孩子的小伙伴们来家里做客,没有什么比边游泳,边打水仗来得更加快乐,还可以来一场憋气比赛,娱乐放松、安全锻炼两不误,简直逍遥自在。
一家人周末聚在一起看个电影,不看电影的时候,是一幅世界地图,从小便培养世界观,静水深流,日子闲适,有关于家的想象,除了陪伴,还有克制、包容和理解。
卧室充分放大原建筑结构的特点,将原有的梁结构经过设计的缜思后,既呼应整体风格,又增加了设计感。
梳妆区的原建筑斜顶也没有采用简单普通的包平处理,而是将结构“缺点”变成了空间与众不同之处。然后延续沉稳静谧的色调,细致的勾染,一起成全了一室风情的轻灵和悠远。
独立的书房是主人的精神世界,空间如人,一个好的空间,从来不是孤独存在的,她与居住者自身的喜好、性情、阅历息息相关。
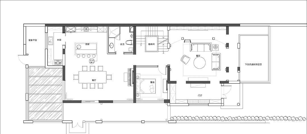
一层平面图
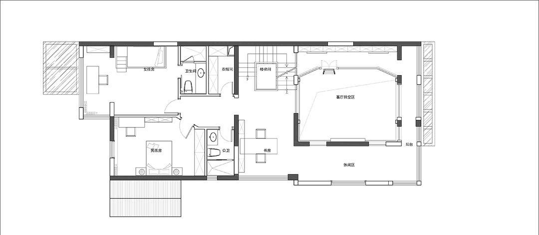
二层平面图
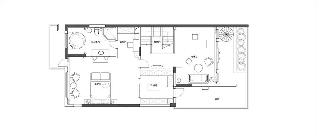
三层平面图
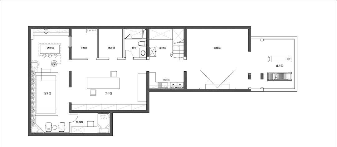
地下平面图
屋顶花园平面图
客服
消息
收藏
下载
最近
























