查看完整案例


收藏

下载
原始结构图
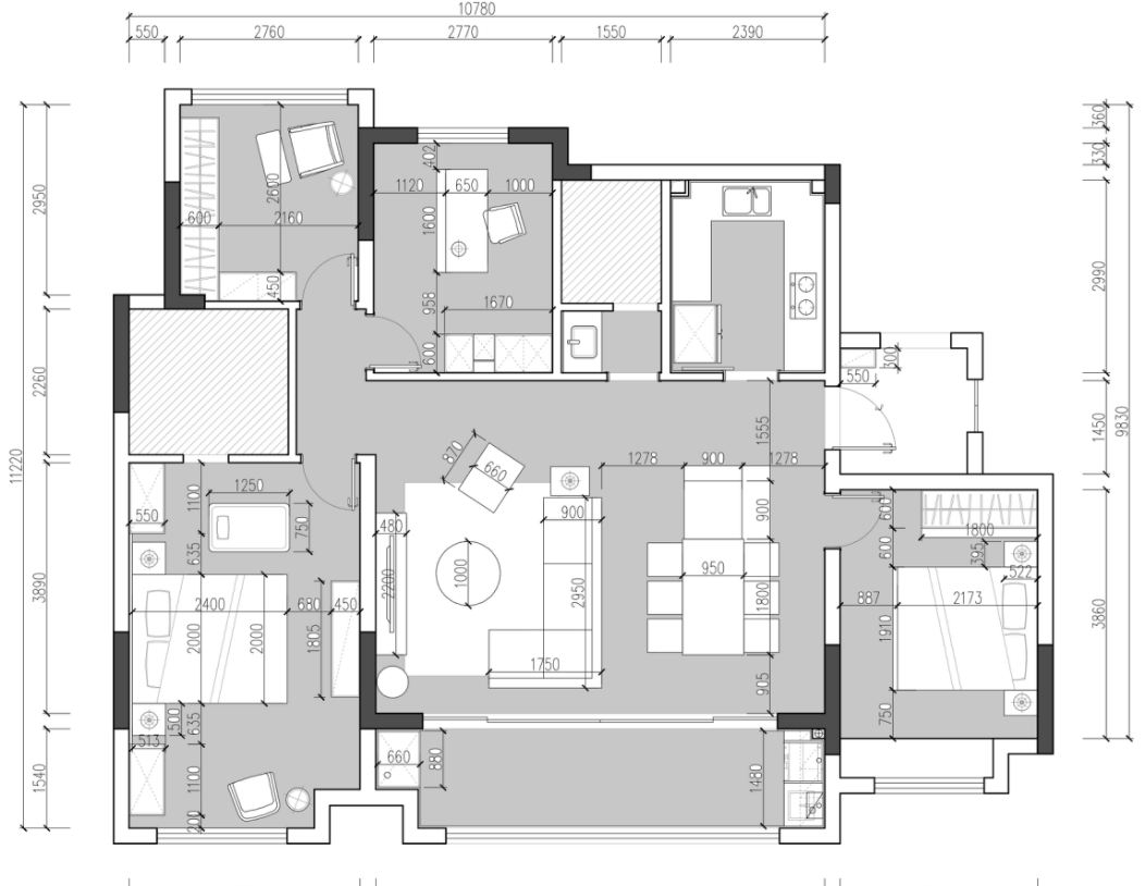
平面布置图
横厅的格局让空间处处阳光遍洒,简约的家具在这样的环境里更显质感。皮质的柔软细腻,大理石的清冷,毛绒的柔软,不同质感互相交织,触感丰富。
皮质沙发打造质感满满的现代空间,茶几、边几、地毯等利落的线条感与现代简约家居风格相得益彰,背景墙和窗帘以灰白色做搭配,整体空间呈现出一种洁净、冷淡的简约风。
电视背景墙一改单调,用了规整的线条,清新有秩序;月光照在地上,像是撒满了盐,打开一盏温柔的灯,将长夜漫漫揉碎了写诗。
在餐厅区域设置岛台餐桌一体化,高效利用空间,同时岛台下方具备餐边柜储物功能,时尚又实用。
餐桌加岛台的设计让餐厅更实用,简单的设计凸显生活的情调。岛台木质与石材结合,自然气息丰富;自带收纳空间,方便小物品的储藏。暖色餐椅和精致的金属灯具让宁静的空间有了一丝活跃。
主卧的休息空间清爽简约又不失高级感,悬挂的床头灯如皎皎明月,浪漫又温柔。
干净简单的灰白空间有明朗舒适的居住体验,家具都是相近的灰色,不同的材质与纹理形成了丰富的层次。
衣柜划分了不同的区域,让日常的收纳井然有序;灯光木质玻璃完美交融。沙发与落地灯用对比色与线条勾画了一幅安静优雅、时光静好的画面。
书房是一处静心之所。灰白两色凸显空间的静谧与质感;书桌朝向调整后视野内光线更充足,小变动带来大格局。
客厅前后实景对比
餐厅前后实景对比
卧室前后实景对比
衣帽间前后实景对比
客服
消息
收藏
下载
最近






















